Bell Watson & Co says ..
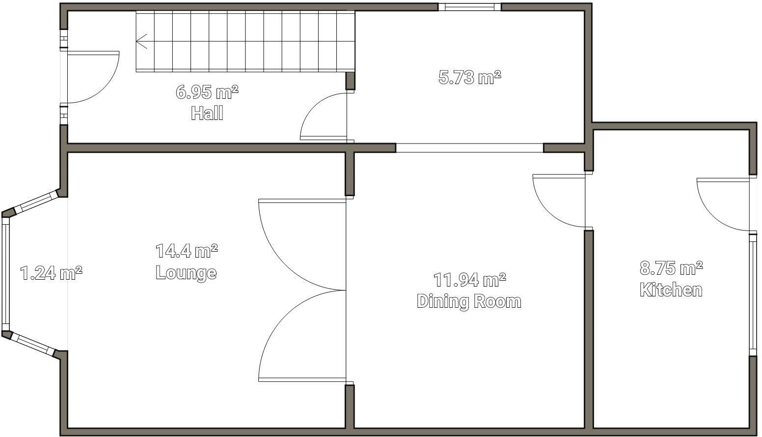
Bell Watson Estate Agents are delighted to market this traditional semi detached family home ideally located within the Ashby area, with ground floor extension to the rear. The property briefly comprises hallway, front facing lounge, large dining room and kitchen to the ground floor with the (cont.)
Property Oracle says ..
Therefore, we give this property 7 / 10. *Disclaimer: This is our option and does constitute a recommendation or financial advice. Do your own research. *
- Price
- 8
- Condition
- 8
- Location
- 7
- Land
- 7
- Bedrooms
- 3
- Bathrooms
- 1
The heatmap indicates the level of crime in the area. The color of the heatmap indicates the crime severity and recency.
Metrics Year-on-Year
- Average area value
- 235,000.00 £Increased by 7.42 %
- Average area rental value
- 1,149.00 £/moDecreased by 3.45 %
- Est rental Yield
- 5.87 %Decreased by 10.11 %
- Crime Rate
- 2.00 %Unchanged by 0.00 %
from 218,759.00 £
from 1,190.00 £/mo
from 6.53 %
from 2.00 %
Agent Activity
Bell Watson & Co created the listing.
Nearby Schools
| Name | Type | Ofsted | Distance |
|---|---|---|---|
| Manor Farm Children'S Centre | Children's Centre | 0.66 KM | |
| Priory Lane Community School | Community School | Requires improvement | 0.73 KM |
| Melior Community Academy | Academy Sponsor Led | Good | 0.80 KM |
| Oakfield Primary School | Community School | Requires improvement | 0.86 KM |
| Lincoln Gardens Primary School | Community School | Good | 1.04 KM |
Images
Nearby Streets
| Name | Average Price | Average Sqft | Distance |
|---|---|---|---|
| Grassfields Close | £ 189,995 | 0 | 0.00 KM |
| Brocklesby Court | £ 0 | 0 | 0.00 KM |
| Chandos Road | £ 190,000 | 0 | 0.00 KM |
| Cloister Close | £ 0 | 0 | 0.00 KM |
| Minerva Close | £ 0 | 0 | 0.00 KM |
Nearby Transport
| Name | NLC | TLC | Distance |
|---|---|---|---|
| Scunthorpe | 6456 | SCU | 2.16 KM |
| Althorpe | 6532 | ALP | 8.58 KM |
Nearby Listings
| Address | Price | Type | Score | Distance |
|---|---|---|---|---|
| Nuns Road, SCUNTHORPE | £ 160,000 | BUY | 7 / 10 | 0.00 KM |
| Abbey Road, Scunthorpe, DN17 | £ 140,000 | BUY | Unknown | 0.08 KM |
| Priory Lane, Scunthorpe | £ 205,000 | BUY | 7 / 10 | 0.09 KM |
| Humber Crescent, Ashby, Scunthorpe, DN17 | £ 135,000 | BUY | 7 / 10 | 0.16 KM |
| Burringham Road, Scunthorpe | £ 325,000 | BUY | 8 / 10 | 0.20 KM |
Nearby Properties
| Address | Price | Distance |
|---|---|---|
| 38 Priory Road | £ 171,000 | 0.07 KM |
| 28 Priory Road | £ 112,000 | 0.07 KM |
| 11 Priory Road | £ 124,000 | 0.07 KM |
| 7 Priory Road | £ 150,000 | 0.07 KM |
| 11 Abbey Road | £ 83,000 | 0.08 KM |