Grosvenor Road, Harborne, Birmingham, B17
Hadleigh logo

Grosvenor Road, Harborne, Birmingham, B17

By Hadleigh

£ 349,950

Reviews

4 out of 5 stars

Hadleigh says ..

Hadleigh Estate Agents are delighted to offer this fantastic refurbished three bedroom terraced property for sale. Offered with no upward chain the property is within easy reach to Harborne High Street, offering an array of bars, restaurants and shops. There are also excellent transport links int...

Property Oracle says ..

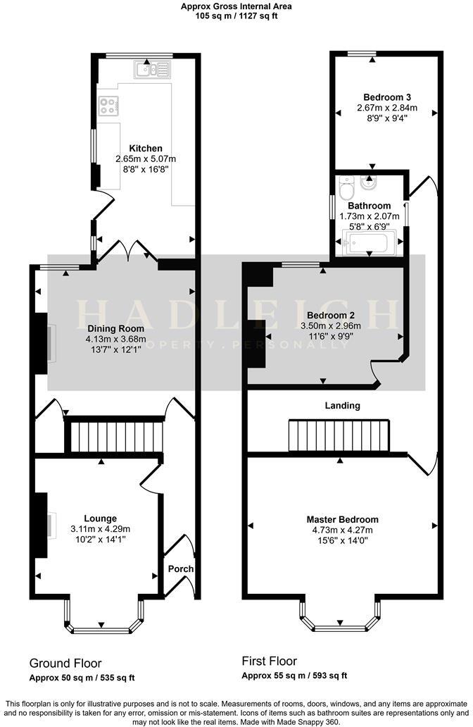
This three-bedroom terraced house is located on Grosvenor Road in Harborne, Birmingham. The property has recently undergone modernisation, boasting a contemporary kitchen and bathroom. The interior is presented in neutral tones, creating a bright and airy feel. Traditional features such as fireplaces and period doors are retained, adding character. The property benefits from a rear garden with a decked area and shed. The location is desirable, within proximity to local schools and transport links. While the provided plot size is 0.00 sqft, the images suggest a typical garden size for a terraced house in this area. Compared to other properties in the area, the list price of £349,950 appears reasonable, considering the recent renovations and desirable location.

Therefore, we give this property 8 / 10. *Disclaimer: This is our option and does constitute a recommendation or financial advice. Do your own research. *

Price
8
Condition
9
Location
9
Land
6
Bedrooms
3
Bathrooms
1
Sqft (est)
1,130.21

The heatmap indicates the level of crime in the area. The color of the heatmap indicates the crime severity and recency.

Metrics Year-on-Year

Average area value
343,500.00 £
Decreased by 10.23 %
from 382,656.00 £
Est sale value
340,193.21 £
Increased by 62.70 %
from 209,088.85 £
Average area rental value
1,207.00 £/mo
Decreased by 5.18 %
from 1,273.00 £/mo
Est letting value
1,130.21 £/mo
from 0.00 £/mo
Est rental Yield
4.22 %
Increased by 5.76 %
from 3.99 %
Crime Rate
4.00 %
Unchanged by 0.00 %
from 4.00 %

Agent Activity

  • Hadleigh marked this listing as sold.

  • Hadleigh created the listing.

Nearby Schools

NameTypeOfstedDistance
Queen Alexandra CollegeSpecial Post 16 InstitutionGood0.34 KM
Baskerville SchoolFoundation Special SchoolGood0.47 KM
Our Lady Of Fatima Catholic Primary SchoolAcademy Converter1.03 KM
Lordswood Girls' School And Sixth Form CentreAcademy Converter1.03 KM
Keystone Children'S CentreChildren's Centre1.06 KM

Images

Hadleigh Estate Agents-31.jpg Hadleigh Estate Agents-20.jpg Hadleigh Estate Agents-27.jpg Hadleigh Estate Agents-16.jpg Dining Room Hadleigh Estate Agents-22.jpg Lounge Hadleigh Estate Agents-13.jpg Hadleigh Estate Agents-28.jpg Garden Hadleigh Estate Agents-30.jpg Hadleigh Estate Agents-18.jpg Hadleigh Estate Agents-1.jpg Hadleigh Estate Agents-5.jpg Hadleigh Estate Agents-7.jpg Hadleigh Estate Agents-11.jpg Kitchen Hadleigh Estate Agents-25.jpg Hadleigh Estate Agents-2.jpg Master Bedroom Bedroom Two Bathroom Bedroom Three Hadleigh Estate Agents-14.jpg Hadleigh Estate Agents-33.jpg

Nearby Streets

NameAverage PriceAverage SqftDistance
Oak Close £ 445,00000.00 KM
Grosvenor Road £ 469,61800.00 KM
Wood Lane £ 433,75000.00 KM
Beech Road £ 165,00000.00 KM
Woodville Road £ 980,00000.00 KM

Nearby Transport

NameNLCTLCDistance
University (Birmingham)4504UNI3.68 KM
Smethwick Rolfe Street1150SMR3.92 KM
Selly Oak1105SLY4.19 KM
Smethwick Galton Bridge1114SGB4.70 KM
The Hawthorns4523THW4.93 KM

Nearby Listings

AddressPriceTypeScoreDistance
Grosvenor Road, Harborne, Birmingham, B17 £ 349,950BUY8 / 100.00 KM
Grosvenor Road, Harborne, Birmingham £ 300,000BUY5 / 100.01 KM
Grosvenor Road, Harborne £ 500,000BUY7 / 100.03 KM
Grosvenor Road, Harborne, Birmingham, B17 9AL £ 450,000BUY7 / 100.03 KM
Grosvenor Road, Harborne, Birmingham, B17 9AL £ 425,000BUY7 / 100.04 KM

Nearby Properties

AddressPriceDistance
39 Grosvenor Road £ 195,0000.01 KM
89 Grosvenor Road £ 138,5000.01 KM
79 Grosvenor Road £ 200,0000.01 KM
51 Grosvenor Road £ 207,5000.01 KM
41 Grosvenor Road £ 224,0000.01 KM