Laycock Avenue, Gringley On The Hill
Martin & Co logo

Laycock Avenue, Gringley On The Hill

By Martin & Co

£ 259,950

Reviews

3 out of 5 stars

Martin & Co says ..

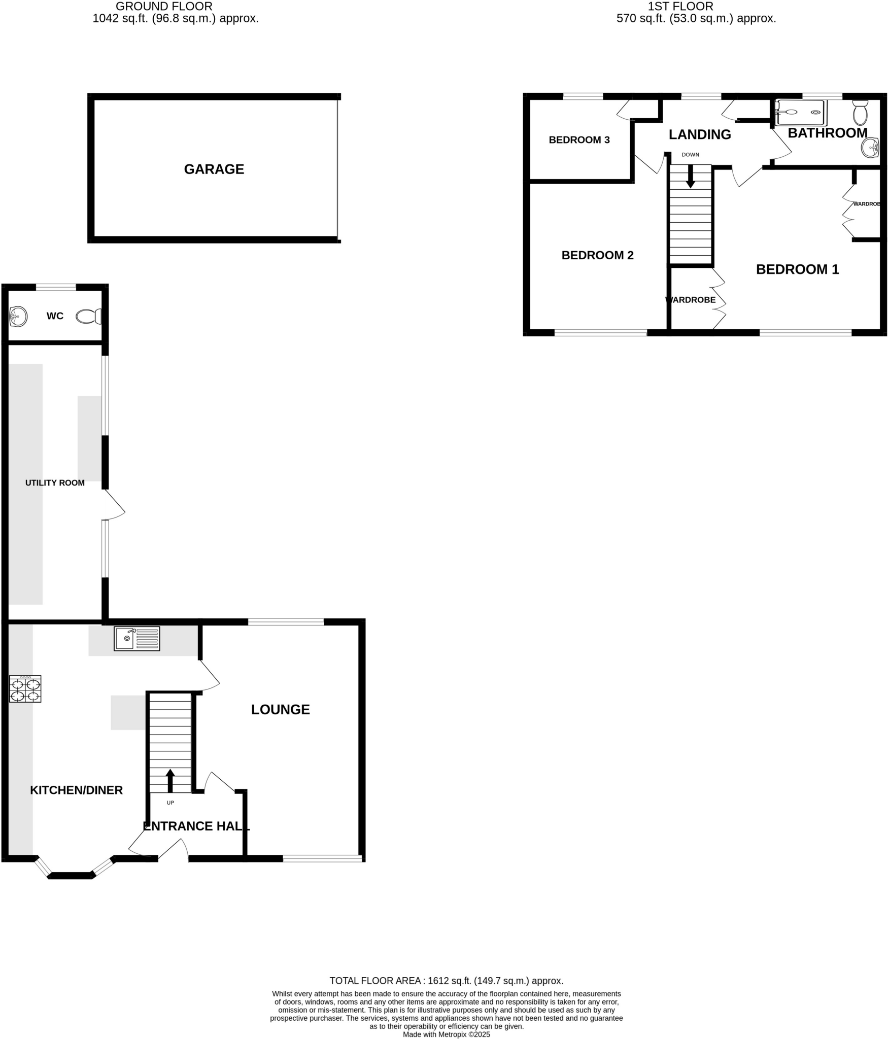
Martin&Co are pleased to present this attractive semi-detached home, set on a stunning corner plot, offers spacious living with three generous bedrooms, a beautifully appointed kitchen, and a modern family bathroom in a sought-after residential location.

Property Oracle says ..

Therefore, we give this property 7 / 10. *Disclaimer: This is our option and does constitute a recommendation or financial advice. Do your own research. *

Price
8
Condition
5
Location
7
Land
8
Bedrooms
3
Bathrooms
1
Sqft (est)
1,612.00

The heatmap indicates the level of crime in the area. The color of the heatmap indicates the crime severity and recency.

Metrics Year-on-Year

Average area value
233,633.00 £
Increased by 18.24 %
from 197,584.00 £
Est sale value
567,424.00 £
Increased by 88.24 %
from 301,444.00 £
Average area rental value
900.00 £/mo
Increased by 37.40 %
from 655.00 £/mo
Est letting value
1,612.00 £/mo
from 0.00 £/mo
Est rental Yield
4.62 %
Increased by 16.08 %
from 3.98 %
Crime Rate
130.00 %
Unchanged by 0.00 %
from 130.00 %

Agent Activity

  • Martin & Co created the listing.

Nearby Schools

NameTypeOfstedDistance
St Peter'S Cofe Primary And Nursery SchoolVoluntary Aided SchoolGood0.23 KM
Walkeringham Primary SchoolCommunity SchoolOutstanding6.14 KM
Misterton Primary And Nursery SchoolCommunity SchoolGood6.57 KM
Bassetlaw Rural Children'S CentreChildren's Centre6.81 KM
North Wheatley Church Of England Primary SchoolVoluntary Controlled SchoolOutstanding6.97 KM

Images

86cb116b-WhatsApp... ad76b925-WhatsApp... 99786972-WhatsApp... user_edited_photo... user_edited_photo... 08aa0fe9-WhatsApp... user_edited_photo... 95151d5c-WhatsApp... user_edited_photo... user_edited_photo... b0c92207-WhatsApp... user_edited_photo... 143a2bdd-WhatsApp... user_edited_photo... 8e21531a-WhatsApp... 9a2a0e51-WhatsApp...

Nearby Streets

NameAverage PriceAverage SqftDistance
Lancaster Road £ 000.00 KM
Shaw Road £ 000.00 KM

Nearby Listings

AddressPriceTypeScoreDistance
Laycock Avenue, Gringley On The Hill £ 259,950BUY7 / 100.00 KM
Laycock Avenue, Doncaster £ 240,000BUY6 / 100.01 KM
Baker Avenue, Gringley On The Hill, DN10 £ 360,000BUY7 / 100.21 KM
Westwell Lane, Gringley-on-the-Hill, Doncaster, DN10 4QY £ 255,000BUYUnknown0.24 KM
Westwell Lane, Gringley-On-The-Hill, Doncaster £ 325,000BUY6 / 100.24 KM

Nearby Properties

AddressPriceDistance
28 Laycock Avenue £ 122,0000.00 KM
33 Laycock Avenue £ 145,0000.00 KM
12 Laycock Avenue £ 133,0000.00 KM
6 Laycock Avenue £ 155,0000.00 KM
Leys Cottage £ 360,0000.16 KM