Bourne Close, West End, Woking, Surrey, GU24
By Seymours Estate Agents
£ 340,000
Reviews
3 out of 5 stars
Seymours Estate Agents says ..
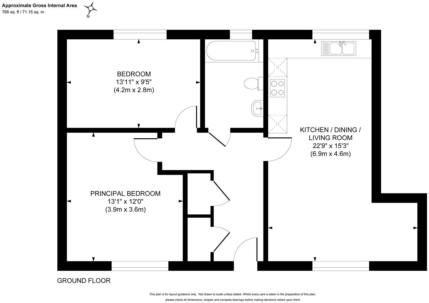
A spacious two bedroom ground floor maisonette with parking. Situated on a recently built development in West End, this spacious ground floor maisonette offers well proportioned accommodation throughout, perfect for first time buyers, downsizers, or investors alike. The property boasts ...
Property Oracle says ..
This is a well-presented two-bedroom maisonette in West End, Woking. The property benefits from a modern kitchen and bathroom and appears to be in good decorative order throughout. While it lacks a private garden, its location offers convenient access to local schools and transport links. The price seems reasonable given the property’s size, condition, and location within the Surrey area. It would be ideally suited to a small family or couple. The maisonette benefits from off street parking.
Therefore, we give this property 6 / 10. *Disclaimer: This is our option and does constitute a recommendation or financial advice. Do your own research. *
- Price
- 7
- Condition
- 8
- Location
- 7
- Land
- 3
- Bedrooms
- 2
- Bathrooms
- 1
- Sqft (est)
- 766.00
The heatmap indicates the level of crime in the area. The color of the heatmap indicates the crime severity and recency.
Metrics Year-on-Year
- Average area value
- 644,188.00 £Increased by 3.54 %
- Est sale value
- 324,784.00 £Decreased by 26.64 %
- Average area rental value
- 2,466.00 £/moDecreased by 21.84 %
- Est letting value
- 766.00 £/moDecreased by 50.00 %
- Est rental Yield
- 4.59 %Decreased by 24.63 %
- Crime Rate
- 8.00 %Unchanged by 0.00 %
Agent Activity
Seymours Estate Agents created the listing.
Nearby Schools
| Name | Type | Ofsted | Distance |
|---|---|---|---|
| Holy Trinity Cofe Primary School | Academy Converter | 0.89 KM | |
| Bisley Cofe Primary School | Voluntary Aided School | Good | 1.02 KM |
| Gordon'S School | Academy Converter | Outstanding | 1.53 KM |
| Knaphill School | Academy Converter | 2.40 KM | |
| The Knaphill Lower School | Academy Converter | 2.45 KM |
Images
Nearby Streets
| Name | Average Price | Average Sqft | Distance |
|---|---|---|---|
| Iris Drive | £ 0 | 0 | 0.00 KM |
| Queens Place | £ 0 | 0 | 0.00 KM |
| Strawberry Fields | £ 925,000 | 0 | 0.00 KM |
| Sarsen Court | £ 625,000 | 0 | 0.00 KM |
Nearby Transport
| Name | NLC | TLC | Distance |
|---|---|---|---|
| Brookwood | 5687 | BKO | 3.31 KM |
| Sunningdale | 5671 | SNG | 6.53 KM |
| Bagshot | 5681 | BAG | 6.65 KM |
| Longcross | 5674 | LNG | 7.44 KM |
| Worplesdon | 5686 | WPL | 7.81 KM |
Nearby Listings
| Address | Price | Type | Score | Distance |
|---|---|---|---|---|
| Bourne Close, West End, Woking, Surrey, GU24 | £ 340,000 | BUY | 6 / 10 | 0.00 KM |
| Bourne Close, West End, Woking, Surrey, GU24 | £ 153,000 | BUY | 6 / 10 | 0.00 KM |
| Bourne Close, West End, Woking, Surrey | £ 153,000 | BUY | 6 / 10 | 0.00 KM |
| Kings Road, West End | £ 675,000 | BUY | 7 / 10 | 0.14 KM |
| Guildford Road, West End, GU24 | £ 1,050,000 | BUY | 7 / 10 | 0.16 KM |
Nearby Properties
| Address | Price | Distance |
|---|---|---|
| 8 Kings Road | £ 590,000 | 0.18 KM |
| 10 Kings Road | £ 415,000 | 0.18 KM |
| 2 Kings Road | £ 370,000 | 0.18 KM |
| 6a Kings Road | £ 540,000 | 0.18 KM |
| 24 Kings Road | £ 295,000 | 0.18 KM |