Yopa says ..
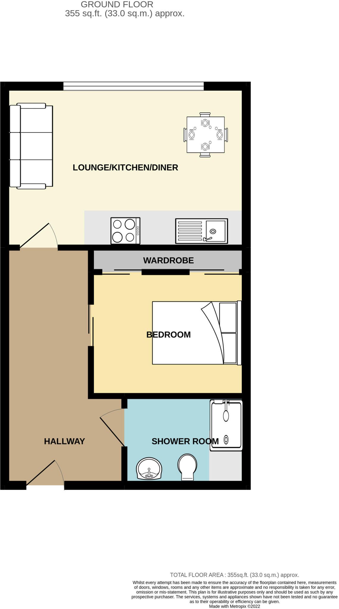
Great Investment opportunity, One bedroom apartment, sought-after location ready for immediate viewings. Open Plan Lounge/Kitchen/Diner, Double bedroom with fitted wardrobes and a good size modern shower room. This will get snapped up and priced to sell.
Property Oracle says ..
Therefore, we give this property 5 / 10. *Disclaimer: This is our option and does constitute a recommendation or financial advice. Do your own research. *
- Price
- 8
- Condition
- 7
- Location
- 7
- Land
- 1
- Bedrooms
- 1
- Bathrooms
- 1
- Sqft (est)
- 355.00
The heatmap indicates the level of crime in the area. The color of the heatmap indicates the crime severity and recency.
Metrics Year-on-Year
- Average area value
- 227,500.00 £Decreased by 1.97 %
- Est sale value
- 86,975.00 £Increased by 7.93 %
- Average area rental value
- 979.00 £/moIncreased by 16.83 %
- Est letting value
- 355.00 £/mo
- Est rental Yield
- 5.16 %Increased by 19.17 %
- Crime Rate
- 4.00 %Unchanged by 0.00 %
from 232,070.00 £
from 80,585.00 £
from 838.00 £/mo
from 0.00 £/mo
from 4.33 %
from 4.00 %
Agent Activity
Yopa created the listing.
Nearby Schools
| Name | Type | Ofsted | Distance |
|---|---|---|---|
| Netherthorpe Primary School | Community School | Good | 0.24 KM |
| Bethany School | Other Independent School | Good | 0.63 KM |
| Springfield Primary School | Community School | Good | 0.80 KM |
| University Of Sheffield | Higher Education Institutions | Good | 1.13 KM |
| Broomhall Nursery School | Local Authority Nursery School | Outstanding | 1.36 KM |
Images
Nearby Streets
| Name | Average Price | Average Sqft | Distance |
|---|---|---|---|
| New Edward Street | £ 0 | 0 | 0.00 KM |
| Samborne Square | £ 0 | 0 | 0.00 KM |
| Leicester Street | £ 0 | 0 | 0.00 KM |
| Wheeldon Street | £ 0 | 0 | 0.00 KM |
| St. Georges Walk | £ 0 | 0 | 0.00 KM |
Nearby Transport
| Name | NLC | TLC | Distance |
|---|---|---|---|
| Sheffield | 6691 | SHF | 2.05 KM |
| Darnall | 6729 | DAN | 7.37 KM |
| Dore And Totley | 6690 | DOR | 7.55 KM |
| Meadowhall | 6663 | MHS | 8.17 KM |
| Chapeltown (South Yorkshire) | 6664 | CLN | 8.70 KM |
Nearby Listings
| Address | Price | Type | Score | Distance |
|---|---|---|---|---|
| Upper Allen Street, Sheffield, S3 | £ 75,000 | BUY | 5 / 10 | 0.00 KM |
| Upper Allen Street, Sheffield, S3 | £ 80,000 | BUY | Unknown | 0.02 KM |
| 185 Upper Allen Street, Sheffield, S3 | £ 70,000 | BUY | 5 / 10 | 0.03 KM |
| Q4 Apartments, 185 Upper Allen Street, Sheffield | £ 100,000 | BUY | 6 / 10 | 0.03 KM |
| Upper Allen Street, Sheffield, S3 | £ 90,000 | BUY | 5 / 10 | 0.03 KM |
Nearby Properties
| Address | Price | Distance |
|---|---|---|
| B7 Aspect 3 Edward Street | £ 180,000 | 0.11 KM |
| E6 Aspect 3 Edward Street | £ 86,700 | 0.11 KM |
| B6 Aspect 3 Edward Street | £ 180,000 | 0.11 KM |
| B16 Aspect 3 Edward Street | £ 237,500 | 0.11 KM |
| B10 Aspect 3 Edward Street | £ 182,225 | 0.16 KM |