Liverpool Lawn,Ramsgate,CT11 9HJ
By Footprints, Powered by eXp UK
£ 625,000
Reviews
4 out of 5 stars
Footprints, Powered by eXp UK says ..
Immaculately Renovated Georgian Home in Prestigious Liverpool Lawn, Moments from the Royal Harbour
Property Oracle says ..
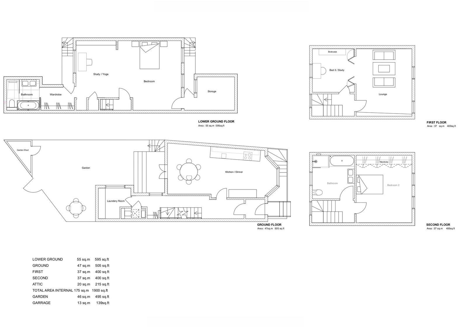
This property is a beautifully presented three bedroom terraced house located in the desirable Central Harbour area of Ramsgate. The property has been recently renovated to a high standard, boasting a modern kitchen, stylish bathrooms, and well-proportioned living spaces. The location is excellent, with easy access to Ramsgate town centre, the harbour, and local amenities. There are also good transport links nearby. The property also benefits from a private rear garden, which is a rare find in this area. While the list price is higher than the average for the area, the size, condition, location, and additional features of this property justify the premium.
Therefore, we give this property 8 / 10. *Disclaimer: This is our option and does constitute a recommendation or financial advice. Do your own research. *
- Price
- 7
- Condition
- 9
- Location
- 9
- Land
- 7
- Bedrooms
- 3
- Bathrooms
- 2
- Sqft (est)
- 1,900.00
- Lot (est)
- 1,900.00
The heatmap indicates the level of crime in the area. The color of the heatmap indicates the crime severity and recency.
Metrics Year-on-Year
- Average area value
- 282,500.00 £Decreased by 17.11 %
- Est sale value
- 615,600.00 £Increased by 14.49 %
- Average area rental value
- 1,143.00 £/moDecreased by 1.80 %
- Est letting value
- 1,900.00 £/mo
- Est rental Yield
- 4.86 %Increased by 18.54 %
- Crime Rate
- 20.00 %Unchanged by 0.00 %
Agent Activity
Footprints, Powered by eXp UK created the listing.
Nearby Schools
| Name | Type | Ofsted | Distance |
|---|---|---|---|
| Liberty Training | Special Post 16 Institution | Requires improvement | 0.05 KM |
| The Old Priory School | Other Independent Special School | Good | 0.53 KM |
| Chatham & Clarendon Grammar School | Academy Converter | Good | 0.57 KM |
| Priory Children'S Centre | Children's Centre | 0.58 KM | |
| Priory Infant School | Community School | Good | 0.73 KM |
Images
Nearby Streets
| Name | Average Price | Average Sqft | Distance |
|---|---|---|---|
| Albert Street | £ 218,000 | 0 | 0.00 KM |
| St. Michael's Alley | £ 136,750 | 0 | 0.00 KM |
| Grundy's Hill | £ 0 | 0 | 0.00 KM |
| Cornhill | £ 0 | 0 | 0.00 KM |
| Prospect Terrace | £ 850,000 | 0 | 0.00 KM |
Nearby Transport
| Name | NLC | TLC | Distance |
|---|---|---|---|
| Ramsgate | 5023 | RAM | 1.52 KM |
| Dumpton Park | 5034 | DMP | 1.90 KM |
| Broadstairs | 5006 | BSR | 3.77 KM |
| Margate | 5018 | MAR | 7.76 KM |
Nearby Listings
| Address | Price | Type | Score | Distance |
|---|---|---|---|---|
| Liverpool Lawn,Ramsgate,CT11 9HJ | £ 625,000 | BUY | 8 / 10 | 0.00 KM |
| Liverpool Lawn, Ramsgate, CT11 9HJ | £ 560,000 | BUY | 6 / 10 | 0.00 KM |
| Liverpool Lawn, Ramsgate, CT11 9HJ | £ 425,000 | BUY | 6 / 10 | 0.00 KM |
| Liverpool Lawn, Ramsgate, CT11 | £ 375,000 | BUY | 6 / 10 | 0.00 KM |
| Liverpool Lawn, Ramsgate, Kent, CT11 | £ 425,000 | BUY | 6 / 10 | 0.01 KM |
Nearby Properties
| Address | Price | Distance |
|---|---|---|
| 27 Liverpool Lawn | £ 310,000 | 0.00 KM |
| 19 Liverpool Lawn | £ 310,000 | 0.00 KM |
| 30 Liverpool Lawn | £ 32,000 | 0.00 KM |
| Marina View | £ 400,000 | 0.00 KM |
| 40 Liverpool Lawn | £ 415,000 | 0.00 KM |