ME
Shelley Close | Ashley Heath | Ringwood | BH24
By Meyers
£ 650,000
Reviews
3 out of 5 stars
Meyers says ..
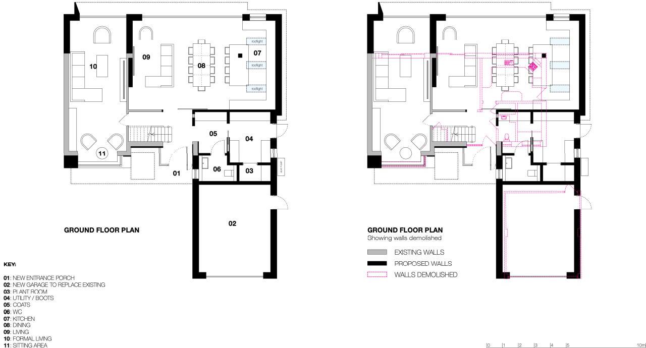
A Rare Opportunity in Ashley Heath – Spacious Detached Family Home with Planning Permission Granted | Quiet Cul De Sac Location | Four Double Bedrooms | Double Garage | Private South Facing Plot | No Chain - Vacant
Property Oracle says ..
Therefore, we give this property 6 / 10. *Disclaimer: This is our option and does constitute a recommendation or financial advice. Do your own research. *
- Price
- 7
- Condition
- 6
- Location
- 7
- Land
- 7
- Bedrooms
- 4
- Bathrooms
- 2
- Sqft (est)
- 1,595.00
The heatmap indicates the level of crime in the area. The color of the heatmap indicates the crime severity and recency.
Metrics Year-on-Year
- Average area value
- 839,403.00 £Increased by 30.86 %
- Est sale value
- 642,785.00 £Increased by 17.49 %
- Average area rental value
- 2,365.00 £/moIncreased by 5.25 %
- Est letting value
- 1,595.00 £/moUnchanged by 0.00 %
- Est rental Yield
- 3.38 %Decreased by 19.52 %
- Crime Rate
- 4.00 %Unchanged by 0.00 %
from 641,442.00 £
from 547,085.00 £
from 2,247.00 £/mo
from 1,595.00 £/mo
from 4.20 %
from 4.00 %
Agent Activity
Meyers created the listing.
Nearby Schools
| Name | Type | Ofsted | Distance |
|---|---|---|---|
| St Ives Primary & Nursery School | Academy Converter | 2.38 KM | |
| Sheiling College | Special Post 16 Institution | Good | 3.39 KM |
| Sheiling School | Other Independent Special School | Good | 3.39 KM |
| West Moors Children'S Centre | Children's Centre | 3.70 KM | |
| West Moors Middle School | Community School | Good | 3.79 KM |
Images
Nearby Streets
| Name | Average Price | Average Sqft | Distance |
|---|---|---|---|
| Willow Close | £ 0 | 0 | 0.00 KM |
| Rowan Close | £ 475,000 | 0 | 0.00 KM |
| Oakwood Close | £ 835,000 | 0 | 0.00 KM |
| Badgers Close | £ 0 | 0 | 0.00 KM |
| St. Ives Park | £ 0 | 0 | 0.00 KM |
Nearby Listings
| Address | Price | Type | Score | Distance |
|---|---|---|---|---|
| Shelley Close | Ashley Heath | Ringwood | BH24 | £ 650,000 | BUY | 6 / 10 | 0.00 KM |
| Shelley Close, Ashley Heath, BH24 | £ 695,000 | BUY | 7 / 10 | 0.06 KM |
| St. Leonards Way | Ashley Heath | Ringwood | BH24 | £ 650,000 | BUY | Unknown | 0.13 KM |
| Lions Lane, Ashley Heath, BH24 2HJ | £ 1,100,000 | BUY | 7 / 10 | 0.15 KM |
| Lions Lane, Ashley Heath, Ringwood, BH24 | £ 735,000 | BUY | 7 / 10 | 0.18 KM |
Nearby Properties
| Address | Price | Distance |
|---|---|---|
| 7 Shelley Close | £ 445,000 | 0.01 KM |
| 19 Shelley Close | £ 415,000 | 0.01 KM |
| 14 Shelley Close | £ 395,000 | 0.01 KM |
| 6 Shelley Close | £ 420,000 | 0.01 KM |
| 8 Shelley Close | £ 300,000 | 0.01 KM |