10 The Courtyard Cottages The Highland Club, St. Benedicts Abbey, Fort Augustus, PH32 4DE
By McEwan Fraser Legal
£ 280,000
Reviews
3 out of 5 stars
McEwan Fraser Legal says ..
A Charming 2 Bedroom Cottage , Riverside Retreat in the Prestigious Highland Club
Property Oracle says ..
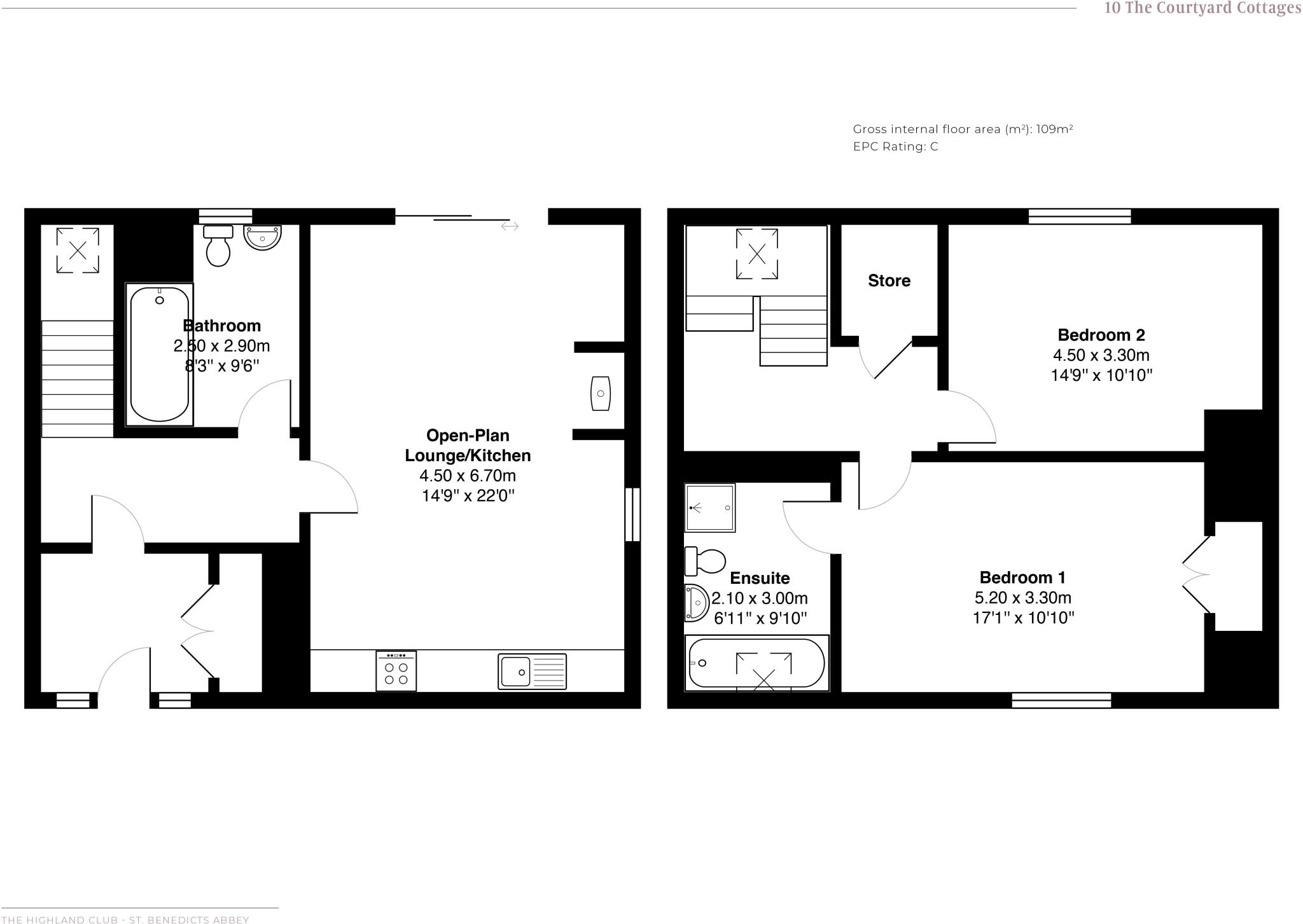
This property is a 2 bedroom, 2 bathroom cottage located within The Highland Club in Fort Augustus. The Highland Club is situated in a picturesque location on the banks of Loch Ness, offering stunning views and a tranquil atmosphere. The cottage itself appears to be in excellent condition, with modern fixtures and fittings throughout. The images show a well-maintained interior with a contemporary kitchen and bathrooms. There is also a small garden area visible in the exterior photos.
The list price of £280,000 is slightly below the average price for the area (£315,026), and the property’s size (1,173.27 sqft) is also smaller than the average (1,307 sqft). However, considering the property’s apparent excellent condition and desirable location within The Highland Club, which offers amenities such as a swimming pool and games room (shown in the provided images), the price may represent good value. The lack of information regarding nearby schools and transportation links makes a complete assessment of the location score difficult. More information would be needed to fully assess the location score.
Therefore, we give this property 7 / 10. *Disclaimer: This is our option and does constitute a recommendation or financial advice. Do your own research. *
- Price
- 8
- Condition
- 9
- Location
- 7
- Land
- 6
- Bedrooms
- 2
- Bathrooms
- 2
- Sqft (est)
- 1,173.27
The heatmap indicates the level of crime in the area. The color of the heatmap indicates the crime severity and recency.
Metrics Year-on-Year
- Average area value
- 456,667.00 £Increased by 48.67 %
- Est sale value
- 186,549.93 £Decreased by 32.05 %
- Average area rental value
- 900.00 £/moDecreased by 18.18 %
- Est letting value
- 0.00 £/mo
- Est rental Yield
- 2.36 %Decreased by 45.12 %
- Crime Rate
- 0.00 %
Agent Activity
McEwan Fraser Legal created the listing.
Images
Nearby Streets
| Name | Average Price | Average Sqft | Distance |
|---|---|---|---|
| Glendoe Road | £ 105,000 | 0 | 0.00 KM |
| The Riggs | £ 160,000 | 0 | 0.00 KM |
| Bunoich Brae | £ 435,000 | 0 | 0.00 KM |
| Old Main Road | £ 240,000 | 0 | 0.00 KM |
Nearby Listings
| Address | Price | Type | Score | Distance |
|---|---|---|---|---|
| 10 The Courtyard Cottages The Highland Club, St. Benedicts Abbey, Fort Augustus, PH32 4DE | £ 280,000 | BUY | 7 / 10 | 0.00 KM |
| Flat 7, The Old School, The Highland Club, Fort Augustus, PH32 | £ 295,000 | BUY | 5 / 10 | 0.00 KM |
| Flat 17, The Abbey Church, The Highland Club, St, Fort Augustus, PH32 | £ 250,000 | BUY | 5 / 10 | 0.00 KM |
| Flat 14 The Abbey The Highland Club, St. Benedicts Abbey, Fort Augustus, PH32 4DE | £ 275,000 | BUY | 7 / 10 | 0.02 KM |
| 17 The Monastery, The Highland Club St. Benedicts Abbey, Fort Augustus, PH32 4BJ | £ 325,000 | BUY | 6 / 10 | 0.05 KM |