Bychoice says ..
SHAREDOWNERSHIP 40% Share Advertised. A great opportunity to buy a brand new two-bedroom home in Thetford, available through shared ownership with Havebury Housing. This modern property features a bright kitchen, large living/ diner, a downstairs W/C, spacious bedrooms and allocated parking. The ...
Property Oracle says ..
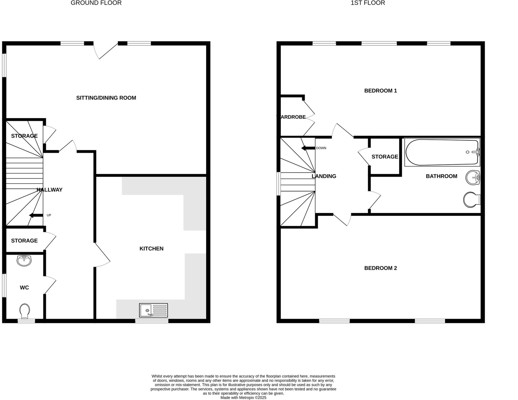
This end-of-terrace property on Coromandel Road, Thetford, presents a promising opportunity for potential buyers. Marketed by Bychoice, the house boasts 2 bedrooms and 1 bathroom within its 1,010 sqft. The interior appears modern and well-maintained, suggesting it’s ready for immediate occupancy. The inclusion of a garden with a shed enhances its appeal, offering valuable outdoor space. Located in a residential area of Thetford, the property benefits from proximity to local amenities and transportation links, including the Thetford train station. The presence of nearby schools such as Admirals Academy and Drake Primary School makes it suitable for families. With a list price of £102,000, the property represents good value for money, especially when compared to the average price per square foot in the area. Overall, this property offers a blend of comfort, convenience, and affordability, making it an attractive option for first-time buyers or investors.
Therefore, we give this property 7 / 10. *Disclaimer: This is our option and does constitute a recommendation or financial advice. Do your own research. *
- Price
- 9
- Condition
- 8
- Location
- 6
- Land
- 6
- Bedrooms
- 2
- Bathrooms
- 1
- Sqft (est)
- 1,010.00
The heatmap indicates the level of crime in the area. The color of the heatmap indicates the crime severity and recency.
Metrics Year-on-Year
- Average area value
- 508,948.00 £Increased by 6.99 %
- Est sale value
- 657,510.00 £Increased by 48.63 %
- Average area rental value
- 1,944.00 £/moIncreased by 29.95 %
- Est letting value
- 2,020.00 £/moIncreased by 100.00 %
- Est rental Yield
- 4.58 %Increased by 21.49 %
- Crime Rate
- 0.00 %
Agent Activity
Bychoice created the listing.
Nearby Schools
| Name | Type | Ofsted | Distance |
|---|---|---|---|
| Admirals Academy | Academy Sponsor Led | 1.49 KM | |
| Raleigh Infant Academy | Academy Sponsor Led | 1.49 KM | |
| The Thetford Academy | Academy Sponsor Led | Good | 1.84 KM |
| Drake Primary School | Community School | Outstanding | 1.99 KM |
| Surestart Thetford Drake Children'S Centre (Phase 2) | Children's Centre | 2.03 KM |
Images
Nearby Streets
| Name | Average Price | Average Sqft | Distance |
|---|---|---|---|
| Sovereign Way | £ 0 | 0 | 0.00 KM |
| Elswick Road | £ 0 | 0 | 0.00 KM |
| Shortingate Road | £ 143,000 | 0 | 0.00 KM |
| Cedar Road | £ 219,950 | 0 | 0.00 KM |
| Joe Blunt's Lane | £ 0 | 0 | 0.00 KM |
Nearby Transport
| Name | NLC | TLC | Distance |
|---|---|---|---|
| Thetford | 7203 | TTF | 3.26 KM |
Nearby Listings
| Address | Price | Type | Score | Distance |
|---|---|---|---|---|
| Coromandel Road, Thetford | £ 102,000 | BUY | 7 / 10 | 0.00 KM |
| Coromandel Road, Thetford | £ 102,000 | BUY | 7 / 10 | 0.00 KM |
| Coromandel Road, Thetford | £ 96,000 | BUY | 7 / 10 | 0.00 KM |
| Elveden Place, Norwhich Road, Thetford | £ 62,500 | BUY | 7 / 10 | 0.14 KM |
| Sovereign Way, Thetford, IP24 | £ 300,000 | BUY | 8 / 10 | 0.15 KM |
Nearby Properties
| Address | Price | Distance |
|---|---|---|
| 1 Pennycress Drive | £ 111,350 | 0.68 KM |
| 6 Pennycress Drive | £ 160,000 | 0.68 KM |
| 4 Pennycress Drive | £ 230,000 | 0.68 KM |
| 21 Pennycress Drive | £ 158,000 | 0.68 KM |
| 25 Pennycress Drive | £ 310,000 | 0.68 KM |