St. Helens Road, Whittle-Le-Woods, Chorley
By Ben Rose
£ 229,995
Reviews
3 out of 5 stars
Ben Rose says ..
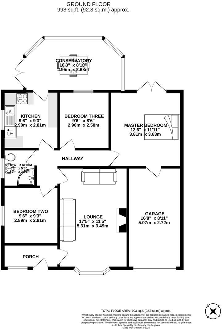
Ben Rose Estate Agents are pleased to present to the market this charming three-bedroom semi-detached bungalow, situated in the highly sought-after village of Whittle-Le-Woods. This well-presented home is conveniently located close to excellent local schools, shops, and amenities, as well as scen...
Property Oracle says ..
This semi-detached bungalow in Whittle-le-Woods, Chorley is listed at £229,995. The property has three bedrooms, one bathroom, and a conservatory. It benefits from a good-sized garden and is conveniently located near several primary schools with good Ofsted ratings (Whittle-Le-Woods Church of England Primary School, Clayton-Le-Woods Manor Road Primary School, and St Bede’s Catholic Primary School, all within approximately 1.5km). Train stations such as Buckshaw Parkway are also within a reasonable distance (approximately 4km). The average house price in the area is significantly higher at £515,185, with an average price per square foot of £553. However, nearby comparable properties (semi-detached properties on St Helens Road) sold for significantly less, ranging from £170,000 to £184,000. The property appears to be well-maintained and in good condition, with a recently updated kitchen and conservatory. The presence of solar panels suggests an energy-efficient design. The plot size is approximately 993 sqft.
Therefore, we give this property 7 / 10. *Disclaimer: This is our option and does constitute a recommendation or financial advice. Do your own research. *
- Price
- 6
- Condition
- 8
- Location
- 7
- Land
- 7
- Bedrooms
- 3
- Bathrooms
- 1
- Sqft (est)
- 912.15
- Lot (est)
- 993.00
The heatmap indicates the level of crime in the area. The color of the heatmap indicates the crime severity and recency.
Metrics Year-on-Year
- Average area value
- 254,219.00 £Decreased by 14.97 %
- Est sale value
- 271,820.70 £Increased by 33.63 %
- Average area rental value
- 1,214.00 £/moIncreased by 23.75 %
- Est letting value
- 912.15 £/mo
- Est rental Yield
- 5.73 %Increased by 45.43 %
- Crime Rate
- 8.00 %Unchanged by 0.00 %
Agent Activity
Ben Rose created the listing.
Nearby Schools
| Name | Type | Ofsted | Distance |
|---|---|---|---|
| Whittle-Le-Woods Church Of England Primary School | Voluntary Aided School | Good | 1.14 KM |
| Clayton-Le-Woods Manor Road Primary School | Community School | Good | 1.27 KM |
| St Bede'S Catholic Primary School | Voluntary Aided School | Good | 1.48 KM |
| Westwood Primary School | Community School | Good | 1.55 KM |
| Cambian Red Rose School | Other Independent Special School | Good | 1.98 KM |
Images
Nearby Streets
| Name | Average Price | Average Sqft | Distance |
|---|---|---|---|
| Greenacres | £ 0 | 0 | 0.00 KM |
| Chapel Lane | £ 275,000 | 0 | 0.00 KM |
| Saint John's Close | £ 250,000 | 0 | 0.00 KM |
| Chapel Fold | £ 0 | 0 | 0.00 KM |
| Meadway | £ 0 | 0 | 0.00 KM |
Nearby Transport
| Name | NLC | TLC | Distance |
|---|---|---|---|
| Buckshaw Parkway | 7501 | BSV | 4.07 KM |
| Bamber Bridge | 2561 | BMB | 4.77 KM |
| Chorley | 2745 | CRL | 4.79 KM |
| Euxton Balshaw Lane | 2080 | EBA | 5.93 KM |
| Leyland | 2710 | LEY | 6.17 KM |
Nearby Listings
| Address | Price | Type | Score | Distance |
|---|---|---|---|---|
| St. Helens Road, Whittle-Le-Woods, Chorley | £ 229,995 | BUY | 7 / 10 | 0.00 KM |
| St. Helens Road, Whittle-le-Woods, Chorley, Lancashire, PR6 | £ 275,000 | BUY | 7 / 10 | 0.03 KM |
| St. Helens Road, Chorley | £ 209,995 | BUY | Unknown | 0.03 KM |
| St. Helens Road, Chorley | £ 209,995 | BUY | 6 / 10 | 0.03 KM |
| St. Helens Road, Whittle-Le-Woods, Chorley | £ 319,995 | BUY | 7 / 10 | 0.08 KM |
Nearby Properties
| Address | Price | Distance |
|---|---|---|
| 13 St Helens Road | £ 182,500 | 0.04 KM |
| 40 St Helens Road | £ 184,000 | 0.04 KM |
| 17 St Helens Road | £ 184,000 | 0.04 KM |
| 20 St Helens Road | £ 170,000 | 0.04 KM |
| 19 St Helens Road | £ 120,000 | 0.04 KM |