Davies & Davies says ..
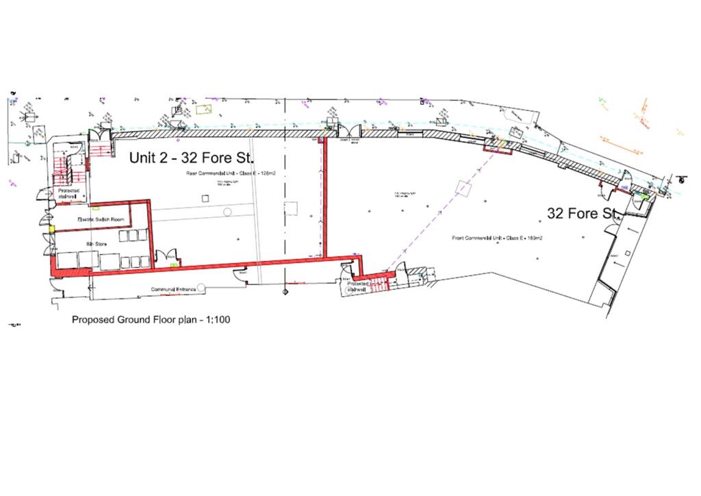
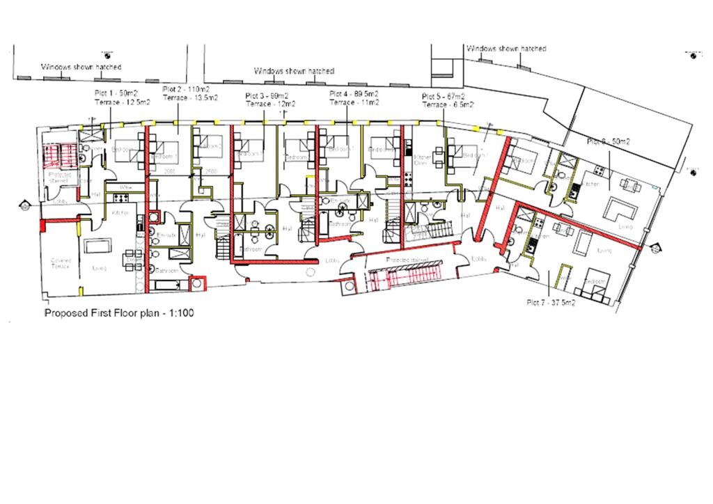
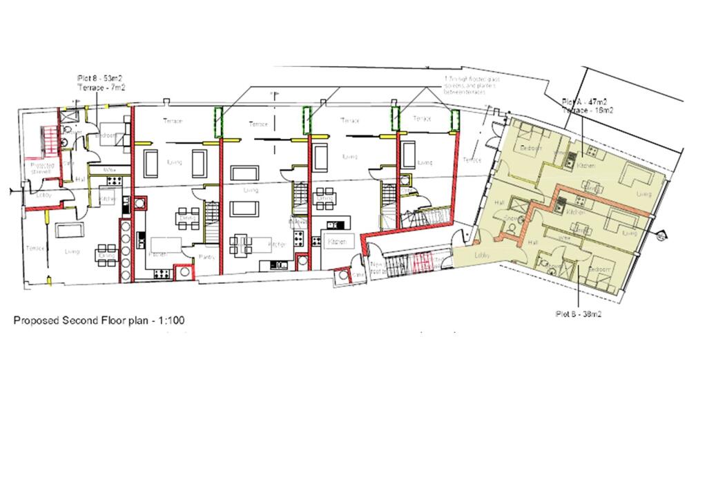
This is a rare opportunity for a town centre development with planning permission for 8 new apartments as well as 2 existing commercial units on the ground floor, currently providing over £30,000 of annual income. The property offers a wonderful chance for a superb rental return or for sell...
Property Oracle says ..
This property is a commercial building located on Narrow Wine Street in Trowbridge, Wiltshire. The listing price is £650,000. The property is currently vacant and appears to be undergoing renovation or is ready for fit-out. The location is central in Trowbridge, close to transportation links and several primary schools. However, the lack of information regarding the size of the property (both plot and building) makes it difficult to assess the value for money. More information is needed to provide a comprehensive analysis of the property’s potential.
Therefore, we give this property 3 / 10. *Disclaimer: This is our option and does constitute a recommendation or financial advice. Do your own research. *
- Price
- 3
- Condition
- 3
- Location
- 8
- Land
- 1
- Bedrooms
- 0
- Bathrooms
- 0
The heatmap indicates the level of crime in the area. The color of the heatmap indicates the crime severity and recency.
Metrics Year-on-Year
- Average area value
- 296,000.00 £Increased by 16.27 %
- Average area rental value
- 1,040.00 £/moIncreased by 8.67 %
- Est rental Yield
- 4.22 %Decreased by 6.43 %
- Crime Rate
- 67.00 %Unchanged by 0.00 %
Agent Activity
Davies & Davies created the listing.
Nearby Schools
| Name | Type | Ofsted | Distance |
|---|---|---|---|
| Newtown Community Primary School | Community School | Good | 0.70 KM |
| St John'S Catholic Primary School, Trowbridge | Voluntary Aided School | Good | 1.01 KM |
| Longfield Children'S Centre | Children's Centre | 1.03 KM | |
| Oasis Academy Longmeadow | Academy Sponsor Led | Requires improvement | 1.06 KM |
| Bellefield Primary And Nursery School | Voluntary Controlled School | Good | 1.14 KM |
Images
Nearby Streets
| Name | Average Price | Average Sqft | Distance |
|---|---|---|---|
| White Hart Yard | £ 0 | 0 | 0.00 KM |
| Church Walk | £ 170,000 | 0 | 0.00 KM |
| St. James Gardens | £ 0 | 0 | 0.00 KM |
| Conigre | £ 142,500 | 0 | 0.00 KM |
| Cross Street | £ 0 | 0 | 0.00 KM |
Nearby Transport
| Name | NLC | TLC | Distance |
|---|---|---|---|
| Trowbridge | 3348 | TRO | 0.75 KM |
| Bradford-On-Avon | 3341 | BOA | 5.65 KM |
| Westbury | 5712 | WSB | 6.02 KM |
| Dilton Marsh | 5502 | DMH | 7.95 KM |
| Avoncliff | 3265 | AVF | 8.43 KM |
Nearby Listings
| Address | Price | Type | Score | Distance |
|---|---|---|---|---|
| Fore Street, Trowbridge | £ 650,000 | BUY | 3 / 10 | 0.00 KM |
| Fore Street, Trowbridge | £ 135,000 | BUY | 6 / 10 | 0.06 KM |
| Fore Street, Trowbridge | £ 135,000 | BUY | 7 / 10 | 0.06 KM |
| Silver Street, Trowbridge | £ 160,000 | BUY | 6 / 10 | 0.11 KM |
| Church Walk, Trowbridge | £ 155,000 | BUY | 5 / 10 | 0.13 KM |
Nearby Properties
| Address | Price | Distance |
|---|---|---|
| 54 Fore Street | £ 249,750 | 0.10 KM |
| 21 Duke Street | £ 174,000 | 0.11 KM |
| 5 Church Walk | £ 230,000 | 0.12 KM |
| 56 - 56a Castle Street | £ 144,000 | 0.13 KM |
| 57 Castle Street | £ 105,000 | 0.13 KM |