Rag House, Holly Green , Upton upon Severn, Worcestershire, WR8 0PD
By John Goodwin FRICS
£ 750,000
Reviews
3 out of 5 stars
John Goodwin FRICS says ..
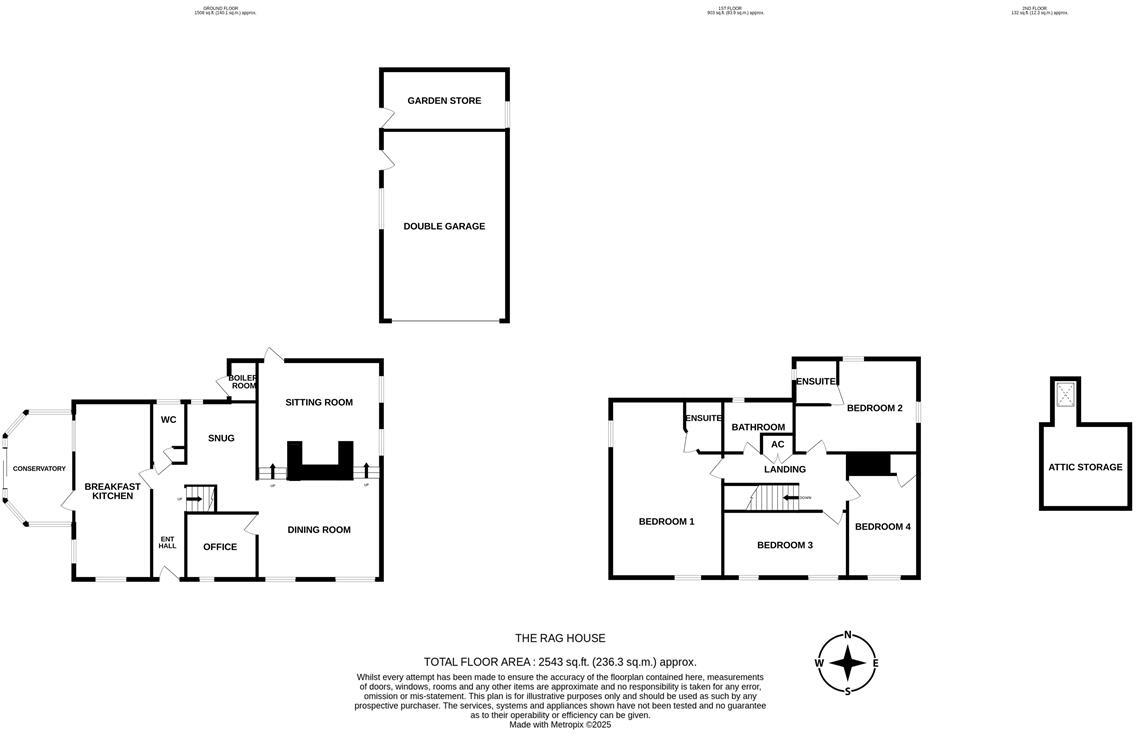
Rag House Is A Beautifully Presented And Extended Four Bedroom Characterful Property Over Approximately 2,543 Sq. Ft. Dating Back To The 1700's Occupying 0.4 Of An Acre Plot With Beautifully Maintained Gardens And Undisturbed Views Over Open Countryside And Towards The Malvern Hills. Off Road Pa...
Property Oracle says ..
Rag House is a charming detached property located in Holly Green, near Upton upon Severn. The house features four bedrooms and three bathrooms, making it suitable for families. The interior combines traditional elements with modern updates, creating a comfortable living space. The property benefits from a large garden, a conservatory, and a garage. While the price is higher than average for the area, the property’s size, condition, and desirable features justify the premium.
Therefore, we give this property 7 / 10. *Disclaimer: This is our option and does constitute a recommendation or financial advice. Do your own research. *
- Price
- 6
- Condition
- 8
- Location
- 7
- Land
- 9
- Bedrooms
- 4
- Bathrooms
- 3
- Sqft (est)
- 2,543.00
The heatmap indicates the level of crime in the area. The color of the heatmap indicates the crime severity and recency.
Metrics Year-on-Year
- Average area value
- 306,316.00 £Increased by 32.78 %
- Est sale value
- 890,050.00 £Increased by 28.21 %
- Average area rental value
- 1,226.00 £/moDecreased by 2.93 %
- Est letting value
- 2,543.00 £/moUnchanged by 0.00 %
- Est rental Yield
- 4.80 %Decreased by 26.94 %
- Crime Rate
- 24.00 %Unchanged by 0.00 %
Agent Activity
John Goodwin FRICS created the listing.
Nearby Schools
| Name | Type | Ofsted | Distance |
|---|---|---|---|
| Riverboats Children'S Centre | Children's Centre | 1.14 KM | |
| Upton-Upon-Severn Cofe Primary And Pre School | Voluntary Controlled School | Good | 1.28 KM |
| Hanley Castle High School | Academy Converter | Good | 3.40 KM |
| Bredon School | Other Independent School | 4.94 KM | |
| Twyning School | Community School | Good | 7.77 KM |
Images
Nearby Streets
| Name | Average Price | Average Sqft | Distance |
|---|---|---|---|
| A4104 | £ 0 | 0 | 0.00 KM |
| Copperfields | £ 0 | 0 | 0.00 KM |
| Orchard Close | £ 0 | 0 | 0.00 KM |
| Lilac Close | £ 0 | 0 | 0.00 KM |
| Laburnum Walk | £ 0 | 0 | 0.00 KM |
Nearby Listings
| Address | Price | Type | Score | Distance |
|---|---|---|---|---|
| Rag House, Holly Green , Upton upon Severn, Worcestershire, WR8 0PD | £ 750,000 | BUY | 7 / 10 | 0.00 KM |
| HOLLY GREEN, NR UPTON UPON SEVERN | £ 650,000 | BUY | Unknown | 0.00 KM |
| Upton-Upon-Severn, Worcester | £ 499,950 | BUY | 7 / 10 | 0.00 KM |
| A Residential Development Opportunity, The Paddocks, Holly Green, Upton upon Severn, Worcestershire, WR8 0BN | £ 700,000 | BUY | Unknown | 0.08 KM |
| The Beeches, Upton Upon Severn, Worcestershire, WR8 0QF | £ 450,000 | BUY | 8 / 10 | 0.11 KM |
Nearby Properties
| Address | Price | Distance |
|---|---|---|
| 62 The Beeches | £ 270,000 | 0.10 KM |
| 18 The Beeches | £ 255,000 | 0.10 KM |
| 28 The Beeches | £ 225,000 | 0.10 KM |
| 44 The Beeches | £ 265,000 | 0.10 KM |
| 60 The Beeches | £ 235,000 | 0.10 KM |