Hurford Salvi Carr says ..
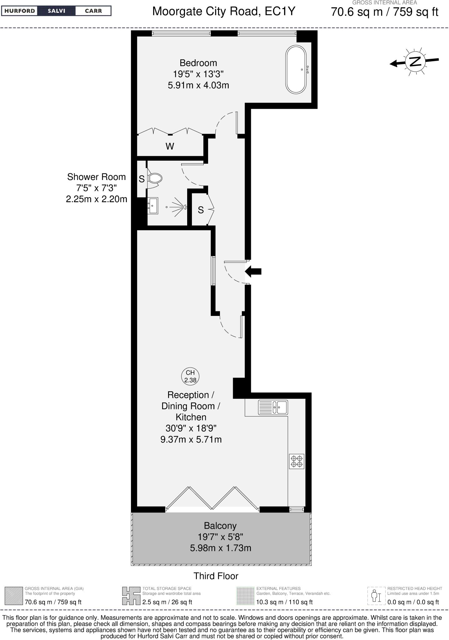
A bright and spacious one-bedroom apartment with stunning views over the historic Honourable Artillery Company Grounds, originally commissioned by Henry VIII in the 1500s. Situated on the third floor, this beautifully presented home features a welcoming entrance hall with a utility cup...
Property Oracle says ..
Therefore, we give this property 6 / 10. *Disclaimer: This is our option and does constitute a recommendation or financial advice. Do your own research. *
- Price
- 9
- Condition
- 7
- Location
- 8
- Land
- 3
- Bedrooms
- 1
- Bathrooms
- 0
- Sqft (est)
- 996.95
The heatmap indicates the level of crime in the area. The color of the heatmap indicates the crime severity and recency.
Metrics Year-on-Year
- Average area value
- 822,600.00 £Decreased by 14.86 %
- Est sale value
- 959,065.90 £Decreased by 24.73 %
- Average area rental value
- 3,099.00 £/moIncreased by 2.99 %
- Est letting value
- 2,990.85 £/moUnchanged by 0.00 %
- Est rental Yield
- 4.52 %Increased by 20.86 %
- Crime Rate
- 5.00 %Unchanged by 0.00 %
from 966,215.00 £
from 1,274,102.10 £
from 3,009.00 £/mo
from 2,990.85 £/mo
from 3.74 %
from 5.00 %
Agent Activity
Hurford Salvi Carr created the listing.
Nearby Schools
| Name | Type | Ofsted | Distance |
|---|---|---|---|
| The Lyceum | Other Independent School | 0.36 KM | |
| Central Foundation Boys' School | Voluntary Aided School | Outstanding | 0.39 KM |
| Guildhall School Of Music And Drama | Higher Education Institutions | 0.62 KM | |
| Golden Lane Children'S Centre | Children's Centre | 0.63 KM | |
| Prior Weston Primary School And Children'S Centre | Community School | Requires improvement | 0.66 KM |
Images
Nearby Streets
| Name | Average Price | Average Sqft | Distance |
|---|---|---|---|
| Oliver's Yard | £ 0 | 0 | 0.00 KM |
| Dominion Street | £ 0 | 0 | 0.00 KM |
| Milton Court | £ 0 | 0 | 0.00 KM |
| Old Street Roundabout | £ 0 | 0 | 0.00 KM |
| Whitecross Place | £ 0 | 0 | 0.00 KM |
Nearby Transport
| Name | NLC | TLC | Distance |
|---|---|---|---|
| Old Street | 6003 | OLD | 0.43 KM |
| Moorgate | 6005 | MOG | 0.43 KM |
| Liverpool Street | 6965 | LST | 0.81 KM |
| Cannon Street | 5142 | CST | 1.23 KM |
| Shoreditch High Street | 1024 | SDC | 1.35 KM |
Nearby Listings
| Address | Price | Type | Score | Distance |
|---|---|---|---|---|
| City Road, EC1Y | £ 650,000 | BUY | 6 / 10 | 0.00 KM |
| City Road, London, EC1Y | £ 650,000 | BUY | 6 / 10 | 0.01 KM |
| Apartment 1, 16 City Road, London EC1Y 2AA | £ 340,000 | BUY | Unknown | 0.02 KM |
| , London, EC1Y 2AJ | £ 850,000 | BUY | 6 / 10 | 0.09 KM |
| Finsbury Square, EC2A | £ 995,000 | BUY | 4 / 10 | 0.10 KM |
Nearby Properties
| Address | Price | Distance |
|---|---|---|
| 8 Mallow Street | £ 270,000 | 0.35 KM |
| 8c Mallow Street | £ 249,999 | 0.35 KM |
| 11 | £ 80,000 | 0.35 KM |
| 8a Mallow Street | £ 565,000 | 0.35 KM |
| 2 Dufferin Avenue | £ 140,000 | 0.46 KM |