Belhaven Terrace West, Dowanhill, Glasgow
RE

Belhaven Terrace West, Dowanhill, Glasgow

By Rettie & Co

£ 765,000

Reviews

3 out of 5 stars

Rettie & Co says ..

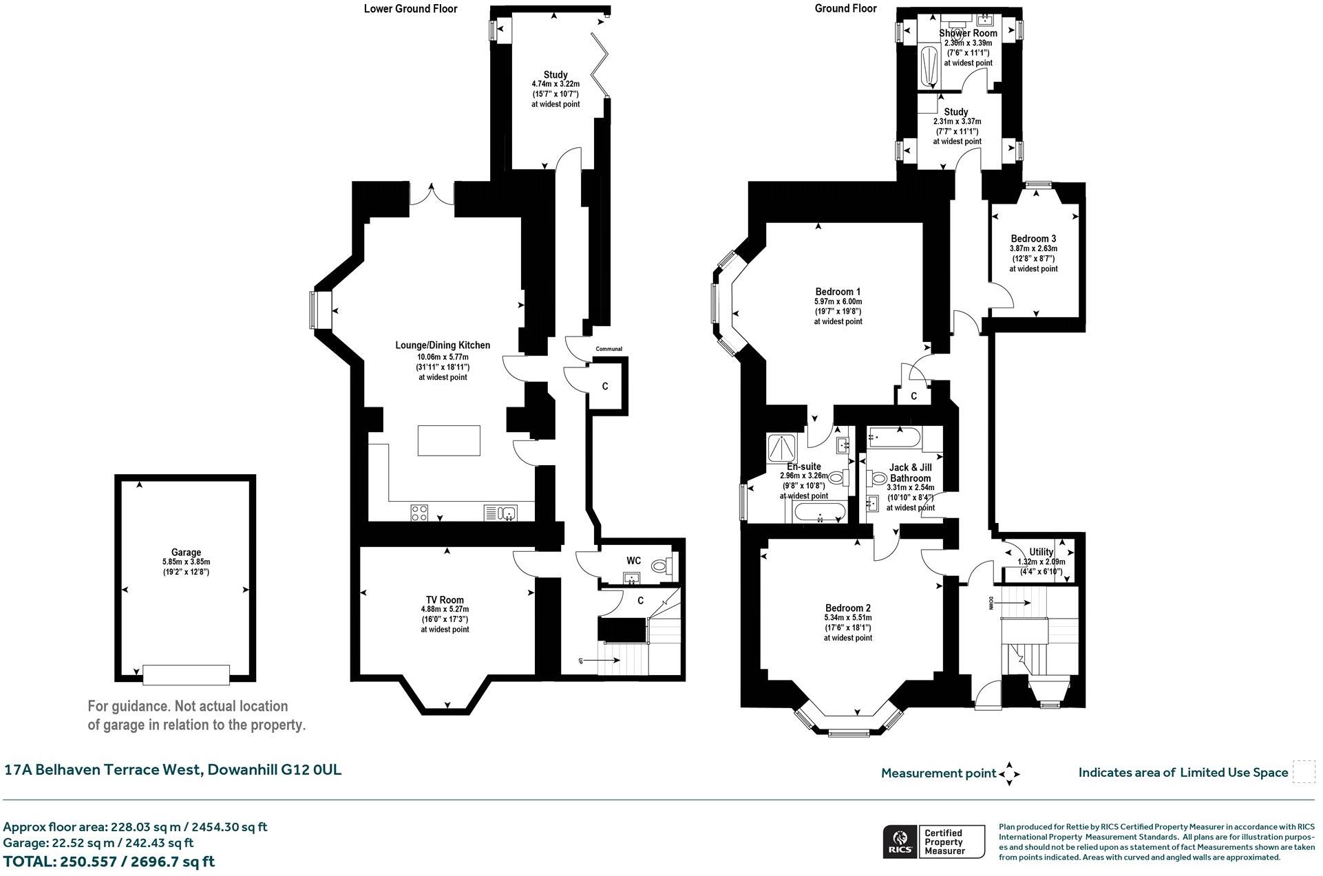
Occupying a prime position on one of the West End’s most desirable grand terraces at the edge of Dowanhill, this exceptional four-bedroom duplex with private main door access offers an enviable blend of refined interior design, desirable outdoor space, and secure private garage &mdash...

Property Oracle says ..

Therefore, we give this property 7 / 10. *Disclaimer: This is our option and does constitute a recommendation or financial advice. Do your own research. *

Price
7
Condition
9
Location
8
Land
6
Bedrooms
3
Bathrooms
4
Sqft (est)
2,696.97

The heatmap indicates the level of crime in the area. The color of the heatmap indicates the crime severity and recency.

Metrics Year-on-Year

Average area value
273,565.00 £
Increased by 3.79 %
from 263,578.00 £
Est sale value
760,545.54 £
Increased by 9.73 %
from 693,121.29 £
Average area rental value
1,350.00 £/mo
Decreased by 11.01 %
from 1,517.00 £/mo
Est letting value
2,696.97 £/mo
Unchanged by 0.00 %
from 2,696.97 £/mo
Est rental Yield
5.92 %
Decreased by 14.33 %
from 6.91 %
Crime Rate
0.00 %
from 0.00 %

Agent Activity

  • Rettie & Co created the listing.

Images

Picture No. 02 Picture No. 03 Picture No. 04 Picture No. 05 Picture No. 06 Picture No. 07 Picture No. 08 Picture No. 09 Picture No. 10 Picture No. 11 Picture No. 12 Picture No. 13 Picture No. 14 Picture No. 15 Picture No. 16 Picture No. 17 Picture No. 18 Picture No. 19 Picture No. 20 Picture No. 21 Picture No. 22 Picture No. 23 Picture No. 24 Picture No. 25 Picture No. 26 Picture No. 27 Picture No. 28 Picture No. 29 Picture No. 30 Picture No. 31 Picture No. 32 Picture No. 33 Picture No. 34 Picture No. 35 Picture No. 36 Picture No. 37 Picture No. 38 Picture No. 39 Picture No. 40 Picture No. 41 Picture No. 45 Picture No. 46 Picture No. 47 Picture No. 48 Picture No. 49 Picture No. 42 Picture No. 43 Picture No. 44 Picture No. 50

Nearby Streets

NameAverage PriceAverage SqftDistance
Redlands Terrace Lane £ 000.00 KM
Horselethill Road £ 380,00000.00 KM
Belhaven Terrace West Lane £ 450,00000.00 KM
Kirklee Gardens £ 395,00000.00 KM
Kirklee Quadrant Lane £ 000.00 KM

Nearby Transport

NameNLCTLCDistance
Partick9917PTK1.61 KM
Hyndland9845HYN1.75 KM
Kelvindale1655KVD1.87 KM
Maryhill9957MYH1.91 KM
Summerston9959SUM2.19 KM

Nearby Listings

AddressPriceTypeScoreDistance
Belhaven Terrace West, Dowanhill, Glasgow £ 765,000BUY7 / 100.00 KM
Belhaven Terrace West, Dowanhill, Glasgow £ 950,000BUY8 / 100.00 KM
0/2 23 Belhaven Terrace West, Dowanhill, G12 0UL £ 495,000BUYUnknown0.01 KM
Belhaven Terrace West,, Glasgow, G12 £ 495,000BUY6 / 100.02 KM
Redlands Lane, Dowanhill, Glasgow £ 629,000BUY7 / 100.11 KM