Eli-G Estates says ..
Good size four bedroom semi on Woodlands with plenty of potential STPP offered chain free & in good decorative order.
Property Oracle says ..
This four-bedroom semi-detached house in Woodlands, Golders Green (NW11 9QY) is presented as a family home with potential. The property benefits from a good location, relatively close to Golders Green and with transport links (although precise distances to amenities aren’t specified and need further investigation). The interior photos show a property in good decorative order, although it appears somewhat dated and may benefit from modernisation to enhance its appeal to potential buyers. The presence of a garden adds value. The property’s condition, while reasonable, is not exceptional; it is presented in a clean and ready-to-move-in state. However, buyers may prefer to undertake renovations to match their individual tastes. A key aspect is the lack of information regarding the square footage of the property and surrounding properties; this makes a precise evaluation of the price per square foot, and therefore the overall value, more challenging. Further information about the plot size would be beneficial. Overall, the property represents a reasonable purchase in a desirable area, but potential buyers should consider the need for potential renovation and conduct a thorough survey to fully assess its condition and value.
Therefore, we give this property 6 / 10. *Disclaimer: This is our option and does constitute a recommendation or financial advice. Do your own research. *
- Price
- 7
- Condition
- 6
- Location
- 7
- Land
- 4
- Bedrooms
- 4
- Bathrooms
- 1
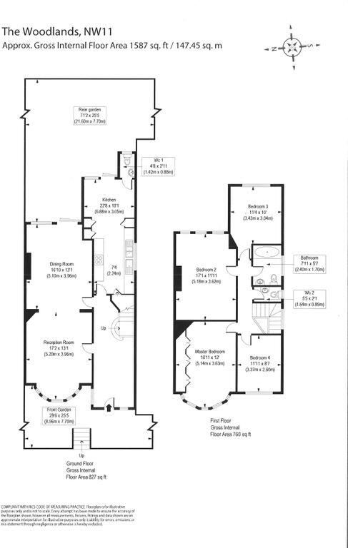
- Sqft (est)
- 1,587.14
The heatmap indicates the level of crime in the area. The color of the heatmap indicates the crime severity and recency.
Metrics Year-on-Year
- Average area value
- 864,995.00 £Decreased by 3.17 %
- Est sale value
- 514,233.36 £Decreased by 41.73 %
- Average area rental value
- 2,390.00 £/moIncreased by 6.32 %
- Est letting value
- 0.00 £/moDecreased by 100.00 %
- Est rental Yield
- 3.32 %Increased by 9.93 %
- Crime Rate
- 1.00 %Unchanged by 0.00 %
Agent Activity
Eli-G Estates created the listing.
Nearby Schools
| Name | Type | Ofsted | Distance |
|---|---|---|---|
| Wentworth College | Other Independent School | Inadequate | 0.39 KM |
| Talmud Torah Tiferes Shlomo | Other Independent School | Good | 0.41 KM |
| Independent Jewish Day School | Academy Converter | 0.66 KM | |
| Ateres Beis Yaakov Primary School | Other Independent School | 0.66 KM | |
| Hasmonean Primary School | Voluntary Aided School | Good | 0.68 KM |
Images
Nearby Streets
| Name | Average Price | Average Sqft | Distance |
|---|---|---|---|
| Golders Manor Drive | £ 0 | 0 | 0.00 KM |
| Bethel Close | £ 0 | 0 | 0.00 KM |
| Hillcrest Gardens | £ 0 | 0 | 0.00 KM |
| Brent Green | £ 0 | 0 | 0.00 KM |
| Oakfield Court | £ 0 | 0 | 0.00 KM |
Nearby Transport
| Name | NLC | TLC | Distance |
|---|---|---|---|
| Cricklewood | 1519 | CRI | 2.67 KM |
| Hendon | 1522 | HEN | 3.21 KM |
| Brondesbury | 1437 | BSY | 4.21 KM |
| West Hampstead Thameslink | 1525 | WHP | 4.25 KM |
| West Hampstead | 1421 | WHD | 4.38 KM |
Nearby Listings
| Address | Price | Type | Score | Distance |
|---|---|---|---|---|
| Woodlands, NW11 | £ 1,350,000 | BUY | 6 / 10 | 0.00 KM |
| Woodlands, Golders Green, NW11 | £ 625,000 | BUY | Unknown | 0.14 KM |
| Canterbury Court, Woodlands, NW11 | £ 550,000 | BUY | 6 / 10 | 0.14 KM |
| Woodlands, London | £ 550,000 | BUY | 5 / 10 | 0.14 KM |
| James Close, Woodlands, London, NW11 | £ 350,000 | BUY | 6 / 10 | 0.14 KM |
Nearby Properties
| Address | Price | Distance |
|---|---|---|
| 16 Woodlands | £ 1,037,500 | 0.00 KM |
| 2 Woodlands | £ 830,000 | 0.01 KM |
| 32 Woodlands | £ 1,011,000 | 0.01 KM |
| 62 Woodlands | £ 1,255,000 | 0.08 KM |
| 38 Woodlands | £ 307,500 | 0.08 KM |