Martin S Lonsdale says ..
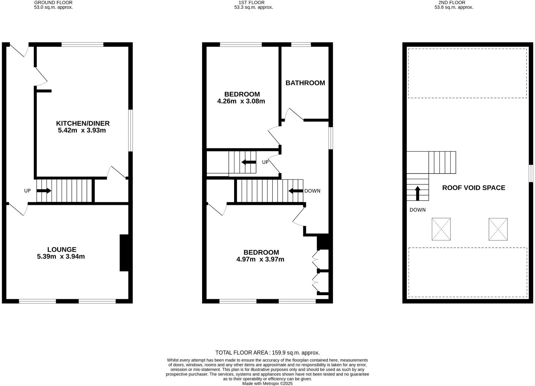
2 DOUBLE BEDROOM BARN STYLE CONVERSION END COTTAGE * SPACIOUS ACCOMMODATION THROUGHOUT * HARDWOOD DOUBLE GLAZED WINDOWS * ALARMED * GCH WITH A CONDENSING COMBI-BOILER * LOUNGE * KITCHEN DINING ROOM * FIRST FLOOR 2 DOUBLE BEDROOMS * BATHROOM * LARGE ROOF VOID SPACE POTENTIAL TO CREATE A FURTHER BE...
Property Oracle says ..
This barn conversion is located in Idle, Bradford, West Yorkshire. The property is a stone-built building and appears to be in good condition, though the images do not provide enough detail to assess the property fully. The property has two bedrooms and one bathroom. The property benefits from being close to several primary schools with good Ofsted ratings, and is also within reasonable distance of several train stations. The list price of £249,950 is slightly below the average price for the area (£257,271), although it is difficult to assess the value without knowing the square footage of the property. More information is needed to provide a comprehensive analysis of the property. The surrounding area has properties listed at a similar price range, though the available data does not allow for a precise comparison.
Therefore, we give this property 6 / 10. *Disclaimer: This is our option and does constitute a recommendation or financial advice. Do your own research. *
- Price
- 7
- Condition
- 7
- Location
- 8
- Land
- 4
- Bedrooms
- 2
- Bathrooms
- 1
The heatmap indicates the level of crime in the area. The color of the heatmap indicates the crime severity and recency.
Metrics Year-on-Year
- Average area value
- 236,407.00 £Decreased by 2.23 %
- Average area rental value
- 978.00 £/moDecreased by 5.69 %
- Est rental Yield
- 4.96 %Decreased by 3.69 %
- Crime Rate
- 6.00 %Unchanged by 0.00 %
Agent Activity
Martin S Lonsdale created the listing.
Nearby Schools
| Name | Type | Ofsted | Distance |
|---|---|---|---|
| Idle Cofe Primary School | Voluntary Aided School | Outstanding | 0.27 KM |
| Thackley Primary School | Community School | Good | 0.38 KM |
| Thorpe Primary | Academy Converter | 0.63 KM | |
| Immanuel College | Academy Converter | Good | 0.70 KM |
| Blakehill Primary School | Community School | Good | 1.27 KM |
Images
Nearby Streets
| Name | Average Price | Average Sqft | Distance |
|---|---|---|---|
| Walter Street | £ 0 | 0 | 0.00 KM |
| Jasper Street | £ 0 | 0 | 0.00 KM |
| Bourne Street | £ 299,950 | 0 | 0.00 KM |
| Beech Close | £ 0 | 0 | 0.00 KM |
| Willow Mews | £ 0 | 0 | 0.00 KM |
Nearby Transport
| Name | NLC | TLC | Distance |
|---|---|---|---|
| Baildon | 8552 | BLD | 2.64 KM |
| Apperley Bridge | 8562 | APY | 2.98 KM |
| Frizinghall | 8556 | FZH | 4.51 KM |
| Shipley (Yorks) | 8347 | SHY | 4.56 KM |
| Guiseley | 8567 | GSY | 4.56 KM |
Nearby Listings
| Address | Price | Type | Score | Distance |
|---|---|---|---|---|
| Sherborne Road, Idle, | £ 249,950 | BUY | 6 / 10 | 0.00 KM |
| Sherborne Road, Idle, Bradford, BD10 | £ 220,000 | BUY | 7 / 10 | 0.01 KM |
| Sherborne Road, Bradford | £ 140,000 | BUY | 6 / 10 | 0.01 KM |
| Sherborne Road, Bradford | £ 140,000 | BUY | 6 / 10 | 0.03 KM |
| Town Lane, Idle, | £ 239,950 | BUY | Unknown | 0.07 KM |
Nearby Properties
| Address | Price | Distance |
|---|---|---|
| 23 Sherborne Road | £ 150,000 | 0.02 KM |
| 17 Sherborne Road | £ 177,000 | 0.02 KM |
| 21 Sherborne Road | £ 185,000 | 0.02 KM |
| 15 Sherborne Road | £ 75,000 | 0.02 KM |
| 9 Sherborne Road | £ 108,000 | 0.02 KM |