Bramley Road, London, W10
By Jefferies James London
£ 1,250,000
Reviews
2 out of 5 stars
Jefferies James London says ..
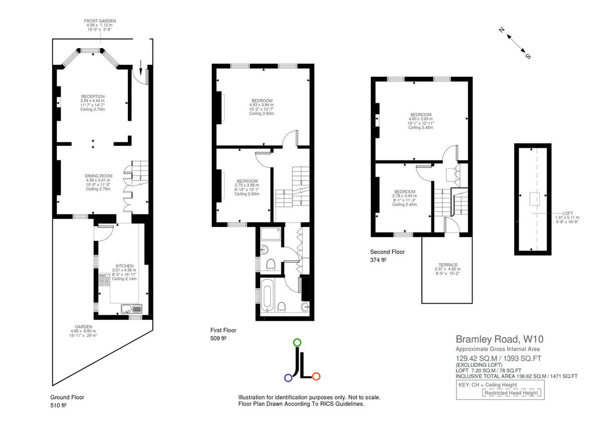
An impressive Victorian four bedroom house full of character and charm
Property Oracle says ..
This is a terraced property located on Bramley Road, London. It features 4 bedrooms and 2 bathrooms. The property is listed with Jefferies James London. While the location is desirable, the property requires renovation, particularly in the kitchen and bathrooms. The outdoor space is limited. The price is £1,250,000, which seems reasonable for the area, but the renovation costs should be considered.
Therefore, we give this property 4 / 10. *Disclaimer: This is our option and does constitute a recommendation or financial advice. Do your own research. *
- Price
- 5
- Condition
- 4
- Location
- 7
- Land
- 3
- Bedrooms
- 4
- Bathrooms
- 2
The heatmap indicates the level of crime in the area. The color of the heatmap indicates the crime severity and recency.
Metrics Year-on-Year
- Average area value
- 404,917.00 £Increased by 11.82 %
- Average area rental value
- 1,930.00 £/moIncreased by 5.12 %
- Est rental Yield
- 5.72 %Decreased by 5.92 %
- Crime Rate
- 4.00 %Unchanged by 0.00 %
Agent Activity
Jefferies James London created the listing.
Nearby Schools
| Name | Type | Ofsted | Distance |
|---|---|---|---|
| Manor Park Primary Academy | Academy Converter | 0.79 KM | |
| Manor Park Children'S Centre (Sutton Central East) | Children's Centre | 0.79 KM | |
| Sutton Grammar School | Academy Converter | 0.99 KM | |
| Orchard Hill College Of Further Education | Special Post 16 Institution | Outstanding | 1.08 KM |
| St Philomena'S Catholic High School For Girls | Voluntary Aided School | Outstanding | 1.26 KM |
Images
Nearby Streets
| Name | Average Price | Average Sqft | Distance |
|---|---|---|---|
| Waterloo Road | £ 590,000 | 0 | 0.00 KM |
| Bishop's Place | £ 0 | 0 | 0.00 KM |
| Upland Road | £ 0 | 0 | 0.00 KM |
| Florian Avenue | £ 0 | 0 | 0.00 KM |
| Temple Way | £ 0 | 0 | 0.00 KM |
Nearby Transport
| Name | NLC | TLC | Distance |
|---|---|---|---|
| Sutton | 5385 | SUO | 1.18 KM |
| Carshalton Beeches | 5406 | CSB | 1.40 KM |
| Carshalton | 5405 | CSH | 1.74 KM |
| Sutton Common | 5436 | SUC | 2.14 KM |
| West Sutton | 5293 | WSU | 2.68 KM |
Nearby Listings
| Address | Price | Type | Score | Distance |
|---|---|---|---|---|
| Bramley Road, London, W10 | £ 1,250,000 | BUY | 4 / 10 | 0.00 KM |
| Bramley Road, Sutton | £ 800,000 | BUY | 7 / 10 | 0.00 KM |
| Carshalton Road, Sutton, SM1 | £ 375,000 | BUY | 7 / 10 | 0.05 KM |
| Sutton Grove, Sutton, Surrey | £ 180,000 | BUY | 6 / 10 | 0.05 KM |
| Sutton Grove, Sutton, Surrey | £ 119,500 | BUY | 5 / 10 | 0.05 KM |
Nearby Properties
| Address | Price | Distance |
|---|---|---|
| 9 Sutton Grove | £ 152,000 | 0.06 KM |
| 13 Sutton Grove | £ 617,500 | 0.06 KM |
| 13a Sutton Grove | £ 638,000 | 0.06 KM |
| 14 Bramley Road | £ 299,950 | 0.08 KM |
| 9 Bramley Road | £ 350,000 | 0.08 KM |