St. Florence, Tenby, Pembrokeshire, SA70
By FBM
£ 389,950
Reviews
4 out of 5 stars
FBM says ..
Fern Cottage is a unique opportunity to purchase an alluring cottage oozing with charm and character sitting at the very heart of this award-winning village. From the exposed stone walls and beams to the former bread oven in the living room, and the bespoke built spiral staircase, each room is u...
Property Oracle says ..
This property is a charming 3-bedroom semi-detached house located in St. Florence, Tenby, Pembrokeshire. The house is a traditional property with stone walls and exposed beams, which gives it character and charm. It has been updated and maintained to a high standard, with a modern kitchen and bathrooms. The property benefits from a good-sized garden and off-street parking. The location is excellent, being within walking distance of local amenities and schools, and close to the coast. The asking price is in line with other similar properties in the area, and represents good value for money.
Therefore, we give this property 8 / 10. *Disclaimer: This is our option and does constitute a recommendation or financial advice. Do your own research. *
- Price
- 8
- Condition
- 9
- Location
- 9
- Land
- 7
- Bedrooms
- 3
- Bathrooms
- 2
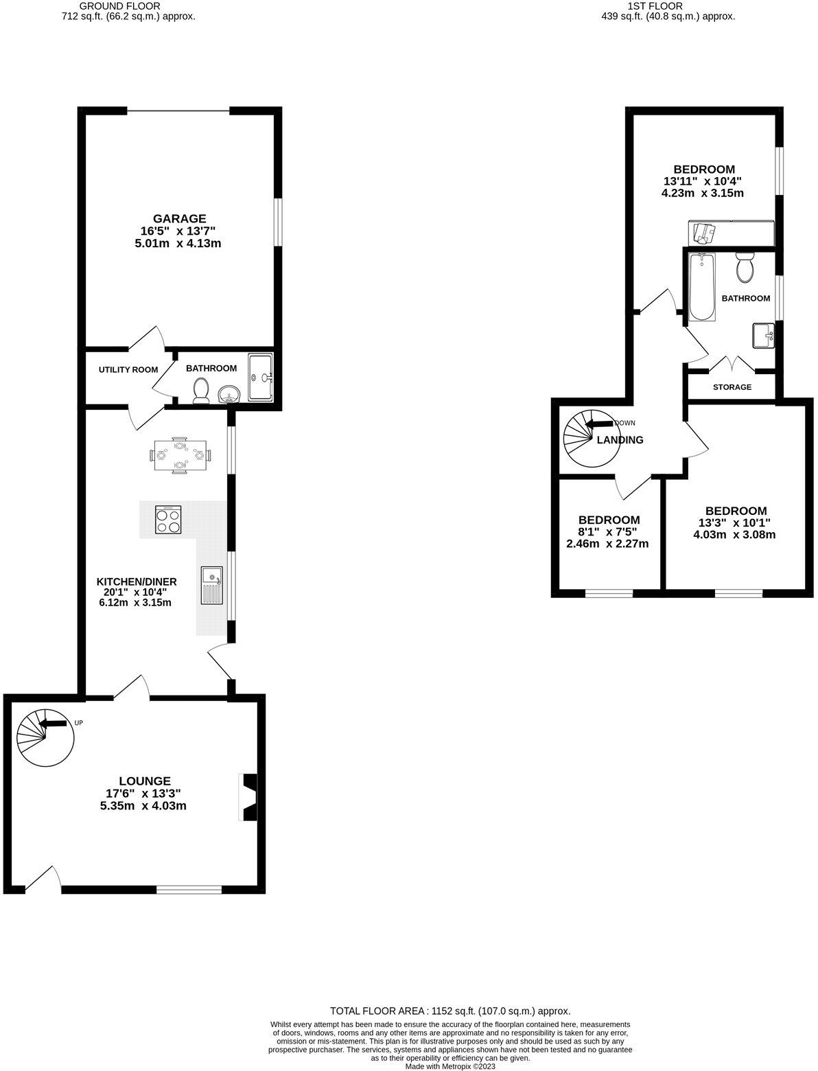
- Sqft (est)
- 1,152.00
The heatmap indicates the level of crime in the area. The color of the heatmap indicates the crime severity and recency.
Metrics Year-on-Year
- Average area value
- 278,905.00 £Increased by 2.67 %
- Est sale value
- 316,800.00 £Increased by 50.27 %
- Average area rental value
- 800.00 £/moDecreased by 34.53 %
- Est letting value
- 0.00 £/mo
- Est rental Yield
- 3.44 %Decreased by 36.30 %
- Crime Rate
- 202.00 %Unchanged by 0.00 %
Agent Activity
FBM created the listing.
Nearby Schools
| Name | Type | Ofsted | Distance |
|---|---|---|---|
| St Florence V.C. School | Welsh Establishment | 0.30 KM | |
| Manorbier V.C.P. School | Welsh Establishment | 3.10 KM | |
| Sageston C.P. School | Welsh Establishment | 5.15 KM | |
| St Oswalds Ciw Voluntary Aided School | Welsh Establishment | 6.03 KM | |
| The Greenhill School | Welsh Establishment | 6.77 KM |
Images
Nearby Streets
| Name | Average Price | Average Sqft | Distance |
|---|---|---|---|
| Ridgeway View | £ 0 | 0 | 0.00 KM |
| The Ridgeway View | £ 428,000 | 0 | 0.00 KM |
| Green Hayes Avenue | £ 422,490 | 0 | 0.00 KM |
| St | £ 0 | 0 | 0.00 KM |
| Saint Florence Cottages | £ 575,000 | 0 | 0.00 KM |
Nearby Transport
| Name | NLC | TLC | Distance |
|---|---|---|---|
| Manorbier | 4094 | MRB | 2.58 KM |
| Penally | 4129 | PNA | 6.09 KM |
| Tenby | 4110 | TEN | 7.50 KM |
| Saundersfoot | 4108 | SDF | 8.21 KM |
| Kilgetty | 4083 | KGT | 9.07 KM |
Nearby Listings
| Address | Price | Type | Score | Distance |
|---|---|---|---|---|
| St. Florence, Tenby, Pembrokeshire, SA70 | £ 389,950 | BUY | 8 / 10 | 0.00 KM |
| St. Florence, Tenby, SA70 | £ 369,950 | BUY | 7 / 10 | 0.00 KM |
| St. Florence, Tenby | £ 225,000 | BUY | 6 / 10 | 0.05 KM |
| Fern Cottage, St Florence | £ 389,950 | BUY | 6 / 10 | 0.06 KM |
| Hanna's Cottage, St. Florence | £ 225,000 | BUY | 6 / 10 | 0.06 KM |
Nearby Properties
| Address | Price | Distance |
|---|---|---|
| 7 Ridgeway View | £ 125,000 | 0.07 KM |
| Primrose Cottage | £ 312,500 | 0.18 KM |
| West Hall | £ 280,000 | 0.18 KM |
| Clover Cottage | £ 210,000 | 0.18 KM |
| Daisy Cottage | £ 333,000 | 0.18 KM |