Naylor Powell says ..
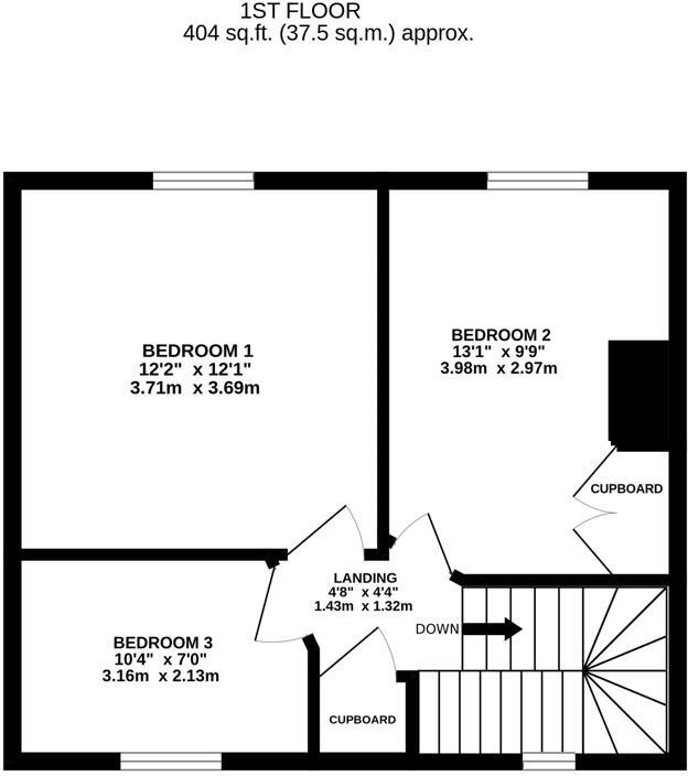
Situated in the popular Parish of Uplands, this semi-detached house is located on The Circle and offers well-proportioned accommodation. The property comprises of a living room with open fire, kitchen and utility room. There are three bedrooms, providing ample space for families. The bathroom is ...
Property Oracle says ..
Therefore, we give this property 6 / 10. *Disclaimer: This is our option and does constitute a recommendation or financial advice. Do your own research. *
- Price
- 6
- Condition
- 5
- Location
- 8
- Land
- 6
- Bedrooms
- 3
- Bathrooms
- 1
- Sqft (est)
- 808.00
The heatmap indicates the level of crime in the area. The color of the heatmap indicates the crime severity and recency.
Metrics Year-on-Year
- Average area value
- 251,538.00 £Increased by 21.55 %
- Est sale value
- 167,256.00 £Decreased by 4.17 %
- Average area rental value
- 754.00 £/moDecreased by 18.22 %
- Est letting value
- 0.00 £/mo
- Est rental Yield
- 3.60 %Decreased by 32.71 %
- Crime Rate
- 8.00 %Unchanged by 0.00 %
from 206,948.00 £
from 174,528.00 £
from 922.00 £/mo
from 0.00 £/mo
from 5.35 %
from 8.00 %
Agent Activity
Naylor Powell created the listing.
Nearby Schools
| Name | Type | Ofsted | Distance |
|---|---|---|---|
| Uplands Community Primary School | Community School | Outstanding | 0.31 KM |
| Severn Valley School | Pupil Referral Unit | Good | 0.46 KM |
| Stroud Valley Community Primary School | Community School | Good | 0.77 KM |
| St Martins Centre (St Roses School) | Special Post 16 Institution | Good | 0.86 KM |
| St Rose'S Special School | Non-maintained Special School | Good | 0.86 KM |
Images
Nearby Streets
| Name | Average Price | Average Sqft | Distance |
|---|---|---|---|
| Middle Street | £ 537,500 | 0 | 0.00 KM |
| The Square | £ 360,000 | 0 | 0.00 KM |
| Sycamore Drive | £ 425,000 | 0 | 0.00 KM |
| Painswick Old Road | £ 0 | 0 | 0.00 KM |
| Gainey's Well | £ 0 | 0 | 0.00 KM |
Nearby Transport
| Name | NLC | TLC | Distance |
|---|---|---|---|
| Stroud (Gloucs) | 4771 | STD | 0.88 KM |
| Stonehouse | 4770 | SHU | 7.29 KM |
Nearby Listings
| Address | Price | Type | Score | Distance |
|---|---|---|---|---|
| The Circle, Stroud | £ 310,000 | BUY | 6 / 10 | 0.00 KM |
| The Circle, Stroud, Gloucestershire, GL5 | £ 250,000 | BUY | 6 / 10 | 0.05 KM |
| Delmont Grove, Stroud, GL5 | £ 395,000 | BUY | Unknown | 0.07 KM |
| Delmont Grove, Stroud, Gloucestershire, GL5 | £ 440,000 | BUY | 6 / 10 | 0.10 KM |
| Folly Lane, Stroud, Gloucestershire, GL5 | £ 300,000 | BUY | 6 / 10 | 0.10 KM |
Nearby Properties
| Address | Price | Distance |
|---|---|---|
| 34 Grove Park Road | £ 219,995 | 0.07 KM |
| 24 The Circle | £ 116,000 | 0.08 KM |
| 12 The Circle | £ 247,000 | 0.08 KM |
| 13 The Circle | £ 235,000 | 0.08 KM |
| 18 The Circle | £ 150,000 | 0.08 KM |