Harewood Avenue, Marylebone, London
By Sandfords
£ 1,199,999
Reviews
3 out of 5 stars
Sandfords says ..
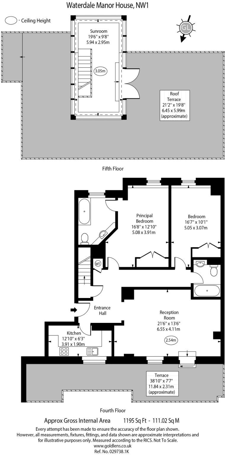
A superb two/three bedroom duplex penthouse apartment located within close proximity of Marylebone Railway/Underground Station, Marylebone High Street, and Regent's Park. This luxurious penthouse offers 1195 sq.ft. of flexible living space and benefits from an expansive wrap around roo...
Property Oracle says ..
This two-bedroom flat on Harewood Avenue, Marylebone, offers a good opportunity in a prime London location. The property features a roof terrace, a valuable asset in central London. While the flat is generally in reasonable condition, the bathrooms and kitchen would benefit from modernisation. The price per square foot is below the area average, but this likely reflects the need for some cosmetic updates. The location is a major selling point, with proximity to transportation, Regent’s Park, and local amenities. Overall, this property presents a solid investment with the potential to increase its value through renovations.
Therefore, we give this property 7 / 10. *Disclaimer: This is our option and does constitute a recommendation or financial advice. Do your own research. *
- Price
- 6
- Condition
- 7
- Location
- 9
- Land
- 6
- Bedrooms
- 2
- Bathrooms
- 2
- Sqft (est)
- 1,195.01
The heatmap indicates the level of crime in the area. The color of the heatmap indicates the crime severity and recency.
Metrics Year-on-Year
- Average area value
- 2,357,000.00 £Increased by 84.11 %
- Est sale value
- 2,417,505.23 £Increased by 44.50 %
- Average area rental value
- 2,420.00 £/moIncreased by 1.34 %
- Est letting value
- 2,390.02 £/moUnchanged by 0.00 %
- Est rental Yield
- 1.23 %Decreased by 45.09 %
- Crime Rate
- 5.00 %Unchanged by 0.00 %
Agent Activity
Sandfords created the listing.
Nearby Schools
| Name | Type | Ofsted | Distance |
|---|---|---|---|
| St Edward'S Catholic Primary School | Voluntary Aided School | Requires improvement | 0.17 KM |
| Abingdon House School | Other Independent Special School | 0.29 KM | |
| Christ Church Bentinck Cofe Primary School | Voluntary Aided School | Outstanding | 0.34 KM |
| St Mary'S Bryanston Square Cofe School | Voluntary Aided School | Good | 0.37 KM |
| Portman Early Childhood Centre | Local Authority Nursery School | Outstanding | 0.40 KM |
Images
Nearby Streets
| Name | Average Price | Average Sqft | Distance |
|---|---|---|---|
| Bell Street | £ 592,500 | 0 | 0.00 KM |
| Cosway Street | £ 0 | 0 | 0.00 KM |
| Bell Street | £ 465,000 | 0 | 0.00 KM |
| Harrow Street | £ 0 | 0 | 0.00 KM |
| Whitehaven Street | £ 425,000 | 0 | 0.00 KM |
Nearby Transport
| Name | NLC | TLC | Distance |
|---|---|---|---|
| Marylebone | 1475 | MYB | 0.18 KM |
| Paddington | 3087 | PAD | 1.57 KM |
| South Hampstead | 1451 | SOH | 2.57 KM |
| Kentish Town West | 1449 | KTW | 3.21 KM |
| Euston | 1444 | EUS | 3.38 KM |
Nearby Listings
| Address | Price | Type | Score | Distance |
|---|---|---|---|---|
| Harewood Avenue, Marylebone, London | £ 1,100,000 | BUY | 6 / 10 | 0.00 KM |
| Harewood Avenue, Marylebone, London | £ 1,199,999 | BUY | 7 / 10 | 0.00 KM |
| Waterdale Manor House, Marylebone | £ 1,550,000 | BUY | Unknown | 0.00 KM |
| Harewood Avenue, Marylebone, London | £ 625,000 | BUY | 5 / 10 | 0.06 KM |
| Harewood Avenue, Marylebone, London | £ 699,995 | BUY | 7 / 10 | 0.07 KM |
Nearby Properties
| Address | Price | Distance |
|---|---|---|
| 84 Boston Place | £ 860,000 | 0.16 KM |
| 102 Boston Place | £ 1,550,000 | 0.16 KM |
| 94 Boston Place | £ 550,000 | 0.16 KM |
| 88 Boston Place | £ 1,375,000 | 0.16 KM |
| 82 Boston Place | £ 752,250 | 0.16 KM |