WI
Hackworthy Lane, Nadderwater, Exeter
By Wilkinson Grant & Co
£ 1,675,000
Reviews
3 out of 5 stars
Wilkinson Grant & Co says ..
***ECO HOME*** STUNNING FAMILY HOME, indulge in circa 400sqft of pure LUXURY. An opportunity to secure an incredible, CONTEMPORARY RESIDENCE with breath-taking COUNTRYSIDE VIEWS. Multiple expansive indoor and outdoor family spaces.
Property Oracle says ..
Therefore, we give this property 7 / 10. *Disclaimer: This is our option and does constitute a recommendation or financial advice. Do your own research. *
- Price
- 6
- Condition
- 9
- Location
- 7
- Land
- 8
- Bedrooms
- 5
- Bathrooms
- 4
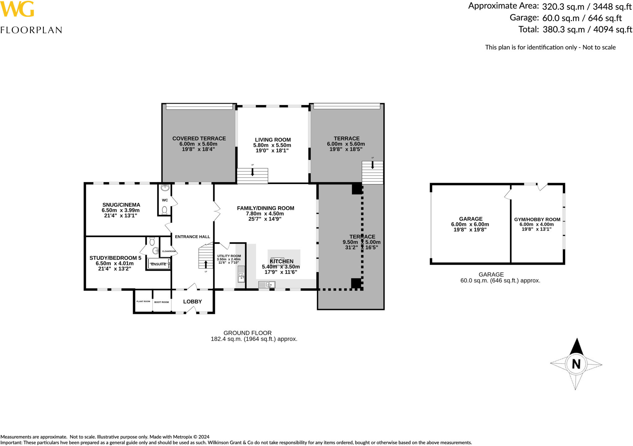
- Sqft (est)
- 3,455.22
The heatmap indicates the level of crime in the area. The color of the heatmap indicates the crime severity and recency.
Metrics Year-on-Year
- Average area value
- 287,463.00 £Decreased by 27.54 %
- Est sale value
- 1,164,409.14 £Increased by 8.71 %
- Average area rental value
- 1,250.00 £/moDecreased by 10.65 %
- Est letting value
- 3,455.22 £/moUnchanged by 0.00 %
- Est rental Yield
- 5.22 %Increased by 23.40 %
- Crime Rate
- 0.00 %
from 396,735.00 £
from 1,071,118.20 £
from 1,399.00 £/mo
from 3,455.22 £/mo
from 4.23 %
from 0.00 %
Agent Activity
Wilkinson Grant & Co created the listing.
Nearby Schools
| Name | Type | Ofsted | Distance |
|---|---|---|---|
| Newton St Cyres Primary School | Community School | Good | 3.85 KM |
| Exwick Heights Primary School | Academy Converter | 4.05 KM | |
| Barley Lane School | Foundation Special School | Good | 4.60 KM |
| Redhills Primary School | Academy Converter | Good | 5.11 KM |
| Avanti Hall School | Free Schools | 5.32 KM |
Images
Nearby Streets
| Name | Average Price | Average Sqft | Distance |
|---|---|---|---|
| Nadder Bottom | £ 0 | 0 | 0.00 KM |
| Crossways | £ 0 | 0 | 0.00 KM |
| Marylands | £ 0 | 0 | 0.00 KM |
Nearby Transport
| Name | NLC | TLC | Distance |
|---|---|---|---|
| Newton St Cyres | 5828 | NTC | 4.48 KM |
| Exeter St David'S | 3410 | EXD | 5.61 KM |
| Exeter St Thomas | 3414 | EXT | 6.47 KM |
| Exeter Central | 5755 | EXC | 6.76 KM |
| Crediton | 5754 | CDI | 7.72 KM |
Nearby Listings
| Address | Price | Type | Score | Distance |
|---|---|---|---|---|
| Hackworthy Lane, Nadderwater, Exeter | £ 1,675,000 | BUY | 7 / 10 | 0.00 KM |
| Hackworthy Lane, Nadderwater, Exeter | £ 1,675,000 | BUY | 7 / 10 | 0.00 KM |
| Hackworthy Lane, Nadderwater, Exeter | £ 1,675,000 | BUY | 8 / 10 | 0.05 KM |
| The Willows, Halsfordwood Lane, Exeter | £ 750,000 | BUY | 7 / 10 | 0.65 KM |
| Halsfordwood Lane, Nadderwater, Exeter, Devon | £ 1,250,000 | BUY | 7 / 10 | 0.70 KM |
Nearby Properties
| Address | Price | Distance |
|---|---|---|
| Russetts | £ 380,000 | 0.64 KM |
| The Willow | £ 411,000 | 0.64 KM |
| Nizhoni | £ 527,500 | 0.64 KM |
| Applehay | £ 570,000 | 0.64 KM |
| Connetts | £ 570,000 | 0.64 KM |