Bradleys says ..
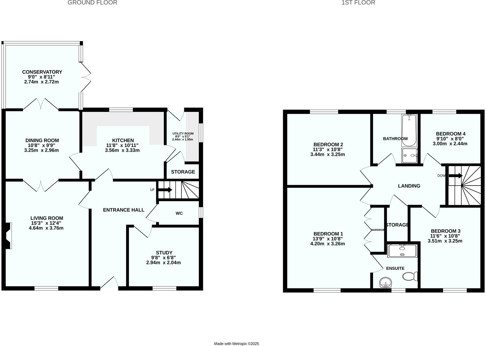
***DOUBLE GARAGE AND AMPLE DRIVEWAY*** Set on the edge of a highly desirable estate, this 4 bedroom detached property enjoys a convenient location within walking distance to an excellent range of open spaces, parks, local amenities and public transport links. Offering generous living sp...
Property Oracle says ..
This is a detached property in St Loyes, Exeter, offering four bedrooms and two bathrooms. The house includes a garden, a double garage, and a conservatory. While generally well-maintained, some interior aspects could benefit from modernization. The location provides convenient access to local schools and transportation links, including the Digby And Sowton train station. The asking price of £535,000 seems a bit high when compared to average prices in the area and price per square foot, but is in line with other properties on Dart Walk. Overall, it’s a solid family home with potential for updates to increase its value.
Therefore, we give this property 6 / 10. *Disclaimer: This is our option and does constitute a recommendation or financial advice. Do your own research. *
- Price
- 6
- Condition
- 7
- Location
- 7
- Land
- 6
- Bedrooms
- 4
- Bathrooms
- 2
- Sqft (est)
- 1,076.50
The heatmap indicates the level of crime in the area. The color of the heatmap indicates the crime severity and recency.
Metrics Year-on-Year
- Average area value
- 342,857.00 £Decreased by 0.55 %
- Est sale value
- 352,015.50 £Decreased by 4.94 %
- Average area rental value
- 1,495.00 £/moIncreased by 8.33 %
- Est letting value
- 1,076.50 £/moUnchanged by 0.00 %
- Est rental Yield
- 5.23 %Increased by 8.96 %
- Crime Rate
- 73.00 %Unchanged by 0.00 %
Agent Activity
Bradleys created the listing.
Nearby Schools
| Name | Type | Ofsted | Distance |
|---|---|---|---|
| Stansfield Academy | Academy Alternative Provision Sponsor Led | 0.39 KM | |
| Clyst Heath Nursery And Community Primary School | Community School | Good | 0.46 KM |
| St Peter'S Church Of England Aided School | Voluntary Aided School | Good | 0.91 KM |
| St Nicholas Catholic Primary School | Academy Sponsor Led | Good | 1.32 KM |
| Woodwater Academy | Academy Sponsor Led | Good | 1.50 KM |
Images
Nearby Streets
| Name | Average Price | Average Sqft | Distance |
|---|---|---|---|
| Hardy Road | £ 500,000 | 0 | 0.00 KM |
| Montgomery Road | £ 0 | 0 | 0.00 KM |
| Drake Avenue | £ 139,975 | 0 | 0.00 KM |
| Nelson Way | £ 0 | 0 | 0.00 KM |
| Luna Road | £ 0 | 0 | 0.00 KM |
Nearby Transport
| Name | NLC | TLC | Distance |
|---|---|---|---|
| Digby And Sowton | 5753 | DIG | 0.34 KM |
| Newcourt | 9589 | NCO | 1.30 KM |
| Pinhoe | 5757 | PIN | 2.46 KM |
| Polsloe Bridge | 3422 | POL | 3.37 KM |
| Topsham | 5758 | TOP | 3.57 KM |
Nearby Listings
| Address | Price | Type | Score | Distance |
|---|---|---|---|---|
| Dart Walk, Exeter, Devon | £ 535,000 | BUY | 6 / 10 | 0.00 KM |
| Dart Walk, Exeter, Devon | £ 180,000 | BUY | 6 / 10 | 0.00 KM |
| Dart Walk, Exeter, EX2 7QF | £ 165,000 | BUY | 6 / 10 | 0.00 KM |
| Dart Walk, Exeter | £ 475,000 | BUY | 6 / 10 | 0.00 KM |
| Dart Walk, Exeter, Devon | £ 290,000 | BUY | 6 / 10 | 0.03 KM |
Nearby Properties
| Address | Price | Distance |
|---|---|---|
| 16 Dart Walk | £ 232,000 | 0.00 KM |
| 27 Dart Walk | £ 165,000 | 0.00 KM |
| 26 Dart Walk | £ 175,000 | 0.00 KM |
| 23 Dart Walk | £ 175,000 | 0.00 KM |
| 5 Dart Walk | £ 430,000 | 0.00 KM |