Lochaline Street, Hammersmith, London, W6
By Lawson Rutter
£ 815,000
Reviews
3 out of 5 stars
Lawson Rutter says ..
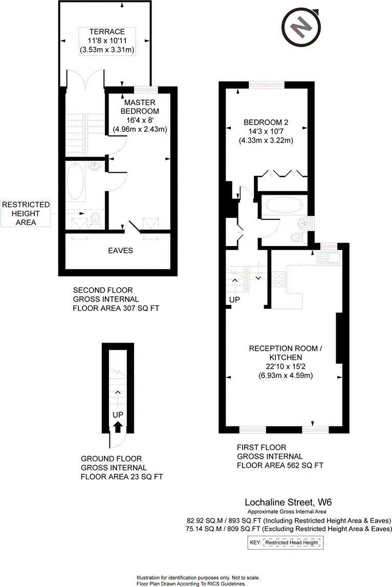
An outstanding two double bedroom, two bathroom split-level apartment with spacious west facing roof terrace located on a much sought after road within the Crabtree Conservation Area. The accommodation comprises a fabulous 22’10 x 15’2 open plan reception room with wooden floors and a...
Property Oracle says ..
This two-bedroom, two-bathroom apartment on Lochaline Street in Hammersmith, London, is presented as a well-maintained property with a modern interior. The property features an open-plan living area, a well-equipped kitchen, and a desirable rooftop terrace. The location within Hammersmith offers excellent access to transportation and amenities, while the proximity to the Crabtree Conservation Area suggests a peaceful residential setting. The listing does not specify the presence of a private garden. The price appears generally in line with the market for the area, although obtaining the actual price per square foot data from comparable properties would provide a more definitive judgment on the value for money being offered here. While the images showcase a well-presented property, additional information like the leasehold details (length, ground rent, service charges), the age of the building, and the presence of any structural or maintenance issues is required for a thorough appraisal. Further exploration into the exact distances to local amenities such as schools and transport links would also refine the assessment of the location, therefore this is a preliminary assessment based on the information available.
Therefore, we give this property 6 / 10. *Disclaimer: This is our option and does constitute a recommendation or financial advice. Do your own research. *
- Price
- 7
- Condition
- 8
- Location
- 7
- Land
- 2
- Bedrooms
- 2
- Bathrooms
- 2
- Sqft (est)
- 893.00
The heatmap indicates the level of crime in the area. The color of the heatmap indicates the crime severity and recency.
Metrics Year-on-Year
- Average area value
- 905,000.00 £Decreased by 9.28 %
- Est sale value
- 934,971.00 £Decreased by 1.78 %
- Average area rental value
- 3,185.00 £/moIncreased by 13.63 %
- Est letting value
- 2,679.00 £/moIncreased by 50.00 %
- Est rental Yield
- 4.22 %Increased by 25.22 %
- Crime Rate
- 9.00 %Unchanged by 0.00 %
Agent Activity
Lawson Rutter marked this listing as sold.
Lawson Rutter created the listing.
Nearby Schools
| Name | Type | Ofsted | Distance |
|---|---|---|---|
| Melcombe Primary School | Community School | Requires improvement | 0.23 KM |
| Melcombe Children'S Centre | Children's Centre | 0.23 KM | |
| Darwin School | Other Independent Special School | Good | 0.25 KM |
| Oakwood School | Other Independent Special School | Good | 0.25 KM |
| St Paul'S Cofe Primary School | Voluntary Aided School | Outstanding | 0.61 KM |
Images
Nearby Streets
| Name | Average Price | Average Sqft | Distance |
|---|---|---|---|
| Manbre Road | £ 0 | 0 | 0.00 KM |
| Distillery Road | £ 0 | 0 | 0.00 KM |
| Distillery Lane | £ 1,100,000 | 0 | 0.00 KM |
| Winslow Road | £ 0 | 0 | 0.00 KM |
| Parr's Way | £ 1,175,000 | 0 | 0.00 KM |
Nearby Transport
| Name | NLC | TLC | Distance |
|---|---|---|---|
| Kensington (Olympia) | 3092 | KPA | 1.87 KM |
| Shepherd'S Bush | 9587 | SPB | 2.14 KM |
| Putney | 5603 | PUT | 2.94 KM |
| Barnes | 5551 | BNS | 3.04 KM |
| West Brompton | 8875 | WBP | 3.05 KM |
Nearby Listings
| Address | Price | Type | Score | Distance |
|---|---|---|---|---|
| Lochaline Street, Hammersmith, W6 | £ 1,000,000 | BUY | 5 / 10 | 0.01 KM |
| Lochaline Street, London | £ 1,250,000 | BUY | 5 / 10 | 0.02 KM |
| Winslow Road, Hammersmith, London, W6 | £ 749,950 | BUY | Unknown | 0.04 KM |
| Parfrey Street, London, W6 | £ 625,000 | BUY | Unknown | 0.06 KM |
| Manbre Road, Hammersmith, W6 | £ 450,000 | BUY | 6 / 10 | 0.12 KM |
Nearby Properties
| Address | Price | Distance |
|---|---|---|
| 61 Lochaline Street | £ 235,000 | 0.02 KM |
| 35 Lochaline Street | £ 645,000 | 0.02 KM |
| 19 Lochaline Street | £ 1,050,000 | 0.02 KM |
| 15 Lochaline Street | £ 226,000 | 0.02 KM |
| 29 Lochaline Street | £ 1,050,000 | 0.02 KM |