24 Queens Road Queens Road, Weybridge, KT13 9UX
By McCarthy & Stone - South East
£ 399,000
Reviews
3 out of 5 stars
McCarthy & Stone - South East says ..
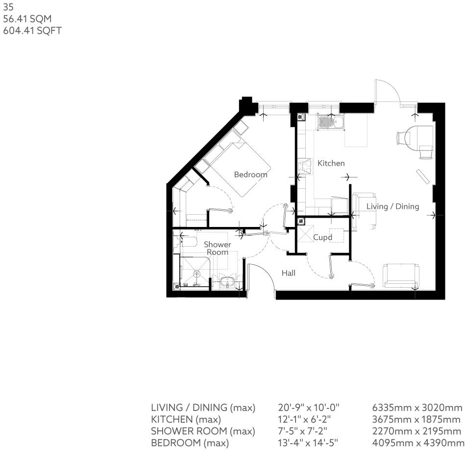
Easy living meets elegant design. Apartment 35 is a beautiful apartment with stunning contemporary kitchen and bathroom plus access to large, landscaped gardens.
Property Oracle says ..
This is a one-bedroom retirement property located on Queens Road, Weybridge. The property is modern and appears to be in excellent condition. The location is convenient, with access to transportation, schools, and local amenities. While it lacks a private garden, there are communal garden areas available. The price is reasonable for the area and the condition of the property. It is important to note that this is a retirement property and may have age restrictions.
Therefore, we give this property 6 / 10. *Disclaimer: This is our option and does constitute a recommendation or financial advice. Do your own research. *
- Price
- 6
- Condition
- 9
- Location
- 7
- Land
- 4
- Bedrooms
- 1
- Bathrooms
- 0
- Sqft (est)
- 340.75
The heatmap indicates the level of crime in the area. The color of the heatmap indicates the crime severity and recency.
Metrics Year-on-Year
- Average area value
- 2,713,636.00 £Increased by 69.90 %
- Est sale value
- 285,889.25 £Increased by 44.66 %
- Average area rental value
- 4,007.00 £/moIncreased by 11.27 %
- Est letting value
- 340.75 £/moUnchanged by 0.00 %
- Est rental Yield
- 1.77 %Decreased by 34.69 %
- Crime Rate
- 16.00 %Unchanged by 0.00 %
Agent Activity
McCarthy & Stone - South East created the listing.
Nearby Schools
| Name | Type | Ofsted | Distance |
|---|---|---|---|
| Manby Lodge Infant School | Community School | Good | 0.42 KM |
| St James Cofe Primary School | Voluntary Controlled School | Good | 0.87 KM |
| Oatlands School | Community School | Outstanding | 1.00 KM |
| St George'S Junior School Weybridge | Other Independent School | 1.39 KM | |
| Weybridge Sure Start Children'S Centre | Children's Centre | 1.49 KM |
Images
Nearby Streets
| Name | Average Price | Average Sqft | Distance |
|---|---|---|---|
| York Road | £ 925,000 | 0 | 0.00 KM |
| Barrington Lodge | £ 0 | 0 | 0.00 KM |
| Howard Place | £ 412,500 | 0 | 0.00 KM |
| Saint George’s Close | £ 725,000 | 0 | 0.00 KM |
| Cedar Grove | £ 0 | 0 | 0.00 KM |
Nearby Transport
| Name | NLC | TLC | Distance |
|---|---|---|---|
| Weybridge | 5577 | WYB | 1.46 KM |
| Shepperton | 5605 | SHP | 3.25 KM |
| Walton-On-Thames | 5575 | WAL | 3.51 KM |
| Addlestone | 5550 | ASN | 4.30 KM |
| Byfleet And New Haw | 5689 | BFN | 4.39 KM |
Nearby Listings
| Address | Price | Type | Score | Distance |
|---|---|---|---|---|
| 24 Queens Road Queens Road, Weybridge, KT13 9UX | £ 745,000 | BUY | 7 / 10 | 0.00 KM |
| 24 Queens Road Queens Road, Weybridge, KT13 9UX | £ 730,200 | BUY | 7 / 10 | 0.00 KM |
| 24 Queens Road Queens Road, Weybridge, KT13 9UX | £ 405,000 | BUY | 6 / 10 | 0.00 KM |
| 24 Queens Road Queens Road, Weybridge, KT13 9UX | £ 399,000 | BUY | 6 / 10 | 0.00 KM |
| 24 Queens Road Queens Road, Weybridge, KT13 9UX | £ 525,000 | BUY | 6 / 10 | 0.00 KM |
Nearby Properties
| Address | Price | Distance |
|---|---|---|
| 61 Queens Road | £ 490,000 | 0.05 KM |
| 87a Queens Road | £ 250,000 | 0.06 KM |
| 99a Queens Road | £ 280,000 | 0.06 KM |
| 22 Princes Road | £ 649,995 | 0.08 KM |
| 16 Princes Road | £ 497,500 | 0.08 KM |