GR
Gillingham Road, Gillingham, ME7
By Greyfox Estate Agents
£ 120,000
Reviews
3 out of 5 stars
Greyfox Estate Agents says ..
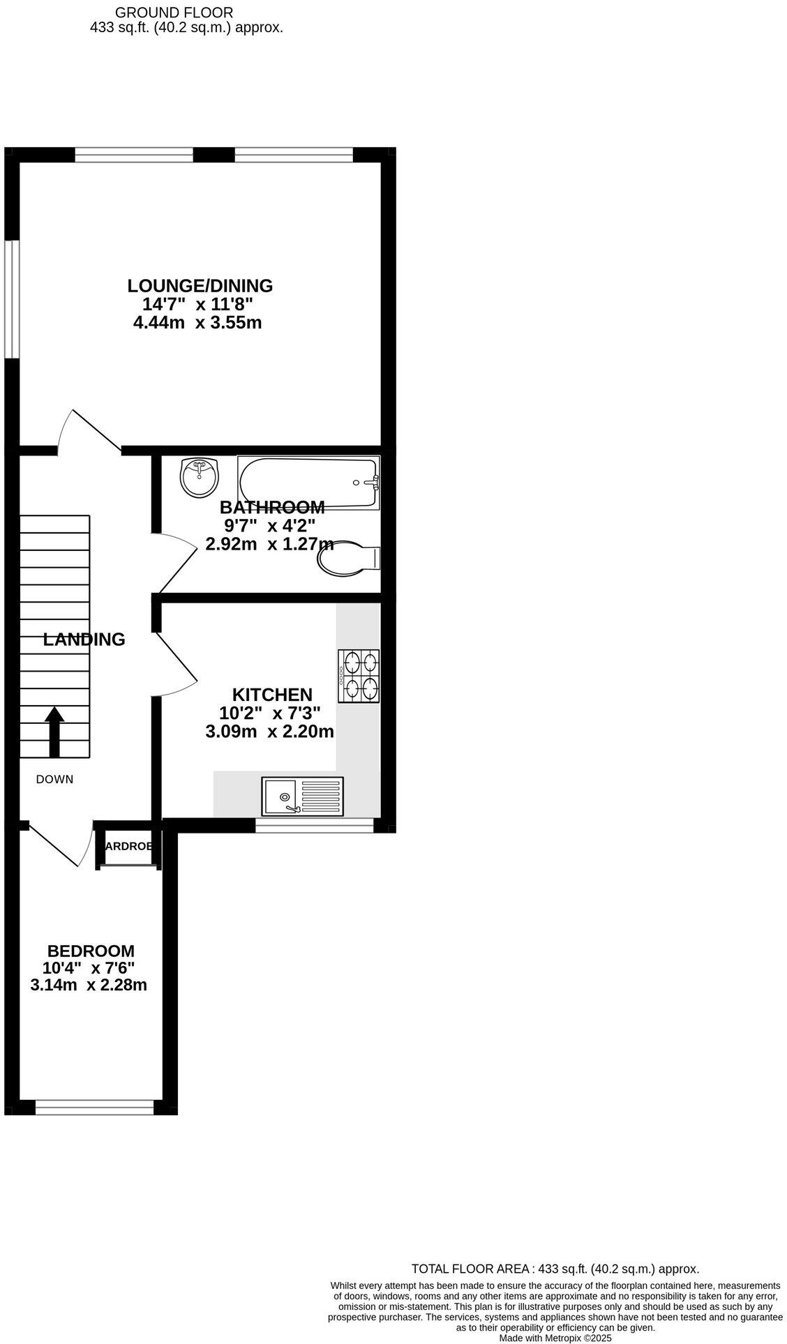
**Guide Price £120,000 - £140,000** This well presented one-bedroom first floor flat could be a fantastic first-time purchase or potential investment opportunity. The property features a separate kitchen, well-appointed bathroom, a double bedroom with built in wardrobes and a ...
Property Oracle says ..
Therefore, we give this property 6 / 10. *Disclaimer: This is our option and does constitute a recommendation or financial advice. Do your own research. *
- Price
- 7
- Condition
- 6
- Location
- 7
- Land
- 6
- Bedrooms
- 1
- Bathrooms
- 1
- Sqft (est)
- 364.20
The heatmap indicates the level of crime in the area. The color of the heatmap indicates the crime severity and recency.
Metrics Year-on-Year
- Average area value
- 253,389.00 £Increased by 1.64 %
- Est sale value
- 124,920.60 £Increased by 26.10 %
- Average area rental value
- 981.00 £/moDecreased by 6.12 %
- Est letting value
- 364.20 £/moUnchanged by 0.00 %
- Est rental Yield
- 4.65 %Decreased by 7.55 %
- Crime Rate
- 7.00 %Unchanged by 0.00 %
from 249,311.00 £
from 99,062.40 £
from 1,045.00 £/mo
from 364.20 £/mo
from 5.03 %
from 7.00 %
Agent Activity
Greyfox Estate Agents created the listing.
Nearby Schools
| Name | Type | Ofsted | Distance |
|---|---|---|---|
| Napier Community Primary And Nursery Academy | Academy Sponsor Led | Good | 0.45 KM |
| Byron Primary School | Academy Sponsor Led | Requires improvement | 0.55 KM |
| Hospital And Medical Tuition Service | Miscellaneous | 0.75 KM | |
| Oasis Academy Skinner Street | Academy Sponsor Led | Good | 0.76 KM |
| Brompton Academy | Academy Sponsor Led | Good | 0.90 KM |
Images
Nearby Streets
| Name | Average Price | Average Sqft | Distance |
|---|---|---|---|
| Balmoral Gardens | £ 0 | 0 | 0.00 KM |
| Kimberley Road | £ 0 | 0 | 0.00 KM |
| Pretoria Road | £ 230,000 | 0 | 0.00 KM |
| Sappers Walk | £ 0 | 0 | 0.00 KM |
| Balmoral Road | £ 0 | 0 | 0.00 KM |
Nearby Transport
| Name | NLC | TLC | Distance |
|---|---|---|---|
| Gillingham (Kent) | 5169 | GLM | 0.55 KM |
| Chatham | 5199 | CTM | 2.95 KM |
| Rochester | 5203 | RTR | 4.16 KM |
| Strood (Kent) | 5191 | SOO | 5.50 KM |
| Rainham (Kent) | 5177 | RAI | 7.25 KM |
Nearby Listings
| Address | Price | Type | Score | Distance |
|---|---|---|---|---|
| Gillingham Road, Gillingham, ME7 | £ 120,000 | BUY | 6 / 10 | 0.00 KM |
| 55 Gillingham Road, Gillingham, Kent ME7 4RZ | £ 190,000 | BUY | 5 / 10 | 0.04 KM |
| Gillingham Road, Gillingham, Kent, ME7 | £ 260,000 | BUY | 5 / 10 | 0.04 KM |
| Gillingham Road, Gillingham, Kent | £ 300,000 | BUY | 5 / 10 | 0.04 KM |
| Copenhagen Road, Gillingham, Kent, ME7 | £ 230,000 | BUY | 6 / 10 | 0.09 KM |
Nearby Properties
| Address | Price | Distance |
|---|---|---|
| 45 Gillingham Road | £ 170,000 | 0.04 KM |
| 57 Gillingham Road | £ 305,000 | 0.04 KM |
| 43a Gillingham Road | £ 139,000 | 0.04 KM |
| 59 Gillingham Road | £ 133,000 | 0.05 KM |
| 53 Gillingham Road | £ 143,000 | 0.05 KM |