LE
Normandy Way, Bletchley, Milton Keynes
By Leaders Sales
£ 515,000
Reviews
3 out of 5 stars
Leaders Sales says ..
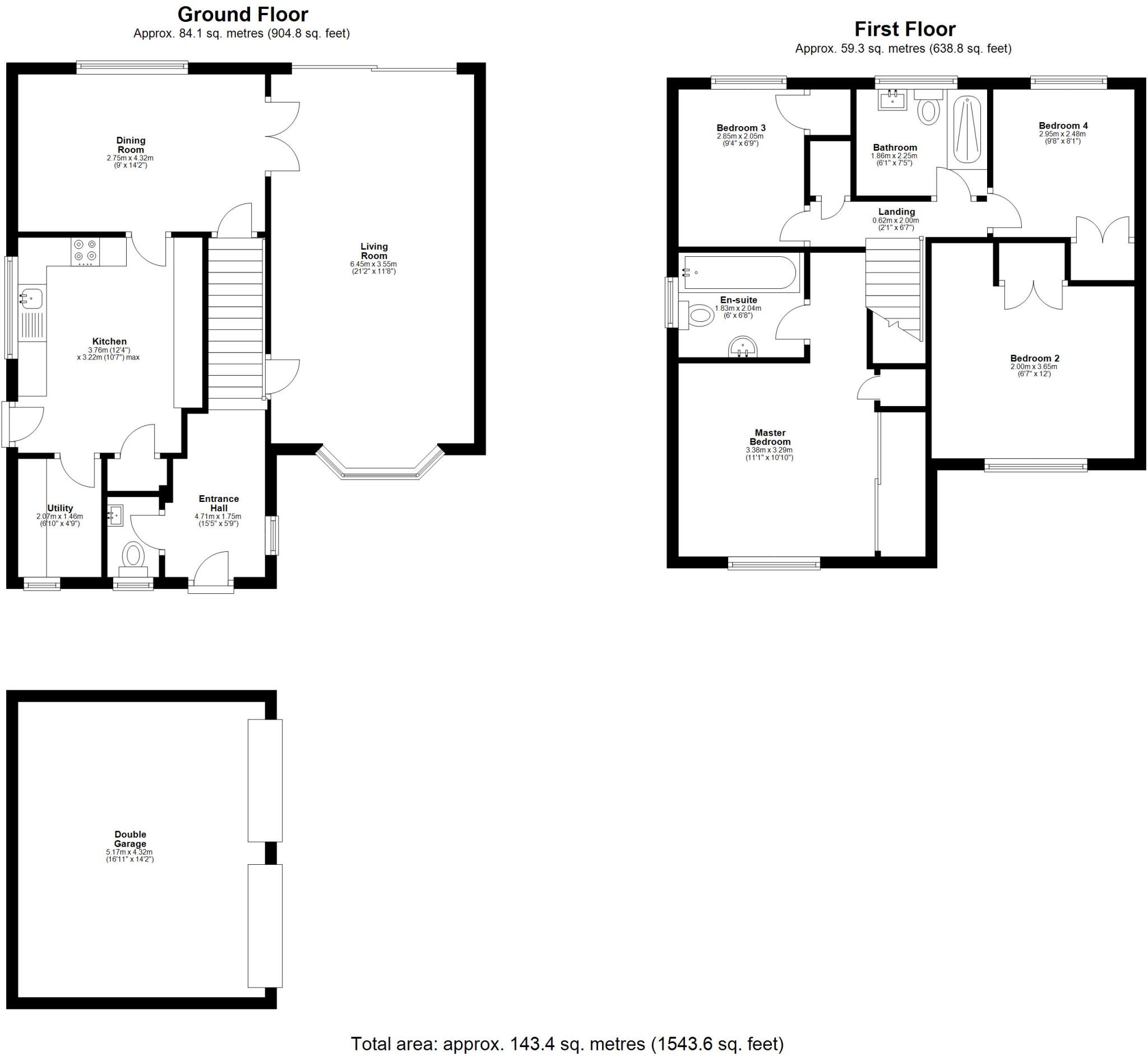
*** OFFERED CHAIN FREE ***This spacious and charming family home is located in a peaceful and quiet area, benefiting from a private rear garden, large double garage and off road parking for two vehicles. Ideal for those seeking a comfortable and homely living space in a highly sought-after area.
Property Oracle says ..
Therefore, we give this property 7 / 10. *Disclaimer: This is our option and does constitute a recommendation or financial advice. Do your own research. *
- Price
- 6
- Condition
- 7
- Location
- 7
- Land
- 8
- Bedrooms
- 4
- Bathrooms
- 2
- Sqft (est)
- 1,304.69
The heatmap indicates the level of crime in the area. The color of the heatmap indicates the crime severity and recency.
Metrics Year-on-Year
- Average area value
- 451,286.00 £Increased by 32.54 %
- Est sale value
- 409,672.66 £Decreased by 13.50 %
- Average area rental value
- 1,410.00 £/moDecreased by 12.04 %
- Est letting value
- 0.00 £/moDecreased by 100.00 %
- Est rental Yield
- 3.75 %Decreased by 33.63 %
- Crime Rate
- 2.00 %Unchanged by 0.00 %
from 340,490.00 £
from 473,602.47 £
from 1,603.00 £/mo
from 1,304.69 £/mo
from 5.65 %
from 2.00 %
Agent Activity
Leaders Sales created the listing.
Nearby Schools
| Name | Type | Ofsted | Distance |
|---|---|---|---|
| Milton Keynes Primary Pupil Referral Unit | Pupil Referral Unit | Good | 0.33 KM |
| Romans Field School | Community Special School | Good | 0.35 KM |
| Barleyhurst Park Primary | Community School | Good | 0.67 KM |
| Milton Keynes Preparatory School | Other Independent School | 0.93 KM | |
| Cambian Bletchley Park School | Other Independent Special School | Inadequate | 1.00 KM |
Images
Nearby Streets
| Name | Average Price | Average Sqft | Distance |
|---|---|---|---|
| Taunton Deane redway | £ 0 | 0 | 0.00 KM |
| Derwent Drive | £ 0 | 0 | 0.00 KM |
| Ainsdale Close | £ 0 | 0 | 0.00 KM |
| Parkside | £ 0 | 0 | 0.00 KM |
| Denham Close | £ 0 | 0 | 0.00 KM |
Nearby Transport
| Name | NLC | TLC | Distance |
|---|---|---|---|
| Bletchley | 1360 | BLY | 2.97 KM |
| Milton Keynes Central | 1378 | MKC | 3.74 KM |
| Fenny Stratford | 1377 | FEN | 5.11 KM |
| Bow Brickhill | 1381 | BWB | 7.30 KM |
| Wolverton | 1364 | WOL | 8.42 KM |
Nearby Listings
| Address | Price | Type | Score | Distance |
|---|---|---|---|---|
| Normandy Way, Bletchley, Milton Keynes | £ 515,000 | BUY | 7 / 10 | 0.00 KM |
| Normandy Way, Bletchley, Milton Keynes | £ 530,000 | BUY | 6 / 10 | 0.07 KM |
| Otter Close, Bletchley, MK3 | £ 775,000 | BUY | 7 / 10 | 0.12 KM |
| Normandy Way, Bletchley, Milton Keynes | £ 500,000 | BUY | 7 / 10 | 0.15 KM |
| Normandy Way, Bletchley, Milton Keynes, MK3 7UN | £ 475,000 | BUY | 6 / 10 | 0.16 KM |
Nearby Properties
| Address | Price | Distance |
|---|---|---|
| 68 Normandy Way | £ 330,000 | 0.06 KM |
| 51 Normandy Way | £ 295,000 | 0.06 KM |
| 78 Normandy Way | £ 332,000 | 0.06 KM |
| 77 Normandy Way | £ 151,500 | 0.06 KM |
| 82 Normandy Way | £ 225,000 | 0.06 KM |