HA
Elm Close, Epping Green, CM16
By Hammond & Smith
£ 525,000
Reviews
3 out of 5 stars
Hammond & Smith says ..
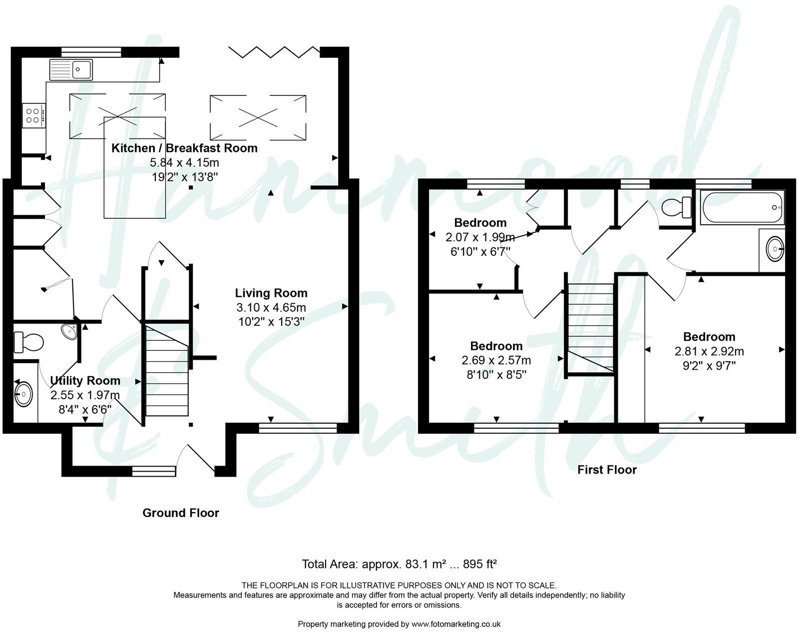
Lovingly extended, this three bedroom family home is filled with beautiful interiors and natural light.
Property Oracle says ..
Therefore, we give this property 7 / 10. *Disclaimer: This is our option and does constitute a recommendation or financial advice. Do your own research. *
- Price
- 8
- Condition
- 9
- Location
- 7
- Land
- 7
- Bedrooms
- 3
- Bathrooms
- 2
- Sqft (est)
- 677.07
The heatmap indicates the level of crime in the area. The color of the heatmap indicates the crime severity and recency.
Metrics Year-on-Year
- Average area value
- 964,231.00 £Increased by 16.42 %
- Est sale value
- 362,232.45 £Increased by 475.27 %
- Average area rental value
- 2,150.00 £/moDecreased by 21.82 %
- Est letting value
- 677.07 £/mo
- Est rental Yield
- 2.68 %Decreased by 32.66 %
- Crime Rate
- 106.00 %Unchanged by 0.00 %
from 828,250.00 £
from 62,967.51 £
from 2,750.00 £/mo
from 0.00 £/mo
from 3.98 %
from 106.00 %
Agent Activity
Hammond & Smith created the listing.
Nearby Schools
| Name | Type | Ofsted | Distance |
|---|---|---|---|
| Epping Upland Cofe Primary School | Academy Converter | 0.26 KM | |
| Milwards Primary School And Nursery | Academy Sponsor Led | Requires improvement | 2.33 KM |
| Water Lane Primary Academy | Academy Sponsor Led | Good | 2.39 KM |
| Kingsmoor Academy | Academy Sponsor Led | Good | 2.61 KM |
| St James Church Of England Primary School | Academy Sponsor Led | Good | 2.83 KM |
Images
Nearby Streets
| Name | Average Price | Average Sqft | Distance |
|---|---|---|---|
| Pump Lane | £ 737,500 | 0 | 0.00 KM |
Nearby Transport
| Name | NLC | TLC | Distance |
|---|---|---|---|
| Harlow Town | 6827 | HWN | 6.22 KM |
| Roydon | 6829 | RYN | 6.97 KM |
| Rye House | 6820 | RYH | 9.17 KM |
| Harlow Mill | 6804 | HWM | 9.22 KM |
Nearby Listings
| Address | Price | Type | Score | Distance |
|---|---|---|---|---|
| Elm Close, Epping Green, CM16 | £ 525,000 | BUY | 7 / 10 | 0.00 KM |
| Elm Close, Epping Green, CM16 | £ 420,000 | BUY | 6 / 10 | 0.03 KM |
| Green Close, Epping Green, CM16 | £ 535,000 | BUY | 7 / 10 | 0.06 KM |
| Green Close, Epping Green, CM16 | £ 550,000 | BUY | 7 / 10 | 0.06 KM |
| Green Close, Epping Green, Epping | £ 535,000 | BUY | 7 / 10 | 0.07 KM |
Nearby Properties
| Address | Price | Distance |
|---|---|---|
| 6 Elm Close | £ 362,500 | 0.06 KM |
| 1 Elm Close | £ 237,500 | 0.06 KM |
| 4 Elm Close | £ 350,000 | 0.06 KM |
| 19 Elm Close | £ 250,000 | 0.06 KM |
| 11 Elm Close | £ 250,000 | 0.06 KM |