BR
Axholme Road, Thingwall, Wirral, CH61
By Bradshaw Farnham & Lea
£ 285,000
Reviews
3 out of 5 stars
Bradshaw Farnham & Lea says ..
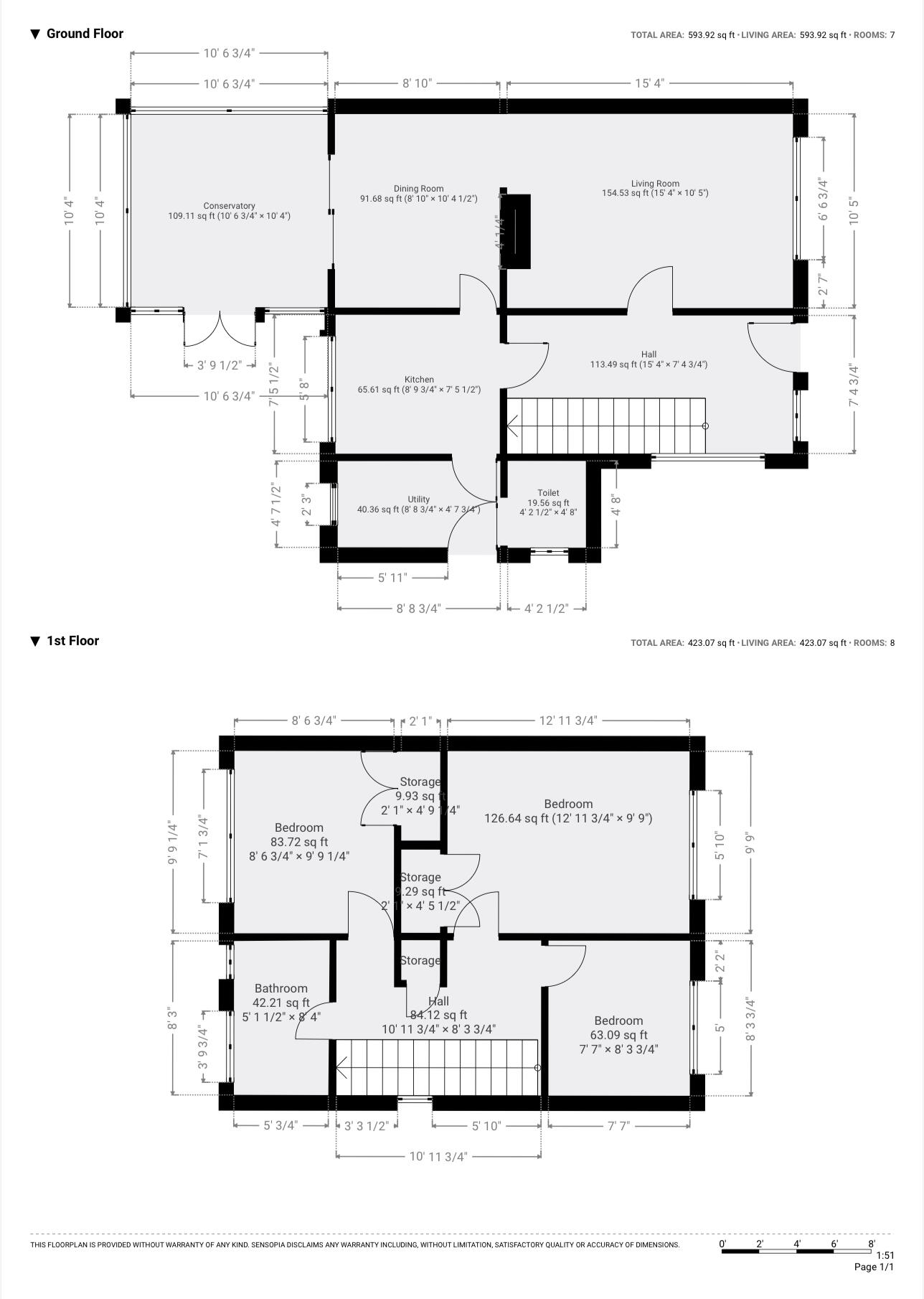
Located in the highly desirable area of Thingwall, this spacious three-bedroom semi-detached home is offered with no onward chain and occupies a generous plot, making it a superb opportunity for families, first-time buyers, or those looking for extra space in a well-connected location
Property Oracle says ..
Therefore, we give this property 6 / 10. *Disclaimer: This is our option and does constitute a recommendation or financial advice. Do your own research. *
- Price
- 7
- Condition
- 6
- Location
- 7
- Land
- 7
- Bedrooms
- 3
- Bathrooms
- 1
- Sqft (est)
- 593.92
The heatmap indicates the level of crime in the area. The color of the heatmap indicates the crime severity and recency.
Metrics Year-on-Year
- Average area value
- 266,111.00 £Decreased by 9.63 %
- Est sale value
- 194,211.84 £Increased by 28.74 %
- Average area rental value
- 1,200.00 £/moIncreased by 5.91 %
- Est letting value
- 593.92 £/mo
- Est rental Yield
- 5.41 %Increased by 17.10 %
- Crime Rate
- 3.00 %Unchanged by 0.00 %
from 294,467.00 £
from 150,855.68 £
from 1,133.00 £/mo
from 0.00 £/mo
from 4.62 %
from 3.00 %
Agent Activity
Bradshaw Farnham & Lea created the listing.
Nearby Schools
| Name | Type | Ofsted | Distance |
|---|---|---|---|
| Thingwall Primary School | Community School | Good | 0.41 KM |
| Stanley School | Community Special School | Good | 1.43 KM |
| Pensby Primary School | Community School | Good | 1.52 KM |
| Ladymount Catholic Primary School | Voluntary Aided School | Good | 1.95 KM |
| South And West Hub - Pensby Children'S Centre | Children's Centre | 2.00 KM |
Images
Nearby Streets
| Name | Average Price | Average Sqft | Distance |
|---|---|---|---|
| Quarry Lane | £ 0 | 0 | 0.00 KM |
| Sunningdale Drive | £ 0 | 0 | 0.00 KM |
| Parkway | £ 0 | 0 | 0.00 KM |
| Woodlands Drive | £ 625,000 | 0 | 0.00 KM |
| Dirty Lane | £ 0 | 0 | 0.00 KM |
Nearby Transport
| Name | NLC | TLC | Distance |
|---|---|---|---|
| Heswall | 2138 | HSW | 3.23 KM |
| Upton (Merseyside) | 2141 | UPT | 3.78 KM |
| Leasowe | 2237 | LSW | 6.17 KM |
| Bidston | 2136 | BID | 6.38 KM |
| Moreton (Merseyside) | 2151 | MRT | 6.50 KM |
Nearby Listings
| Address | Price | Type | Score | Distance |
|---|---|---|---|---|
| Axholme Road, Thingwall, Wirral, CH61 | £ 285,000 | BUY | 6 / 10 | 0.00 KM |
| Quarry Lane, Thingwall, Wirral, CH61 | £ 725,000 | BUY | 7 / 10 | 0.06 KM |
| Regents Close, Wirral, CH61 | £ 395,000 | BUY | Unknown | 0.12 KM |
| Axholme Road, CH61 | £ 300,000 | BUY | Unknown | 0.12 KM |
| Pensby Road, Thingwall, Wirral | £ 475,000 | BUY | 7 / 10 | 0.13 KM |
Nearby Properties
| Address | Price | Distance |
|---|---|---|
| 80 Sparks Lane | £ 170,000 | 0.06 KM |
| 62 Sparks Lane | £ 480,000 | 0.06 KM |
| 52 Sparks Lane | £ 78,000 | 0.06 KM |
| 70 Sparks Lane | £ 168,800 | 0.06 KM |
| 50 Sparks Lane | £ 163,750 | 0.06 KM |