Head Street, Halstead
By Philip James Estates
£ 320,000
Reviews
3 out of 5 stars
Philip James Estates says ..
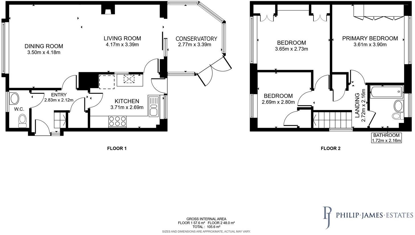
Offers between £350,000 - £375,000, close to Halstead town centre this three bedroom detached house with off road parking for two cars and a garage. Viewing is highly recommended to avoid disappointment, large lounge/diner, fitted kitchen, three bedrooms and family bathroom. This property is off...
Property Oracle says ..
This three-bedroom, one-bathroom detached house located on Head Street in Halstead, Essex, presents a reasonable option for potential buyers. The property benefits from its location close to Halstead town centre, offering access to local amenities and services. Furthermore, a number of schools are relatively nearby. The property itself appears to be in good condition. Although the interiors are not modern, the existing features look to be well-maintained and functional. The kitchen and bathroom are suitably appointed but might benefit from modernisations to satisfy discerning buyers. The property includes a garden space, but it’s not expansive, more of a compact outdoor area. While the provided data on nearby properties lacks specific square footage figures, making a precise comparison challenging, the asking price appears fairly aligned with other three-bedroom properties in the Halstead area. Overall, this property might appeal to families seeking a well-located home with decent accommodation, though those looking for contemporary interiors or a larger outdoor space should be prepared for potential refurbishment work or possibly a further search.
Therefore, we give this property 6 / 10. *Disclaimer: This is our option and does constitute a recommendation or financial advice. Do your own research. *
- Price
- 7
- Condition
- 6
- Location
- 7
- Land
- 4
- Bedrooms
- 3
- Bathrooms
- 1
- Sqft (est)
- 1,136.67
The heatmap indicates the level of crime in the area. The color of the heatmap indicates the crime severity and recency.
Metrics Year-on-Year
- Average area value
- 293,000.00 £Decreased by 16.75 %
- Est sale value
- 408,064.53 £Increased by 10.80 %
- Average area rental value
- 882.00 £/moDecreased by 36.23 %
- Est letting value
- 1,136.67 £/moUnchanged by 0.00 %
- Est rental Yield
- 3.61 %Decreased by 23.52 %
- Crime Rate
- 27.00 %Unchanged by 0.00 %
Agent Activity
Philip James Estates created the listing.
Nearby Schools
| Name | Type | Ofsted | Distance |
|---|---|---|---|
| Richard De Clare Community Academy | Academy Converter | Special Measures | 0.43 KM |
| The Ramsey Academy, Halstead | Academy Sponsor Led | Good | 0.60 KM |
| St Andrew'S Church Of England Primary School, Halstead | Academy Converter | 0.82 KM | |
| Bra3 Acorn Family Hub Delivery Site | Children's Centre | 1.26 KM | |
| Holy Trinity Church Of England Voluntary Controlled Primary School, Halstead | Voluntary Controlled School | Good | 1.27 KM |
Images
Nearby Streets
| Name | Average Price | Average Sqft | Distance |
|---|---|---|---|
| Mill Green | £ 315,000 | 0 | 0.00 KM |
| Symonds Court | £ 0 | 0 | 0.00 KM |
| St Andrews Road | £ 165,000 | 0 | 0.00 KM |
| Bronze Court | £ 170,000 | 0 | 0.00 KM |
| Factory Lane West | £ 287,500 | 0 | 0.00 KM |
Nearby Listings
| Address | Price | Type | Score | Distance |
|---|---|---|---|---|
| Head Street, Halstead | £ 320,000 | BUY | 6 / 10 | 0.00 KM |
| Head Street, Halstead, CO9 | £ 320,000 | BUY | 6 / 10 | 0.00 KM |
| Head Street, Halstead, CO9 | £ 1,400,000 | BUY | 7 / 10 | 0.00 KM |
| Head Street, Halstead | £ 325,000 | BUY | 6 / 10 | 0.02 KM |
| Head Street, Halstead | £ 1,400,000 | BUY | 7 / 10 | 0.04 KM |
Nearby Properties
| Address | Price | Distance |
|---|---|---|
| 25 Head Street | £ 150,500 | 0.01 KM |
| 49 Head Street | £ 885,000 | 0.01 KM |
| 21 Head Street | £ 60,000 | 0.01 KM |
| 35 Head Street | £ 95,500 | 0.01 KM |
| 75 Head Street | £ 300,000 | 0.01 KM |