Cazenove Road, Hackney, London, N16
By Foxtons
£ 350,000
Reviews
3 out of 5 stars
Foxtons says ..
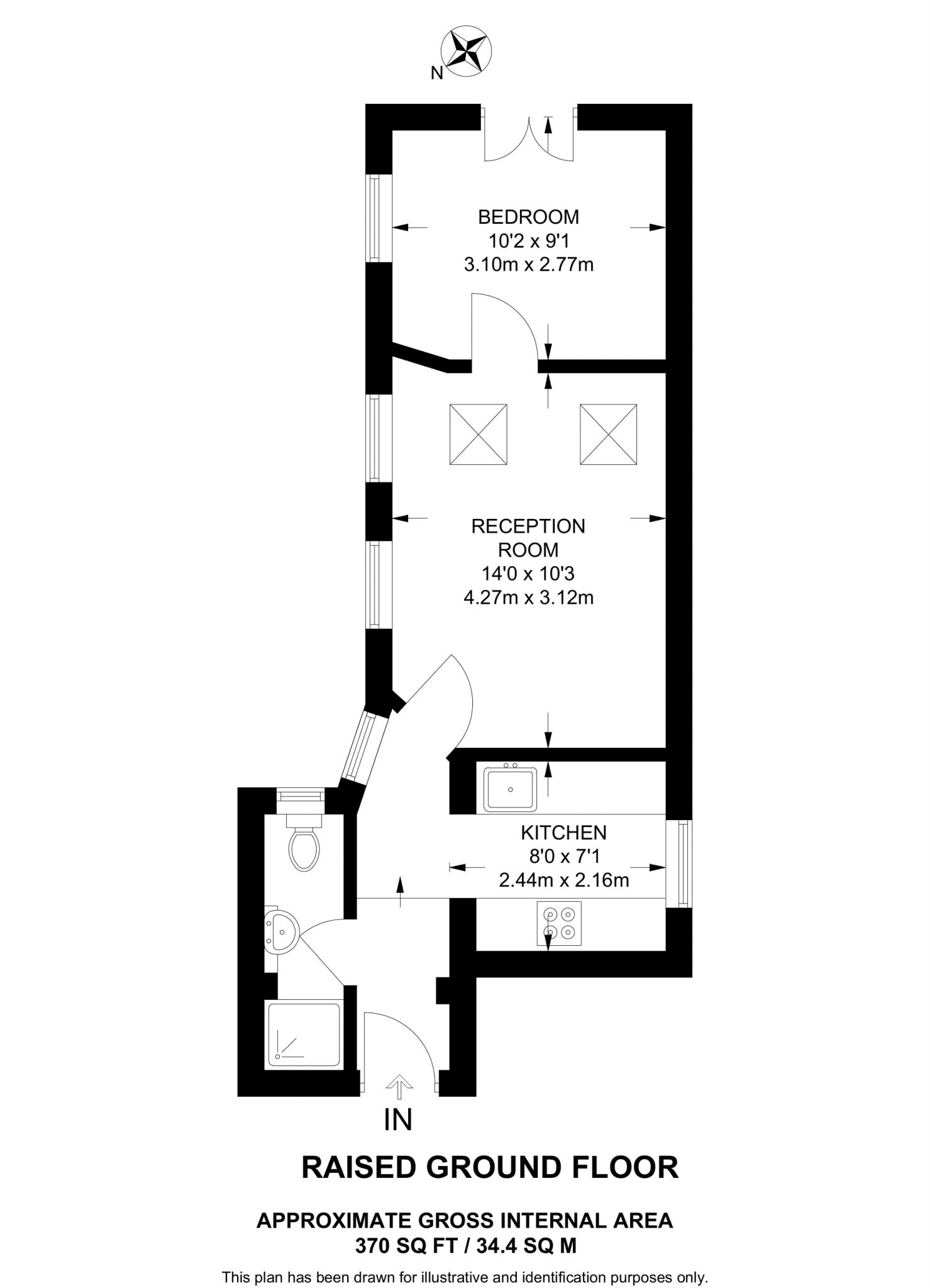
A stunning 1 bedroom flat situated on the raised ground floor, boasting bright and modern accommodation throughout and an excellent Stoke Newington location.
Property Oracle says ..
This one bedroom flat is located on Cazenove Road in Hackney, East London. The property is well-located within easy reach of Stoke Newington High Street, offering various amenities and transport links. The nearby Stoke Newington station provides convenient access to the London Overground network. The flat itself appears to be in good condition, with a recently modernised kitchen and bathroom. The property benefits from a small private garden, which is a desirable feature in a densely populated urban area. While the list price of £350,000 is above the average price per square foot for the area, the good condition, desirable location, and inclusion of a garden may justify this price point, especially when compared to similar properties in the vicinity. However, potential buyers should conduct thorough research and compare similar properties to ensure they are making an informed decision.
Therefore, we give this property 7 / 10. *Disclaimer: This is our option and does constitute a recommendation or financial advice. Do your own research. *
- Price
- 7
- Condition
- 8
- Location
- 9
- Land
- 6
- Bedrooms
- 1
- Bathrooms
- 1
- Sqft (est)
- 370.28
The heatmap indicates the level of crime in the area. The color of the heatmap indicates the crime severity and recency.
Metrics Year-on-Year
- Average area value
- 996,818.00 £Increased by 20.60 %
- Est sale value
- 317,329.96 £Increased by 149.85 %
- Average area rental value
- 2,571.00 £/moIncreased by 1.70 %
- Est letting value
- 740.56 £/moIncreased by 100.00 %
- Est rental Yield
- 3.10 %Decreased by 15.53 %
- Crime Rate
- 10.00 %Unchanged by 0.00 %
Agent Activity
Foxtons created the listing.
Nearby Schools
| Name | Type | Ofsted | Distance |
|---|---|---|---|
| Tawhid Boys School, Tawhid Educational Trust | Other Independent School | Good | 0.11 KM |
| Ttd Gur School | Other Independent School | Inadequate | 0.34 KM |
| William Patten Primary School | Community School | Outstanding | 0.36 KM |
| Beis Malka Girls' School | Other Independent School | Good | 0.38 KM |
| Talmud Torah Chaim Meirim Wiznitz School | Other Independent School | Inadequate | 0.44 KM |
Images
Nearby Streets
| Name | Average Price | Average Sqft | Distance |
|---|---|---|---|
| Station Approach | £ 0 | 0 | 0.00 KM |
| Sanford Lane | £ 0 | 0 | 0.00 KM |
| Sandford Walk | £ 0 | 0 | 0.00 KM |
| Scholars' Place | £ 825,000 | 0 | 0.00 KM |
| Manor Road | £ 831,667 | 0 | 0.00 KM |
Nearby Transport
| Name | NLC | TLC | Distance |
|---|---|---|---|
| Stoke Newington | 6934 | SKW | 0.17 KM |
| Rectory Road | 6967 | REC | 0.74 KM |
| Stamford Hill | 6968 | SMH | 1.28 KM |
| Clapton | 6926 | CPT | 1.71 KM |
| Dalston Kingsland | 1429 | DLK | 1.78 KM |
Nearby Listings
| Address | Price | Type | Score | Distance |
|---|---|---|---|---|
| Cazenove Road, Hackney, London, N16 | £ 350,000 | BUY | 7 / 10 | 0.00 KM |
| Cazenove Road, London N16 | £ 625,000 | BUY | Unknown | 0.02 KM |
| Gibson Gardens, London | £ 435,000 | BUY | 7 / 10 | 0.03 KM |
| Cazenove Road, London N16 | £ 395,000 | BUY | 7 / 10 | 0.05 KM |
| Gibson Gardens, London, N16 | £ 400,000 | BUY | 6 / 10 | 0.06 KM |
Nearby Properties
| Address | Price | Distance |
|---|---|---|
| 16a Cazenove Road | £ 500,000 | 0.03 KM |
| 18a Cazenove Road | £ 400,000 | 0.03 KM |
| 51 Gibson Gardens | £ 412,500 | 0.03 KM |
| 32 Gibson Gardens | £ 415,000 | 0.03 KM |
| 14 Gibson Gardens | £ 256,500 | 0.03 KM |