The Laurels, Longfield, Kent, DA3
By Robinson Jackson
£ 650,000
Reviews
4 out of 5 stars
Robinson Jackson says ..
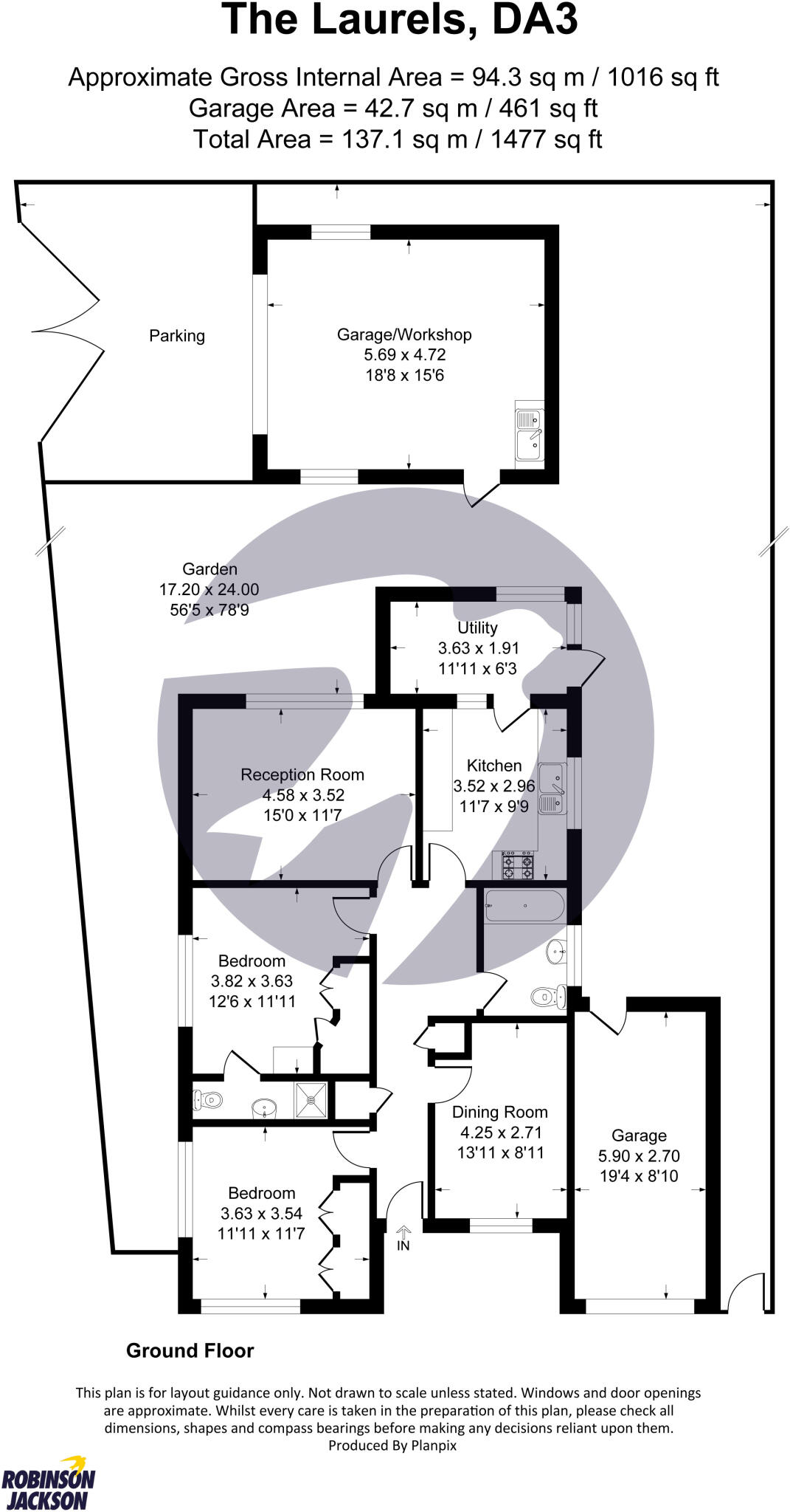
Guide Price £650,000 - £675,000 Robinson Jackson are pleased to offer this detached bungalow with garage, workshop, and Ample Off-Street Parking. Nestled in a peaceful and sought-after location, this charming detached bungalow offers flexible living spaces ideal for m...
Property Oracle says ..
The property is located in Longfield, Kent, a village with a relatively quiet suburban feel. The nearby schools, Langafel Church of England Voluntary Controlled Primary School and Rowhill School, both have good Ofsted ratings, making it potentially attractive to families. The proximity to several Southeastern train stations, although requiring a short drive, provides convenient access to commuting routes. The presence of local amenities, while not explicitly detailed, is implied by the description of Longfield as a village. Based on the photographs, the property appears to be well-maintained and in good condition. The interior is clean and modern, with updated fixtures and fittings. There is no visible evidence of significant repairs or renovations needed. The kitchen and bathrooms appear to be recently updated. The property includes a sizeable garden, offering considerable outdoor space. The garden appears well-maintained and provides ample space for recreational activities or landscaping. Considering the list price of £650,000, the average price in the area of £551,500, and the property’s size of 5,676.99 sqft (significantly larger than the average of 1,366 sqft), the price per sqft of approximately £115 is considerably lower than the area average of £403. This suggests that the list price may represent good value, especially considering the apparent good condition of the property and the substantial garden. However, nearby comparable properties are not consistently priced, with some significantly higher and others lower. Therefore, a definitive conclusion on price value requires a more detailed comparison of similar properties in the immediate vicinity with similar square footage and condition. The lack of precise square footage data for nearby listings makes a full comparison difficult.
Therefore, we give this property 8 / 10. *Disclaimer: This is our option and does constitute a recommendation or financial advice. Do your own research. *
- Price
- 8
- Condition
- 9
- Location
- 7
- Land
- 8
- Bedrooms
- 3
- Bathrooms
- 2
- Sqft (est)
- 5,676.99
- Lot (est)
- 1,475.73
The heatmap indicates the level of crime in the area. The color of the heatmap indicates the crime severity and recency.
Metrics Year-on-Year
- Average area value
- 585,640.00 £Increased by 1.25 %
- Est sale value
- 2,497,875.60 £Increased by 7.58 %
- Average area rental value
- 1,663.00 £/moDecreased by 26.09 %
- Est letting value
- 5,676.99 £/moUnchanged by 0.00 %
- Est rental Yield
- 3.41 %Decreased by 26.98 %
- Crime Rate
- 21.00 %Unchanged by 0.00 %
Agent Activity
Robinson Jackson created the listing.
Nearby Schools
| Name | Type | Ofsted | Distance |
|---|---|---|---|
| Langafel Church Of England Voluntary Controlled Primary School | Voluntary Controlled School | Good | 1.65 KM |
| Rowhill School | Foundation Special School | Good | 1.74 KM |
| Istead Rise Primary School | Academy Sponsor Led | Good | 1.83 KM |
| Our Lady Of Hartley Catholic Primary School, Hartley, Longfield | Academy Converter | 2.93 KM | |
| Longfield Academy | Academy Sponsor Led | Good | 2.96 KM |
Images
Nearby Streets
| Name | Average Price | Average Sqft | Distance |
|---|---|---|---|
| The Laurels | £ 0 | 0 | 0.00 KM |
| The Gables | £ 0 | 0 | 0.00 KM |
| The Close | £ 600,000 | 0 | 0.00 KM |
| Firecrest Close | £ 0 | 0 | 0.00 KM |
| Starling Close | £ 575,000 | 0 | 0.00 KM |
Nearby Transport
| Name | NLC | TLC | Distance |
|---|---|---|---|
| Meopham | 5116 | MEP | 2.73 KM |
| Longfield | 5114 | LGF | 3.66 KM |
| Sole Street | 5126 | SOR | 5.08 KM |
| Ebbsfleet International | 5566 | EBD | 5.66 KM |
| Northfleet | 5120 | NFL | 5.89 KM |
Nearby Listings
| Address | Price | Type | Score | Distance |
|---|---|---|---|---|
| The Laurels, Longfield, Kent, DA3 | £ 650,000 | BUY | 8 / 10 | 0.00 KM |
| Fawkham Avenue, New Barn, Kent | £ 1,650,500 | BUY | Unknown | 0.14 KM |
| Fawkham Avenue, New Barn, Kent | £ 2,500,000 | BUY | Unknown | 0.14 KM |
| Fawkham Avenue, Longfield, Kent, DA3 | £ 825,000 | BUY | 7 / 10 | 0.14 KM |
| Fawkham Avenue, Longfield, Kent, DA3 | £ 950,000 | BUY | 7 / 10 | 0.15 KM |
Nearby Properties
| Address | Price | Distance |
|---|---|---|
| 6 The Oval | £ 489,000 | 0.05 KM |
| 3 The Oval | £ 670,000 | 0.05 KM |
| 9 The Oval | £ 430,000 | 0.05 KM |
| 17 The Laurels | £ 530,000 | 0.09 KM |
| 1 The Laurels | £ 480,000 | 0.09 KM |