Watertower Way, Basingstoke, Hampshire, RG24
By Bridges Estate Agents
£ 235,000
Reviews
3 out of 5 stars
Bridges Estate Agents says ..
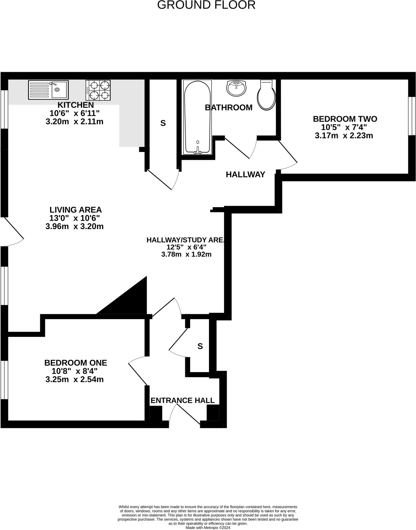
Located on the popular Park Prewett development in the Rooksdown area of Basingstoke, this stunning and characterful ground floor maisonette forms part of an impressive conversion which is one of a kind. With a larger than average garden space enclosed by wrought iron fencing and a direct view o...
Property Oracle says ..
This two-bedroom, one-bathroom maisonette in Basingstoke’s Rooksdown area offers a modern and well-maintained interior, as evidenced by the provided photographs. The property benefits from a convenient location near good schools and Basingstoke train station, making it attractive to families and commuters. The enclosed garden, though seemingly small, adds a degree of outdoor space. However, the listing’s lack of precise plot size information and the absence of average price-per-square-foot data for comparable properties in the immediate vicinity make a definitive assessment of value challenging. The list price of £235,000 may be slightly inflated, considering the size of the property and the small garden, although the unique nature of the conversion (part of an impressive conversion) may justify a premium. A thorough survey and comparison with similar recently sold properties in the immediate area are recommended to gain a more accurate understanding of its market value.
Therefore, we give this property 6 / 10. *Disclaimer: This is our option and does constitute a recommendation or financial advice. Do your own research. *
- Price
- 6
- Condition
- 7
- Location
- 7
- Land
- 4
- Bedrooms
- 2
- Bathrooms
- 1
- Sqft (est)
- 777.48
The heatmap indicates the level of crime in the area. The color of the heatmap indicates the crime severity and recency.
Metrics Year-on-Year
- Average area value
- 339,353.00 £Decreased by 35.35 %
- Est sale value
- 321,876.72 £Decreased by 15.68 %
- Average area rental value
- 1,419.00 £/moIncreased by 8.32 %
- Est letting value
- 777.48 £/moUnchanged by 0.00 %
- Est rental Yield
- 5.02 %Increased by 67.89 %
- Crime Rate
- 23.00 %Unchanged by 0.00 %
Agent Activity
Bridges Estate Agents created the listing.
Nearby Schools
| Name | Type | Ofsted | Distance |
|---|---|---|---|
| The Ashwood Academy | Academy Alternative Provision Sponsor Led | Good | 0.83 KM |
| Saxon Wood School | Community Special School | Good | 1.11 KM |
| Winklebury Junior School | Community School | Good | 1.16 KM |
| Winklebury Infant School | Community School | Good | 1.18 KM |
| Castle Hill Infant School | Community School | Outstanding | 1.74 KM |
Images
Nearby Streets
| Name | Average Price | Average Sqft | Distance |
|---|---|---|---|
| Spinney Mew | £ 300,000 | 0 | 0.00 KM |
| Furzelea Road | £ 450,000 | 0 | 0.00 KM |
| Nightingale Gardens | £ 240,000 | 0 | 0.00 KM |
| Ashwood Way | £ 0 | 0 | 0.00 KM |
| Austen Court | £ 0 | 0 | 0.00 KM |
Nearby Transport
| Name | NLC | TLC | Distance |
|---|---|---|---|
| Basingstoke | 5520 | BSK | 3.61 KM |
| Bramley (Hampshire) | 5500 | BMY | 8.28 KM |
Nearby Listings
| Address | Price | Type | Score | Distance |
|---|---|---|---|---|
| Watertower Way, Basingstoke, Hampshire, RG24 | £ 235,000 | BUY | 6 / 10 | 0.00 KM |
| Watertower Way, Basingstoke, Hampshire | £ 425,000 | BUY | 8 / 10 | 0.06 KM |
| Watertower Way, Basingstoke, Hampshire | £ 375,000 | BUY | 6 / 10 | 0.06 KM |
| Limes Park | £ 195,000 | BUY | 7 / 10 | 0.07 KM |
| Hollies Court, Basingstoke, RG24 | £ 240,000 | BUY | 6 / 10 | 0.08 KM |
Nearby Properties
| Address | Price | Distance |
|---|---|---|
| 1 Watertower Way | £ 287,000 | 0.07 KM |
| 26 Watertower Way | £ 350,000 | 0.07 KM |
| 10 Watertower Way | £ 250,000 | 0.07 KM |
| 11 Watertower Way | £ 370,000 | 0.07 KM |
| 52 Watertower Way | £ 270,000 | 0.07 KM |