Cleveland Street, London, W1T
SA

Cleveland Street, London, W1T

By Savills

£ 1,999,000

Reviews

3 out of 5 stars

Savills says ..

Two bedroom apartment in a modern development in the heart of Fitzrovia.

Property Oracle says ..

This two-bedroom, two-bathroom apartment in Bloomsbury, London, is presented as a high-end property with a contemporary design and modern amenities. The images showcase a sleek kitchen, spacious living areas, and stylish bathrooms. The apartment’s location in Bloomsbury places it within easy reach of several reputable schools, major transport links (Euston and King’s Cross being particularly notable), and various cultural attractions. While the property boasts a modern aesthetic and a sought-after location, the lack of details regarding the specific plot size and the absence of a private garden could be considered limiting factors for some buyers. The property’s price point is considerable; however, given the premium location and apparent quality of the apartment, it could be perceived as competitive within the context of the surrounding market. Further analysis of precise local price per square foot data would assist in establishing the overall value for money more definitively. The communal gardens provide a benefit but are unlikely to compensate entirely for the lack of private outside space. The lack of specific information on leasehold details, service charges etc. would also need to be considered by any potential purchaser, to properly assess value.

Therefore, we give this property 6 / 10. *Disclaimer: This is our option and does constitute a recommendation or financial advice. Do your own research. *

Price
7
Condition
9
Location
8
Land
2
Bedrooms
2
Bathrooms
2
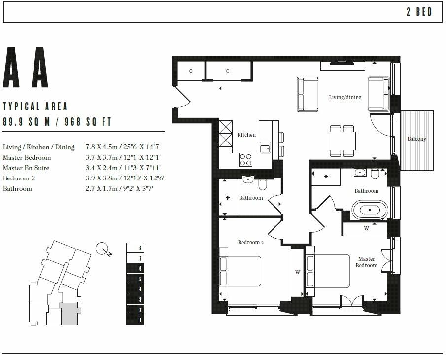
Sqft (est)
968.00

The heatmap indicates the level of crime in the area. The color of the heatmap indicates the crime severity and recency.

Metrics Year-on-Year

Average area value
1,250,000.00 £
Increased by 12.92 %
from 1,106,999.00 £
Est sale value
1,554,608.00 £
Increased by 11.92 %
from 1,389,080.00 £
Average area rental value
2,076.00 £/mo
Decreased by 6.74 %
from 2,226.00 £/mo
Est letting value
1,936.00 £/mo
Unchanged by 0.00 %
from 1,936.00 £/mo
Est rental Yield
1.99 %
Decreased by 17.43 %
from 2.41 %
Crime Rate
1.00 %
Unchanged by 0.00 %
from 1.00 %

Agent Activity

  • Savills created the listing.

Nearby Schools

NameTypeOfstedDistance
Portland Place SchoolOther Independent School0.43 KM
Eifa International SchoolOther Independent SchoolGood0.47 KM
Southbank International School WestminsterOther Independent School0.50 KM
Netley Primary School & Centre For AutismCommunity SchoolGood0.51 KM
All Souls Cofe Primary SchoolVoluntary Aided SchoolGood0.52 KM

Images

Kitchen Reception Room Bedroom One Bedroom Two Reception Room Reception Room Reception Room Bathroom One Bathroom Two Balcony Communal Gardens Exterior Communal Lobby

Nearby Streets

NameAverage PriceAverage SqftDistance
Greenwell Street £ 000.00 KM
Euston Underpass £ 000.00 KM
Tottenham Court Road £ 000.00 KM
Euston Circus £ 000.00 KM
Drummond Street £ 000.00 KM

Nearby Transport

NameNLCTLCDistance
Euston1444EUS1.03 KM
St Pancras1555STP1.91 KM
Camden Road1440CMD2.10 KM
King'S Cross6121KGX2.26 KM
Marylebone1475MYB2.33 KM

Nearby Listings

AddressPriceTypeScoreDistance
Cleveland Street, London, W1T £ 1,999,000BUY6 / 100.00 KM
Cleveland Street, Fitzrovia, London, W1T £ 375,000BUY5 / 100.01 KM
Cleveland Street, London, W1T 6QL £ 375,000BUY5 / 100.02 KM
Cleveland Street Fitzrovia £ 900,000BUYUnknown0.03 KM
Cleveland Street, Fitzrovia, London, W1T £ 360,000BUYUnknown0.03 KM

Nearby Properties

AddressPriceDistance
114a Cleveland Street £ 825,0000.02 KM
114c - 114f Cleveland Street £ 550,0000.02 KM
31 Conway Street £ 193,0000.04 KM
35 Conway Street £ 680,0000.04 KM
149a Cleveland Street £ 288,5000.04 KM