BidX1 says ..
N/A
Property Oracle says ..
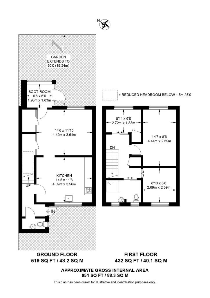
The property is a 3 bedroom semi-detached house located in Guildford, Surrey. The property is in need of renovation, but has a good sized garden. The property is located close to local amenities and schools. The nearest train station is 4.16KM away. The property is listed for £315,000, which is below the average price for the area.
Therefore, we give this property 5 / 10. *Disclaimer: This is our option and does constitute a recommendation or financial advice. Do your own research. *
- Price
- 7
- Condition
- 4
- Location
- 6
- Land
- 6
- Bedrooms
- 3
- Bathrooms
- 1
The heatmap indicates the level of crime in the area. The color of the heatmap indicates the crime severity and recency.
Metrics Year-on-Year
- Average area value
- 968,500.00 £Increased by 58.88 %
- Average area rental value
- 2,620.00 £/moDecreased by 16.13 %
- Est rental Yield
- 3.25 %Decreased by 47.15 %
- Crime Rate
- 114.00 %Unchanged by 0.00 %
from 609,561.00 £
from 3,124.00 £/mo
from 6.15 %
from 114.00 %
Agent Activity
BidX1 created the listing.
Nearby Schools
| Name | Type | Ofsted | Distance |
|---|---|---|---|
| Wood Street Infant School | Community School | Outstanding | 0.72 KM |
| Worplesdon Primary School | Community School | Good | 1.77 KM |
| Guildford Grove Primary School | Academy Converter | Good | 2.37 KM |
| The Spinney Sure Start Children'S Centre | Children's Centre | 2.37 KM | |
| Kings College Guildford | Academy Sponsor Led | Good | 2.60 KM |
Images
Nearby Streets
| Name | Average Price | Average Sqft | Distance |
|---|---|---|---|
| Stream Banks | £ 320,000 | 0 | 0.00 KM |
| Halifax Close | £ 650,000 | 0 | 0.00 KM |
Nearby Transport
| Name | NLC | TLC | Distance |
|---|---|---|---|
| Wanborough | 5639 | WAN | 4.16 KM |
| Guildford | 5631 | GLD | 5.66 KM |
| Brookwood | 5687 | BKO | 6.15 KM |
| Farncombe | 5643 | FNC | 6.41 KM |
| Worplesdon | 5686 | WPL | 6.92 KM |
Nearby Listings
| Address | Price | Type | Score | Distance |
|---|---|---|---|---|
| Baird Drive, Guildford, Surrey, GU3 | £ 315,000 | BUY | 5 / 10 | 0.00 KM |
| Baird Drive, Guildford, GU3 | £ 400,000 | BUY | Unknown | 0.05 KM |
| Baird Drive, Wood Street Village, Guildford, GU3 | £ 160,000 | BUY | 6 / 10 | 0.05 KM |
| Wildfield Close, Wood Street Village, Guildford, Surrey, GU3 | £ 375,000 | BUY | 7 / 10 | 0.10 KM |
| 75 The Oval, Wood Street Village, Guildford | £ 500,000 | BUY | Unknown | 0.12 KM |
Nearby Properties
| Address | Price | Distance |
|---|---|---|
| 37 Baird Drive | £ 340,000 | 0.04 KM |
| 41 Baird Drive | £ 225,000 | 0.04 KM |
| 7 Baird Drive | £ 195,000 | 0.04 KM |
| 43 Baird Drive | £ 295,000 | 0.04 KM |
| 5 Baird Drive | £ 215,000 | 0.04 KM |