Barnard Marcus says ..
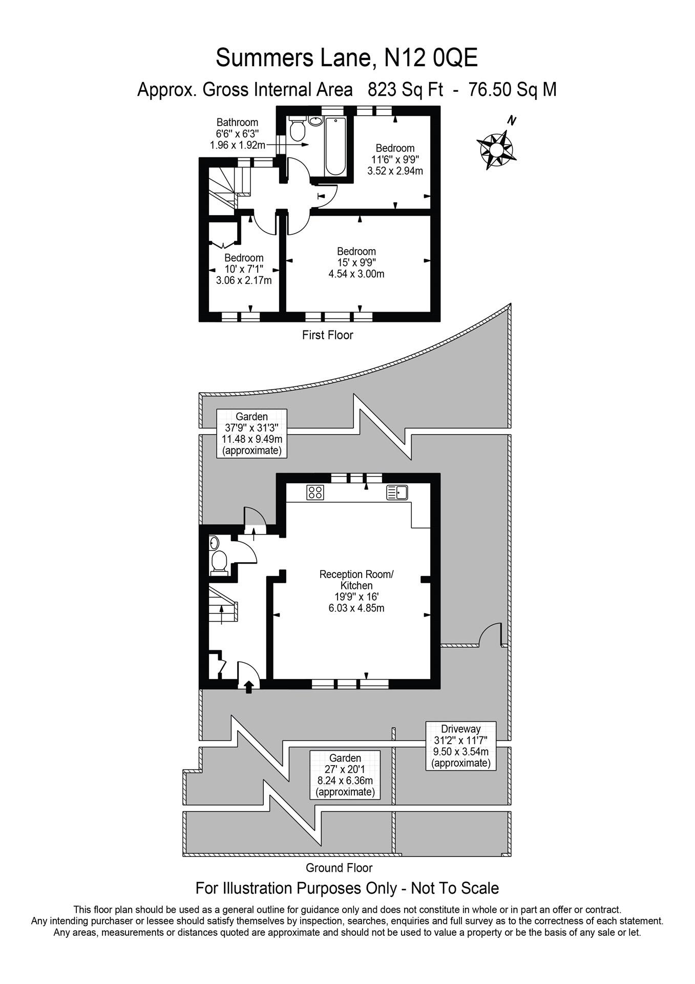
Located on the ever-popular Summers Lane in North Finchley, this well-presented three-bedroom semi-detached house offers generous living space, a private driveway, and both front and rear gardens.
Property Oracle says ..
Therefore, we give this property 7 / 10. *Disclaimer: This is our option and does constitute a recommendation or financial advice. Do your own research. *
- Price
- 9
- Condition
- 7
- Location
- 8
- Land
- 6
- Bedrooms
- 3
- Bathrooms
- 2
- Sqft (est)
- 2,228.10
The heatmap indicates the level of crime in the area. The color of the heatmap indicates the crime severity and recency.
Metrics Year-on-Year
- Average area value
- 461,429.00 £Increased by 13.94 %
- Est sale value
- 1,229,911.20 £Increased by 13.58 %
- Average area rental value
- 1,822.00 £/moIncreased by 0.77 %
- Est letting value
- 4,456.20 £/moUnchanged by 0.00 %
- Est rental Yield
- 4.74 %Decreased by 11.57 %
- Crime Rate
- 4.00 %Unchanged by 0.00 %
from 404,961.00 £
from 1,082,856.60 £
from 1,808.00 £/mo
from 4,456.20 £/mo
from 5.36 %
from 4.00 %
Agent Activity
Barnard Marcus created the listing.
Nearby Schools
| Name | Type | Ofsted | Distance |
|---|---|---|---|
| The Compton School | Academy Converter | Outstanding | 0.21 KM |
| Summerside Primary Academy | Academy Sponsor Led | Good | 0.38 KM |
| Woodhouse College | Academy 16-19 Converter | Outstanding | 0.51 KM |
| Wren Academy Finchley | Academy Sponsor Led | Outstanding | 0.54 KM |
| Dwight School London | Other Independent School | 0.81 KM |
Images
Nearby Streets
| Name | Average Price | Average Sqft | Distance |
|---|---|---|---|
| Queen's Parade Close | £ 0 | 0 | 0.00 KM |
| Leadbeaters Close | £ 0 | 0 | 0.00 KM |
| Scrublands Path | £ 0 | 0 | 0.00 KM |
| Heatherdene Close | £ 0 | 0 | 0.00 KM |
| Lodge Path | £ 0 | 0 | 0.00 KM |
Nearby Transport
| Name | NLC | TLC | Distance |
|---|---|---|---|
| New Southgate | 6019 | NSG | 2.48 KM |
| Oakleigh Park | 6020 | OKL | 3.19 KM |
| New Barnet | 6018 | NBA | 4.49 KM |
| Bowes Park | 6027 | BOP | 4.91 KM |
| Alexandra Palace | 6025 | AAP | 5.09 KM |
Nearby Listings
| Address | Price | Type | Score | Distance |
|---|---|---|---|---|
| Summers Lane, London | £ 700,000 | BUY | 7 / 10 | 0.00 KM |
| Crescent Way, London | £ 600,000 | BUY | 7 / 10 | 0.08 KM |
| Crescent Way, London, N12 | £ 600,000 | BUY | 6 / 10 | 0.09 KM |
| Crescent way, London N12 | £ 400,000 | BUY | 6 / 10 | 0.09 KM |
| Garthway, London | £ 600,000 | BUY | 7 / 10 | 0.16 KM |
Nearby Properties
| Address | Price | Distance |
|---|---|---|
| 155 Summers Lane | £ 700,000 | 0.00 KM |
| 147 Summers Lane | £ 512,500 | 0.00 KM |
| 135 Summers Lane | £ 280,000 | 0.00 KM |
| 115 Summers Lane | £ 247,000 | 0.00 KM |
| 153 Summers Lane | £ 603,000 | 0.00 KM |