Kallars says ..
Don't miss this chain-free Semi Detached Freehold Building offering a 1-bed apartment on lower ground and commercial space above with separate entrances. Prime location, Freehold, and User Class E.
Property Oracle says ..
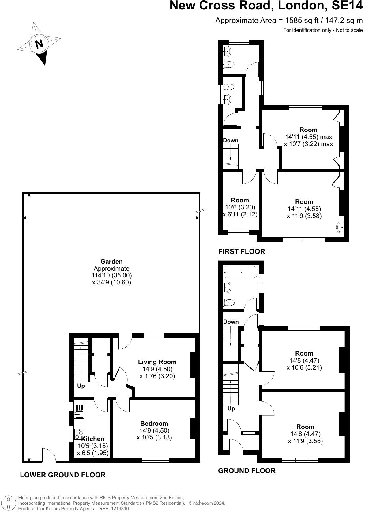
This property in New Cross, London, presents a mixed bag. It’s a semi-detached building situated on New Cross Road, offering convenient access to public transport, schools, and local amenities. The exterior of the building appears to be in good condition; however, the interior photos show that the property requires significant updating. The lower ground floor and bathroom in particular are dated and in need of renovation. The upper-floor spaces appear more habitable, but still need work. The property includes a garden but it is currently overgrown and requires considerable attention to become a usable space. While the property’s location and inclusion of commercial space contribute to its value, the necessary renovations and the need for landscaping work, along with limited plot size, might impact the overall desirability for some buyers. The asking price is high compared to the listed properties, making it prudent for potential buyers to factor in potential renovation costs when assessing the value proposition. A thorough survey is advisable to fully understand the condition and cost implications of the necessary works.
Therefore, we give this property 5 / 10. *Disclaimer: This is our option and does constitute a recommendation or financial advice. Do your own research. *
- Price
- 6
- Condition
- 4
- Location
- 7
- Land
- 3
- Bedrooms
- 1
- Bathrooms
- 1
- Sqft (est)
- 1,584.45
The heatmap indicates the level of crime in the area. The color of the heatmap indicates the crime severity and recency.
Metrics Year-on-Year
- Average area value
- 479,495.00 £Increased by 10.34 %
- Est sale value
- 1,004,541.30 £Increased by 1.28 %
- Average area rental value
- 2,475.00 £/moIncreased by 16.09 %
- Est letting value
- 4,753.35 £/moUnchanged by 0.00 %
- Est rental Yield
- 6.19 %Increased by 5.09 %
- Crime Rate
- 11.00 %Unchanged by 0.00 %
Agent Activity
Kallars created the listing.
Nearby Schools
| Name | Type | Ofsted | Distance |
|---|---|---|---|
| Addey And Stanhope School | Voluntary Aided School | Good | 0.37 KM |
| Goldsmiths College, University Of London | Higher Education Institutions | 0.47 KM | |
| Lucas Vale Primary School | Community School | Requires improvement | 0.56 KM |
| Myatt Garden Primary School | Community School | Good | 0.59 KM |
| Deptford Green School | Community School | Requires improvement | 0.64 KM |
Images
Nearby Streets
| Name | Average Price | Average Sqft | Distance |
|---|---|---|---|
| New Cross Road | £ 0 | 0 | 0.00 KM |
| Mornington Road | £ 313,333 | 0 | 0.00 KM |
| Pagnell Street | £ 0 | 0 | 0.00 KM |
| Valley Road | £ 637,500 | 0 | 0.00 KM |
| Payne Street | £ 450,000 | 0 | 0.00 KM |
Nearby Transport
| Name | NLC | TLC | Distance |
|---|---|---|---|
| Deptford | 5145 | DEP | 0.68 KM |
| New Cross Gate | 5345 | NXG | 0.99 KM |
| St Johns | 5059 | SAJ | 1.19 KM |
| Brockley | 5404 | BCY | 1.39 KM |
| Greenwich | 5146 | GNW | 2.02 KM |
Nearby Listings
| Address | Price | Type | Score | Distance |
|---|---|---|---|---|
| New Cross Road, SE14 | £ 800,000 | BUY | 5 / 10 | 0.00 KM |
| New Cross Road, SE14 | £ 300,000 | BUY | 5 / 10 | 0.03 KM |
| New Cross Road, London | £ 400,000 | BUY | 6 / 10 | 0.04 KM |
| New Cross Road, London | £ 350,000 | BUY | Unknown | 0.04 KM |
| New Cross Road, London, SE14 | £ 325,000 | BUY | 7 / 10 | 0.07 KM |
Nearby Properties
| Address | Price | Distance |
|---|---|---|
| 412b New Cross Road | £ 380,000 | 0.08 KM |
| 396b New Cross Road | £ 205,000 | 0.08 KM |
| 396a New Cross Road | £ 350,000 | 0.08 KM |
| 400 New Cross Road | £ 400,000 | 0.10 KM |
| 422b New Cross Road | £ 190,000 | 0.10 KM |