MADE says ..
A well presented TWO BEDROOM APARTMENT situated in a prime position, ADJACENT TO THE BEACH. Being within walking distance of local eateries, bars, artisan shops and galleries it’s enviably located for life at the coast, however if you fancy venturing further afield St. Leonards mainline railway s...
Property Oracle says ..
This two-bedroom apartment in St Leonards-on-Sea presents a compelling opportunity for buyers seeking coastal living. Located on Eversfield Place, the property benefits from a fantastic location close to the beach and a variety of local amenities. The nearby St. Leonards Warrior Square railway station provides convenient access to other parts of the UK. Several good schools are within a reasonable distance, making it a potentially attractive option for families.
The apartment itself offers a decent amount of space for a two-bedroom property, but the interior photos suggest that some modernisation is needed. The kitchen and bathroom appear dated, and a refresh would likely enhance the property’s value and appeal. While the property is structurally sound, potential buyers should factor in the cost of renovations into their budget. The lack of a private garden or outdoor space is a notable limitation for those seeking such features. The price point, however, seems competitive given the location and size of the apartment. Overall, this property is a viable option for those seeking a seaside apartment in a convenient location, but prospective buyers should be prepared for some modernisation work.
Therefore, we give this property 5 / 10. *Disclaimer: This is our option and does constitute a recommendation or financial advice. Do your own research. *
- Price
- 7
- Condition
- 5
- Location
- 8
- Land
- 1
- Bedrooms
- 2
- Bathrooms
- 1
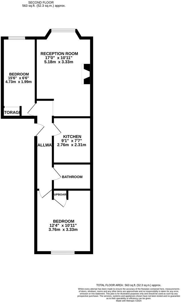
- Sqft (est)
- 562.95
The heatmap indicates the level of crime in the area. The color of the heatmap indicates the crime severity and recency.
Metrics Year-on-Year
- Average area value
- 225,325.00 £Decreased by 9.99 %
- Est sale value
- 222,365.25 £Increased by 32.55 %
- Average area rental value
- 1,094.00 £/moIncreased by 7.25 %
- Est letting value
- 562.95 £/moUnchanged by 0.00 %
- Est rental Yield
- 5.83 %Increased by 19.22 %
- Crime Rate
- 10.00 %Unchanged by 0.00 %
Agent Activity
MADE created the listing.
Nearby Schools
| Name | Type | Ofsted | Distance |
|---|---|---|---|
| St Mary Star Of The Sea Catholic Primary School | Voluntary Aided School | Good | 0.54 KM |
| Lansdowne Children'S Centre | Secure Units | 0.71 KM | |
| St Leonards Children'S Centre | Children's Centre | 0.84 KM | |
| St Paul'S Church Of England Academy | Academy Converter | Good | 1.12 KM |
| Christ Church Cofe Primary And Nursery Academy | Academy Converter | Good | 1.32 KM |
Images
Nearby Streets
| Name | Average Price | Average Sqft | Distance |
|---|---|---|---|
| The Cloisters | £ 0 | 0 | 0.00 KM |
| Saint John's Road | £ 0 | 0 | 0.00 KM |
| Bottle Alley | £ 67,500 | 0 | 0.00 KM |
| Station Approach | £ 430,000 | 0 | 0.00 KM |
| The Uplands | £ 400,000 | 0 | 0.00 KM |
Nearby Transport
| Name | NLC | TLC | Distance |
|---|---|---|---|
| St Leonards Warrior Square | 5239 | SLQ | 0.67 KM |
| Hastings | 5219 | HGS | 1.38 KM |
| West St Leonards | 5242 | WLD | 2.83 KM |
| Ore | 5021 | ORE | 3.30 KM |
| Three Oaks | 5028 | TOK | 7.54 KM |
Nearby Listings
| Address | Price | Type | Score | Distance |
|---|---|---|---|---|
| Eversfield Place, St. Leonards-on-Sea, East Sussex, TN37 | £ 100,000 | BUY | 6 / 10 | 0.01 KM |
| Eversfield Place, St. Leonards-on-Sea, East Sussex, TN37 | £ 275,000 | BUY | 7 / 10 | 0.03 KM |
| St. Margarets Road, St. Leonards-On-Sea | £ 150,000 | BUY | Unknown | 0.03 KM |
| Eversfield Place, St. Leonards-On-Sea | £ 130,000 | BUY | 6 / 10 | 0.04 KM |
| Eversfield Place, St. Leonards-On-Sea | £ 220,000 | BUY | 6 / 10 | 0.05 KM |
Nearby Properties
| Address | Price | Distance |
|---|---|---|
| 25 Eversfield Place | £ 205,500 | 0.03 KM |
| 25a Eversfield Place | £ 155,000 | 0.03 KM |
| 6 Eversfield Place | £ 56,000 | 0.03 KM |
| 24 Eversfield Place | £ 100,000 | 0.03 KM |
| 26a Eversfield Place | £ 75,000 | 0.03 KM |