Alexandra Road, Englefield Green, Egham, Surrey, TW20
By Nevin and Wells Residential
£ 425,000
Reviews
3 out of 5 stars
Nevin and Wells Residential says ..
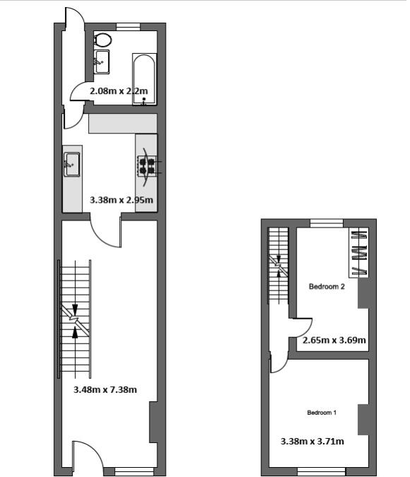
A beautifully presented two bedroom character cottage, ideally positioned in the heart of Englefield Green Village. Just a short walk from local shops, restaurants, the village green and the stunning Windsor Great Park. This home combines period charm with modern living. Accommodation co...
Property Oracle says ..
This is a two-bedroom cottage in Englefield Green, Surrey. The property is in a good location, close to schools and transportation. The condition of the property is generally good, with a modern kitchen and bathroom, but some areas could use updating. The property has a garden with a shed. The asking price of £425,000 seems reasonable given the location, condition, and size of the property.
Therefore, we give this property 6 / 10. *Disclaimer: This is our option and does constitute a recommendation or financial advice. Do your own research. *
- Price
- 7
- Condition
- 7
- Location
- 7
- Land
- 6
- Bedrooms
- 2
- Bathrooms
- 1
- Sqft (est)
- 673.27
The heatmap indicates the level of crime in the area. The color of the heatmap indicates the crime severity and recency.
Metrics Year-on-Year
- Average area value
- 497,268.00 £Increased by 4.06 %
- Est sale value
- 339,328.08 £Increased by 51.81 %
- Average area rental value
- 2,350.00 £/moIncreased by 60.19 %
- Est letting value
- 1,346.54 £/moIncreased by 100.00 %
- Est rental Yield
- 5.67 %Increased by 54.08 %
- Crime Rate
- 33.00 %Unchanged by 0.00 %
Agent Activity
Nevin and Wells Residential created the listing.
Nearby Schools
| Name | Type | Ofsted | Distance |
|---|---|---|---|
| St Jude'S Church Of England Junior School | Voluntary Aided School | Good | 0.29 KM |
| St Cuthbert'S Catholic Primary School, Englefield Green | Voluntary Aided School | Outstanding | 0.40 KM |
| St Jude'S Cofe Infant School | Voluntary Aided School | 0.47 KM | |
| St Peter'S Centre | Pupil Referral Unit | Outstanding | 0.54 KM |
| Royal Holloway And Bedford New College | Higher Education Institutions | 0.54 KM |
Images
Nearby Streets
| Name | Average Price | Average Sqft | Distance |
|---|---|---|---|
| Clarence Street | £ 0 | 0 | 0.00 KM |
| Clarence Street | £ 0 | 0 | 0.00 KM |
| The Green | £ 0 | 0 | 0.00 KM |
| Magna Carta Park | £ 0 | 0 | 0.00 KM |
| Kinburn Drive | £ 0 | 0 | 0.00 KM |
Nearby Transport
| Name | NLC | TLC | Distance |
|---|---|---|---|
| Egham | 5669 | EGH | 2.79 KM |
| Virginia Water | 5676 | VIR | 3.04 KM |
| Wraysbury | 5673 | WRY | 4.71 KM |
| Sunnymeads | 5675 | SNY | 4.96 KM |
| Longcross | 5674 | LNG | 5.34 KM |
Nearby Listings
| Address | Price | Type | Score | Distance |
|---|---|---|---|---|
| Alexandra Road, Englefield Green, Egham, Surrey, TW20 | £ 425,000 | BUY | 6 / 10 | 0.00 KM |
| Englefield Green, Surrey, TW20 | £ 475,000 | BUY | 7 / 10 | 0.06 KM |
| Alexandra Road, Englefield Green, Egham, Surrey, TW20 | £ 400,000 | BUY | 7 / 10 | 0.06 KM |
| 11 Alexandra Road, Englefield Green, Surrey, TW20 0RP | £ 500,000 | BUY | 6 / 10 | 0.08 KM |
| Greenacre Court, Englefield Green, Egham | £ 235,000 | BUY | 7 / 10 | 0.09 KM |
Nearby Properties
| Address | Price | Distance |
|---|---|---|
| 49 Alexandra Road | £ 325,000 | 0.03 KM |
| 46 Alexandra Road | £ 650,000 | 0.03 KM |
| 41 Alexandra Road | £ 350,000 | 0.03 KM |
| 52 Alexandra Road | £ 330,000 | 0.03 KM |
| 59 Alexandra Road | £ 275,000 | 0.03 KM |