42 Bayston Road, Stoke Newington, London, N16
By Allsop
£ 975,000
Reviews
3 out of 5 stars
Allsop says ..
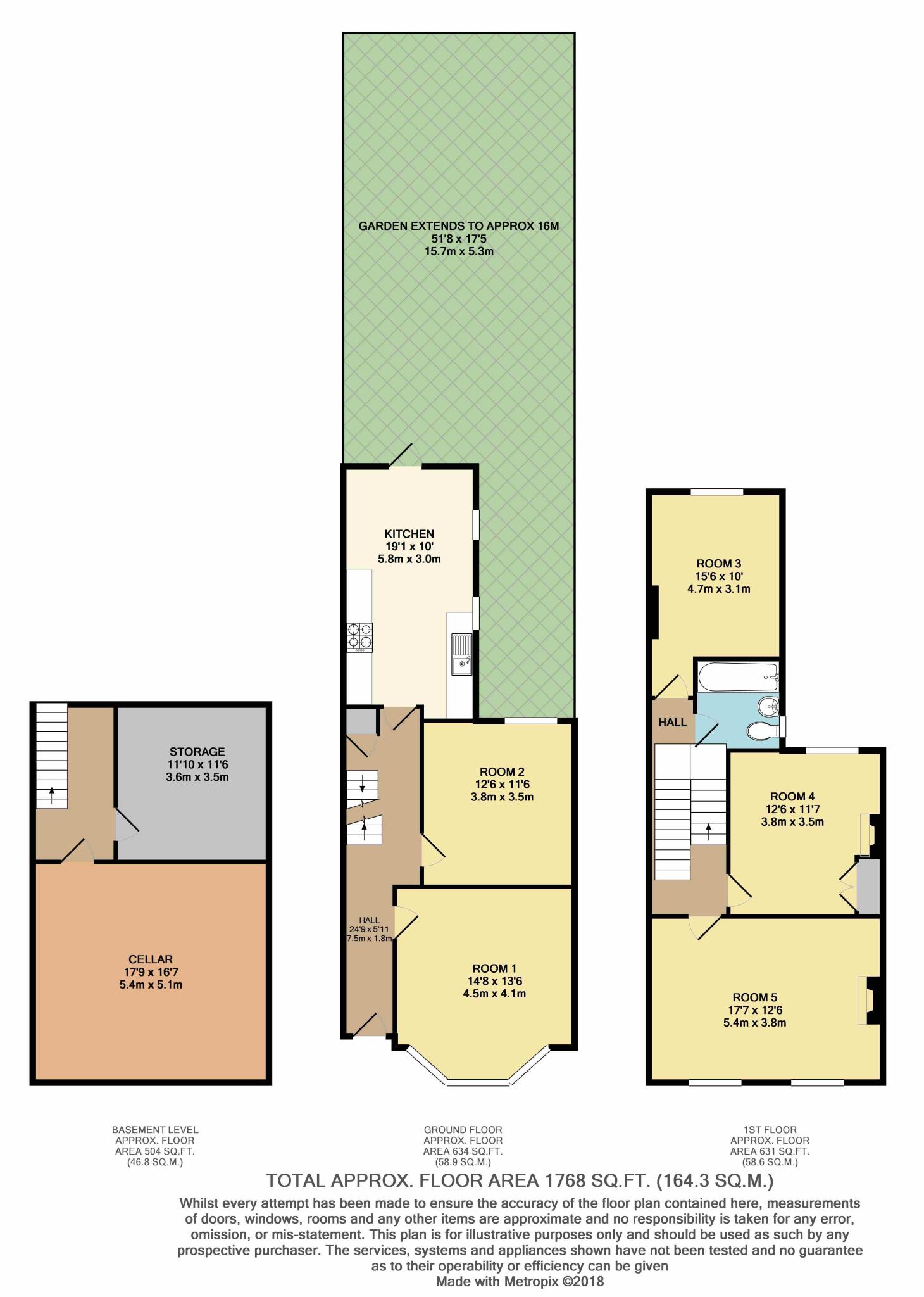
Auction date - 28/01/2026 & 29/01/2026. Basement - Cellar Area, Storage, Ground Floor -Two Reception Rooms, Kitchen, First Floor - Three Bedrooms, Bathroom/WC, Rear Garden , GIA approximately 164.3 sq m (1,768 sq ft), The open spaces of Stoke Newington Common and Clissold Park are within reac...
Property Oracle says ..
This is a three-bedroom terraced house located on Bayston Road in Stoke Newington, London. The property offers a substantial 1,768.51 sqft of living space and includes a garden. While the location is desirable, with good access to transport and schools, the property requires renovation. The house retains some traditional features but would benefit from modernisation to enhance its appeal and value. The asking price of £975,000 reflects the property’s potential and location, but prospective buyers should consider the cost of necessary upgrades.
Therefore, we give this property 6 / 10. *Disclaimer: This is our option and does constitute a recommendation or financial advice. Do your own research. *
- Price
- 6
- Condition
- 4
- Location
- 8
- Land
- 7
- Bedrooms
- 3
- Bathrooms
- 1
- Sqft (est)
- 1,768.51
The heatmap indicates the level of crime in the area. The color of the heatmap indicates the crime severity and recency.
Metrics Year-on-Year
- Average area value
- 996,818.00 £Increased by 20.60 %
- Est sale value
- 1,515,613.07 £Increased by 149.85 %
- Average area rental value
- 2,571.00 £/moIncreased by 1.70 %
- Est letting value
- 3,537.02 £/moIncreased by 100.00 %
- Est rental Yield
- 3.10 %Decreased by 15.53 %
- Crime Rate
- 2.00 %Unchanged by 0.00 %
Agent Activity
Allsop created the listing.
Nearby Schools
| Name | Type | Ofsted | Distance |
|---|---|---|---|
| Linden Children'S Centre | Children's Centre | 0.27 KM | |
| William Patten Primary School | Community School | Outstanding | 0.49 KM |
| Shacklewell Primary School | Community School | Outstanding | 0.64 KM |
| Tawhid Boys School, Tawhid Educational Trust | Other Independent School | Good | 0.64 KM |
| Benthal Primary School | Community School | Good | 0.72 KM |
Images
Nearby Streets
| Name | Average Price | Average Sqft | Distance |
|---|---|---|---|
| Sanford Lane | £ 0 | 0 | 0.00 KM |
| Sandford Walk | £ 0 | 0 | 0.00 KM |
| Scoble Place | £ 285,000 | 0 | 0.00 KM |
| Station Approach | £ 0 | 0 | 0.00 KM |
| Clapton Way | £ 0 | 0 | 0.00 KM |
Nearby Transport
| Name | NLC | TLC | Distance |
|---|---|---|---|
| Rectory Road | 6967 | REC | 0.38 KM |
| Stoke Newington | 6934 | SKW | 0.72 KM |
| Dalston Kingsland | 1429 | DLK | 1.27 KM |
| Dalston Junction | 1443 | DLJ | 1.47 KM |
| Hackney Downs | 6867 | HAC | 1.65 KM |
Nearby Listings
| Address | Price | Type | Score | Distance |
|---|---|---|---|---|
| 42 Bayston Road, Stoke Newington, London, N16 | £ 975,000 | BUY | 6 / 10 | 0.00 KM |
| Bayston Road, London, N16 | £ 500,000 | BUY | 8 / 10 | 0.04 KM |
| Bayston Road, London, N16 | £ 1,500,000 | BUY | 6 / 10 | 0.09 KM |
| Flat C, 57 Darville Road, Stoke Newington, London, N16 | £ 170,000 | BUY | 5 / 10 | 0.09 KM |
| Tyssen Road, London, N16 | £ 1,300,000 | BUY | 7 / 10 | 0.11 KM |
Nearby Properties
| Address | Price | Distance |
|---|---|---|
| 38 Bayston Road | £ 550,000 | 0.02 KM |
| 36 Bayston Road | £ 1,427,500 | 0.02 KM |
| 18 Bayston Road | £ 390,000 | 0.02 KM |
| 64 Bayston Road | £ 560,000 | 0.02 KM |
| 84 Bayston Road | £ 711,000 | 0.02 KM |