Bannister Close, Slough
Property Hub logo

Bannister Close, Slough

By Property Hub

£ 1,200,000

Reviews

3 out of 5 stars

Property Hub says ..

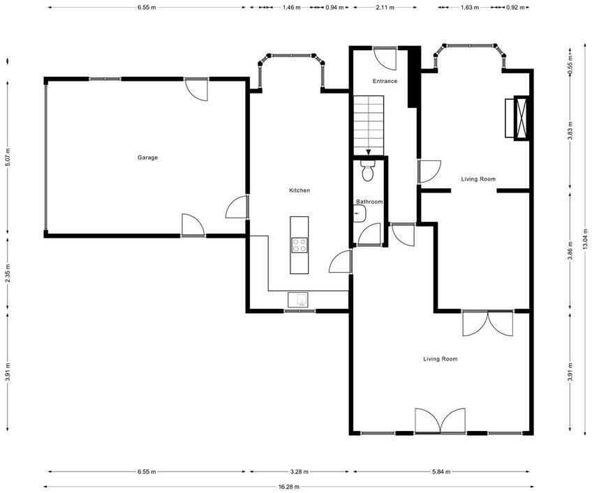
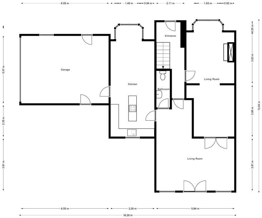
Property located in Bannister Close, Slough

Property Oracle says ..

The property is located in a desirable area of Slough, close to good schools and transport links. The property itself appears to be in good condition, although some minor cosmetic updates might enhance its appeal. The presence of a garden is a positive feature. However, the list price of £1,200,000 appears high considering the average price per square foot in the area. Further investigation into comparable properties in the immediate vicinity would be beneficial to determine a more accurate valuation.

Therefore, we give this property 7 / 10. *Disclaimer: This is our option and does constitute a recommendation or financial advice. Do your own research. *

Price
4
Condition
8
Location
9
Land
7
Bedrooms
6
Bathrooms
3
Sqft (est)
1,016.87

The heatmap indicates the level of crime in the area. The color of the heatmap indicates the crime severity and recency.

Metrics Year-on-Year

Average area value
266,250.00 £
Decreased by 18.69 %
from 327,468.00 £
Est sale value
285,740.47 £
Increased by 0.36 %
from 284,723.60 £
Average area rental value
1,013.00 £/mo
Increased by 3.58 %
from 978.00 £/mo
Est letting value
1,016.87 £/mo
from 0.00 £/mo
Est rental Yield
4.57 %
Increased by 27.65 %
from 3.58 %
Crime Rate
3.00 %
Unchanged by 0.00 %
from 3.00 %

Agent Activity

  • Property Hub created the listing.

Nearby Schools

NameTypeOfstedDistance
The Langley Academy PrimaryFree SchoolsOutstanding0.34 KM
The Langley AcademyAcademy Sponsor LedGood0.41 KM
Ryvers SchoolAcademy ConverterGood0.63 KM
Langley Grammar SchoolAcademy Converter0.91 KM
Romsey Close Children'S CentreChildren's Centre1.11 KM

Images

Bannister close (... Bannister close (... Bannister close (... Bannister close (... Bannister close (... Bannister close (... Bannister close (... Bannister close (... Bannister close (... Bannister close (... Bannister close (... Bannister close (... Bannister close (... Bannister close (... Bannister close (... Bannister close (... f4714d62faf2b1d25... f4714d62faf2b1d25...

Nearby Streets

NameAverage PriceAverage SqftDistance
Langley Road £ 000.00 KM
Jackson Close £ 000.00 KM
The Pines £ 260,00000.00 KM
Orchard Way £ 195,00000.00 KM
Middle Green Road £ 2,000,00000.00 KM

Nearby Transport

NameNLCTLCDistance
Langley3171LNY1.63 KM
Datchet5668DAT3.63 KM
Slough3172SLO3.94 KM
Sunnymeads5675SNY4.02 KM
Iver3170IVR5.50 KM

Nearby Listings

AddressPriceTypeScoreDistance
Bannister Close, Slough £ 1,200,000BUY7 / 100.00 KM
Langley, Berkshire £ 575,000BUYUnknown0.04 KM
Hillary Road, Langley, SL3 £ 725,000BUY7 / 100.10 KM
Bannister Close, Langley, SL3 £ 765,000BUY6 / 100.11 KM
Langley Road, Langley, SL3 £ 800,000BUY5 / 100.13 KM

Nearby Properties

AddressPriceDistance
21 Bannister Close £ 284,5000.00 KM
1 Bannister Close £ 287,0000.00 KM
16 Bannister Close £ 360,0000.00 KM
28 Bannister Close £ 518,0000.00 KM
40 Bannister Close £ 495,0000.00 KM