The Strand, Starcross, EX6
By Fraser & Wheeler
£ 475,000
Reviews
3 out of 5 stars
Fraser & Wheeler says ..
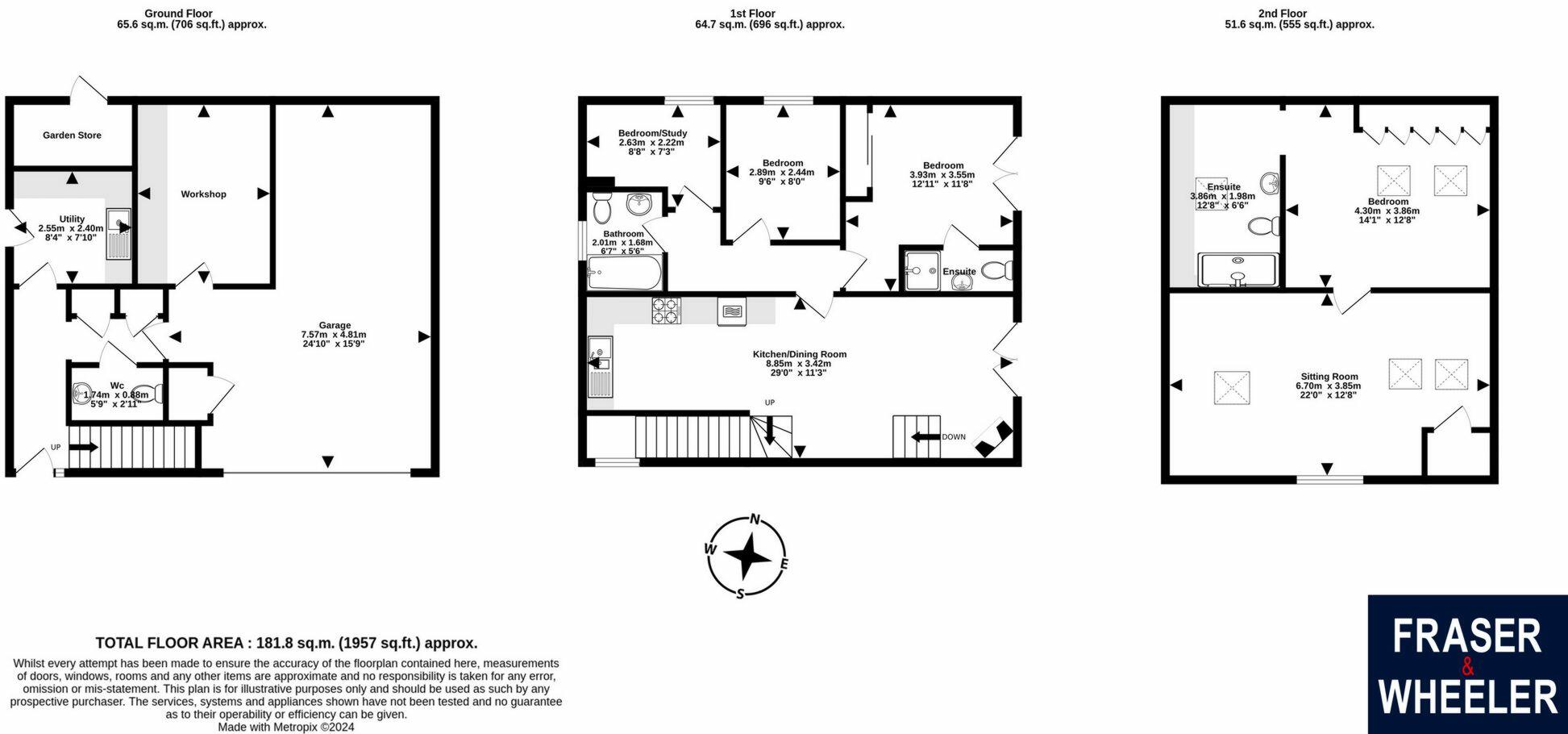
NO ONWARD CHAIN. A unique opportunity to purchase this 4 bedroom detached house of quality with accommodation arranged over 3 floors. The property is situated in a tucked away level position with the advantage of block paved parking behind an electric gate, large integral garage, luxury kitchen/d...
Property Oracle says ..
This four-bedroom, two-bathroom detached house in Starcross, Devon, presents as a well-maintained, modern property. The interior finishes are of a high standard, showcasing a contemporary design throughout. The photographs reveal a spacious open-plan living area, a modern kitchen, and well-appointed bedrooms and bathrooms. The inclusion of a garden and the proximity to the railway station are valuable features, enhancing its appeal to a range of buyers. The lack of specific plot size details and the absence of accurate local average price per sqft data make a definitive statement on value challenging. However, judging from comparable properties, this listing is within a reasonable price range for the area. The property’s modern amenities, high-quality finish, and sought-after location in Starcross represent key strengths. Potential buyers should conduct thorough research into local comparable transactions and assess their individual needs and preferences.
Therefore, we give this property 7 / 10. *Disclaimer: This is our option and does constitute a recommendation or financial advice. Do your own research. *
- Price
- 7
- Condition
- 9
- Location
- 8
- Land
- 6
- Bedrooms
- 4
- Bathrooms
- 2
- Sqft (est)
- 1,956.88
The heatmap indicates the level of crime in the area. The color of the heatmap indicates the crime severity and recency.
Metrics Year-on-Year
- Average area value
- 305,488.00 £Decreased by 9.52 %
- Est sale value
- 688,821.76 £Increased by 33.84 %
- Average area rental value
- 1,004.00 £/moDecreased by 1.08 %
- Est letting value
- 1,956.88 £/mo
- Est rental Yield
- 3.94 %Increased by 9.14 %
- Crime Rate
- 88.00 %Unchanged by 0.00 %
Agent Activity
Fraser & Wheeler created the listing.
Nearby Schools
| Name | Type | Ofsted | Distance |
|---|---|---|---|
| Starcross Primary School | Academy Converter | 0.41 KM | |
| Cockwood Primary School | Academy Converter | 1.43 KM | |
| Kenton Primary School | Academy Converter | 3.12 KM | |
| Lympstone Church Of England Primary School | Voluntary Controlled School | Requires improvement | 3.33 KM |
| The Beacon Church Of England (Va) Primary School | Voluntary Aided School | Good | 4.13 KM |
Images
Nearby Streets
| Name | Average Price | Average Sqft | Distance |
|---|---|---|---|
| Bonhay Close | £ 0 | 0 | 0.00 KM |
| Well Street | £ 0 | 0 | 0.00 KM |
| Bishops Close | £ 0 | 0 | 0.00 KM |
| Generals Lane | £ 0 | 0 | 0.00 KM |
| Exeter Road | £ 0 | 0 | 0.00 KM |
Nearby Transport
| Name | NLC | TLC | Distance |
|---|---|---|---|
| Starcross | 3413 | SCS | 0.15 KM |
| Lympstone Village | 5761 | LYM | 2.91 KM |
| Dawlish Warren | 3409 | DWW | 3.39 KM |
| Exmouth | 5756 | EXM | 3.80 KM |
| Lympstone Commando | 5762 | LYC | 3.82 KM |
Nearby Listings
| Address | Price | Type | Score | Distance |
|---|---|---|---|---|
| The Strand, Starcross, EX6 | £ 300,000 | BUY | 7 / 10 | 0.00 KM |
| The Strand, Starcross, EX6 | £ 450,000 | BUY | 8 / 10 | 0.00 KM |
| The Strand, Starcross, EX6 | £ 900,000 | BUY | Unknown | 0.00 KM |
| The Strand, Starcross, Exeter, Devon, EX6 | £ 134,000 | BUY | 6 / 10 | 0.00 KM |
| The Strand, Starcross, EX6 | £ 475,000 | BUY | 7 / 10 | 0.00 KM |
Nearby Properties
| Address | Price | Distance |
|---|---|---|
| Denby | £ 163,000 | 0.01 KM |
| Sea View | £ 125,000 | 0.01 KM |
| Rothesay | £ 350,000 | 0.01 KM |
| Cowley Cottage | £ 300,000 | 0.01 KM |
| The Red House | £ 160,000 | 0.01 KM |