Cariad Property says ..
A great starter home in the heart of Newbridge. Sold with no chain, ready to make your own. Three bedrooms and rear garden. Great road and rail links to surrounding areas. Don't miss out.
Property Oracle says ..
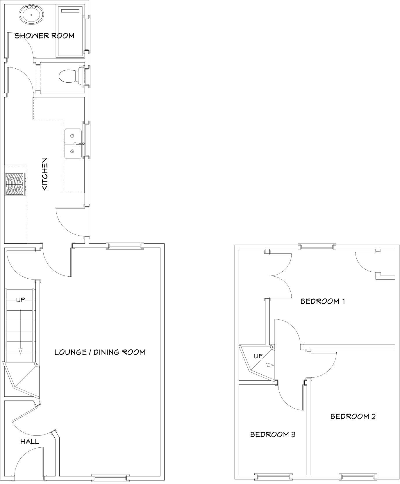
This three-bedroom terraced house in Newbridge, Caerphilly is listed at £135,000. The property benefits from a rear garden, and its location offers convenient access to local amenities and transport links, including Newbridge train station. While the provided images show the property is habitable, some cosmetic upgrades and repairs may be needed to enhance its overall condition. The price appears to be in line with other similar properties in the area, although a definitive price-per-square-foot analysis cannot be performed due to missing data in nearby listings.
Therefore, we give this property 6 / 10. *Disclaimer: This is our option and does constitute a recommendation or financial advice. Do your own research. *
- Price
- 7
- Condition
- 6
- Location
- 7
- Land
- 4
- Bedrooms
- 3
- Bathrooms
- 1
- Sqft (est)
- 770.00
The heatmap indicates the level of crime in the area. The color of the heatmap indicates the crime severity and recency.
Metrics Year-on-Year
- Average area value
- 318,211.00 £Decreased by 21.80 %
- Est sale value
- 217,140.00 £Decreased by 21.45 %
- Average area rental value
- 2,110.00 £/moIncreased by 60.46 %
- Est letting value
- 770.00 £/moUnchanged by 0.00 %
- Est rental Yield
- 7.96 %Increased by 105.15 %
- Crime Rate
- 31.00 %Unchanged by 0.00 %
Agent Activity
Cariad Property marked this listing as sold.
Cariad Property created the listing.
Nearby Schools
| Name | Type | Ofsted | Distance |
|---|---|---|---|
| Newbridge School | Welsh Establishment | 0.44 KM | |
| Tynewydd Primary School | Welsh Establishment | 0.84 KM | |
| Pantside Primary School | Welsh Establishment | 1.48 KM | |
| Crumlin High Level Primary School | Welsh Establishment | 1.53 KM | |
| Abercarn Primary School | Welsh Establishment | 1.62 KM |
Images
Nearby Streets
| Name | Average Price | Average Sqft | Distance |
|---|---|---|---|
| Victoria Terrace | £ 0 | 0 | 0.00 KM |
| Ty-Llwydd Place | £ 0 | 0 | 0.00 KM |
| North Road | £ 295,000 | 0 | 0.00 KM |
| Church Road | £ 0 | 0 | 0.00 KM |
| Yewtree Road | £ 0 | 0 | 0.00 KM |
Nearby Transport
| Name | NLC | TLC | Distance |
|---|---|---|---|
| Newbridge | 9919 | NBE | 0.36 KM |
| Llanhilleth | 9916 | LTH | 4.26 KM |
| Crosskeys | 9902 | CKY | 5.12 KM |
| Risca And Pontymister | 9920 | RCA | 8.62 KM |
| Hengoed | 4028 | HNG | 8.95 KM |
Nearby Listings
| Address | Price | Type | Score | Distance |
|---|---|---|---|---|
| Torlais Street, NP11 | £ 135,000 | BUY | 6 / 10 | 0.00 KM |
| Torlais Street, Newbridge, Caerphilly | £ 119,950 | BUY | 6 / 10 | 0.01 KM |
| Torlais Street, Newbridge | £ 80,000 | BUY | 5 / 10 | 0.02 KM |
| Blaen Bloddau Street, Newbridge, Newport. NP11 | £ 135,000 | BUY | 6 / 10 | 0.05 KM |
| Blaen Blodau Street, Newbridge, NP11 | £ 137,000 | BUY | 6 / 10 | 0.06 KM |
Nearby Properties
| Address | Price | Distance |
|---|---|---|
| 16 Torlais Street | £ 124,000 | 0.00 KM |
| 20 Torlais Street | £ 90,000 | 0.00 KM |
| 19 Torlais Street | £ 111,000 | 0.00 KM |
| 23 Torlais Street | £ 107,500 | 0.00 KM |
| 21 Torlais Street | £ 119,000 | 0.00 KM |