Julie Philpot says ..
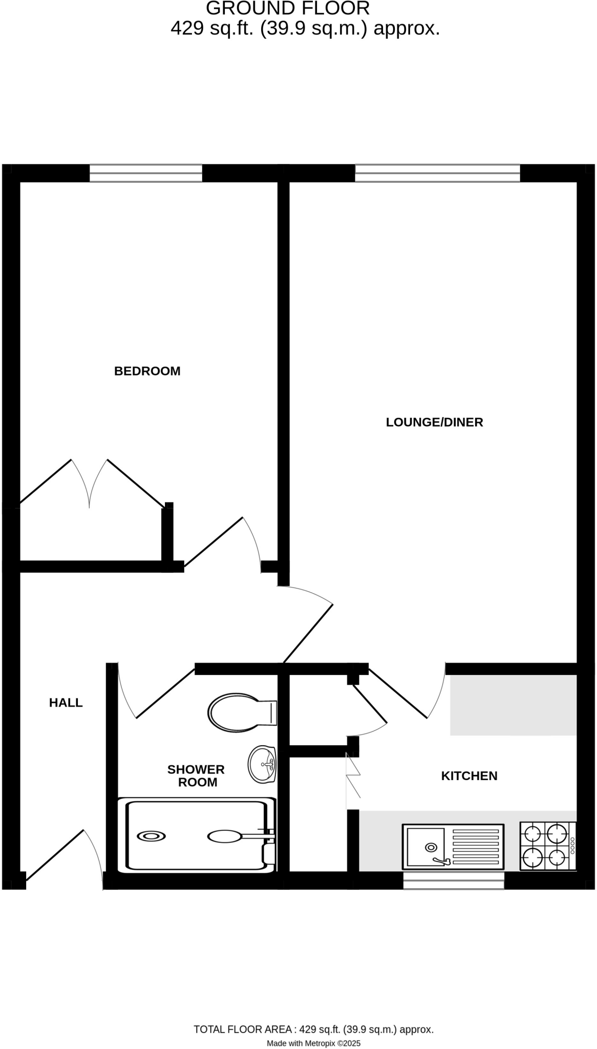
A great opportunity for First Time Buyers, those who may be wanting to downsize or an investment buyer. This is a lovely ground floor apartment with a double bedroom, gas central heating, double glazing, communal garden and the added advantage of a garage plus an allocated car parking space. The ...
Property Oracle says ..
This one-bedroom apartment in Kenilworth, located on School Lane, presents a potentially appealing option for a single person or couple seeking a conveniently situated property. The proximity to Kenilworth train station and several well-regarded schools is a significant advantage. The interior appears to have been recently renovated, suggesting modern facilities and a move-in ready status. The images show a functional kitchen and bathroom, and a spacious living area. However, the lack of outdoor space beyond a limited paved area is a notable drawback. The building itself is a standard brick apartment block without any significant external features. The price point is competitive within the context of Kenilworth’s market but is not exceptionally low when considering that it’s a relatively small apartment. Potential buyers should weigh the benefits of the location and condition against the limited space and lack of outdoor areas.
Therefore, we give this property 5 / 10. *Disclaimer: This is our option and does constitute a recommendation or financial advice. Do your own research. *
- Price
- 7
- Condition
- 6
- Location
- 7
- Land
- 2
- Bedrooms
- 1
- Bathrooms
- 1
- Sqft (est)
- 429.48
The heatmap indicates the level of crime in the area. The color of the heatmap indicates the crime severity and recency.
Metrics Year-on-Year
- Average area value
- 450,680.00 £Increased by 2.66 %
- Est sale value
- 202,285.08 £Increased by 11.61 %
- Average area rental value
- 1,290.00 £/moIncreased by 8.77 %
- Est letting value
- 429.48 £/moUnchanged by 0.00 %
- Est rental Yield
- 3.43 %Increased by 5.86 %
- Crime Rate
- 4.00 %Unchanged by 0.00 %
Agent Activity
Julie Philpot created the listing.
Nearby Schools
| Name | Type | Ofsted | Distance |
|---|---|---|---|
| St Nicholas Cofe Primary School | Voluntary Controlled School | Good | 0.28 KM |
| Kenilworth Nursery School & Early Years Training Centre | Local Authority Nursery School | Outstanding | 0.72 KM |
| St Augustine'S Catholic Primary School | Voluntary Aided School | Good | 1.17 KM |
| Crackley Hall School | Other Independent School | 1.25 KM | |
| Thorns Community Infant School | Community School | Good | 1.30 KM |
Images
Nearby Streets
| Name | Average Price | Average Sqft | Distance |
|---|---|---|---|
| Fancott Drive | £ 457,500 | 0 | 0.00 KM |
| Glendale Avenue | £ 0 | 0 | 0.00 KM |
| Stoneleigh Avenue | £ 0 | 0 | 0.00 KM |
| Denemoor Court | £ 0 | 0 | 0.00 KM |
| Brooke Road | £ 750,000 | 0 | 0.00 KM |
Nearby Transport
| Name | NLC | TLC | Distance |
|---|---|---|---|
| Kenilworth | 7985 | KNW | 0.83 KM |
| Tile Hill | 1035 | THL | 5.60 KM |
| Canley | 1129 | CNL | 6.49 KM |
| Warwick | 4600 | WRW | 6.95 KM |
| Warwick Parkway | 8530 | WRP | 7.97 KM |
Nearby Listings
| Address | Price | Type | Score | Distance |
|---|---|---|---|---|
| School Lane, Kenilworth | £ 149,950 | BUY | 5 / 10 | 0.00 KM |
| School Lane, Kenilworth | £ 360,000 | BUY | 7 / 10 | 0.00 KM |
| School Lane, Kenilworth, Warwickshire, CV8 | £ 410,000 | BUY | 7 / 10 | 0.03 KM |
| Flat , Prescelly Court, School Lane, Kenilworth | £ 210,000 | BUY | 6 / 10 | 0.05 KM |
| Pepper Lane Mews, School Lane, Kenilworth | £ 380,000 | BUY | Unknown | 0.12 KM |
Nearby Properties
| Address | Price | Distance |
|---|---|---|
| 54 School Lane | £ 165,000 | 0.04 KM |
| 28 School Lane | £ 182,500 | 0.04 KM |
| 46 School Lane | £ 373,000 | 0.04 KM |
| 52 School Lane | £ 360,000 | 0.04 KM |
| 62 School Lane | £ 363,750 | 0.04 KM |