Burnmill Road, Market Harborough, LE16
By Fine & Country
£ 1,100,000
Reviews
4 out of 5 stars
Fine & Country says ..
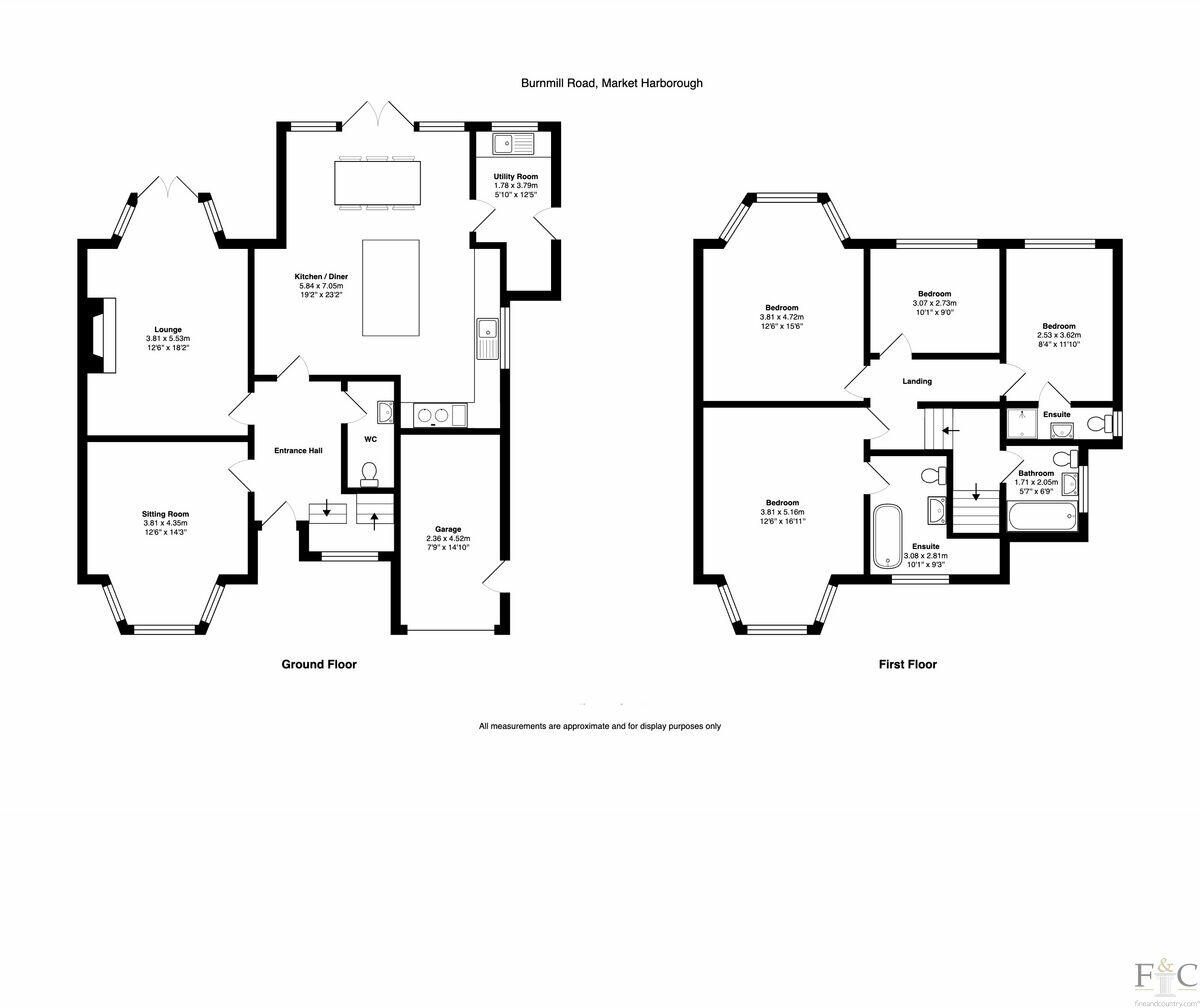
Open day by appointment on Friday 20th & Saturday 21st Sept for this stunning four-bedroom, three-bathroom detached home, located just a 10-minute walk from Market Harborough train station
Property Oracle says ..
This property is a 4 bedroom, 3 bathroom house located in Market Harborough, Leicestershire. The property is in excellent condition and has been recently renovated to a high standard. The images show a modern, well-maintained interior with a spacious kitchen, dining area, and multiple living spaces. The property also benefits from a large garden. The location is excellent, with good schools and transportation links nearby. The list price is high, but it reflects the property’s condition, location, and size. Given the average price per sqft in the area, this property is priced slightly above average, but the quality of the renovation and the large garden justify the higher price.
Therefore, we give this property 8 / 10. *Disclaimer: This is our option and does constitute a recommendation or financial advice. Do your own research. *
- Price
- 7
- Condition
- 9
- Location
- 9
- Land
- 8
- Bedrooms
- 4
- Bathrooms
- 3
- Sqft (est)
- 1,651.18
The heatmap indicates the level of crime in the area. The color of the heatmap indicates the crime severity and recency.
Metrics Year-on-Year
- Average area value
- 593,306.00 £Increased by 37.78 %
- Est sale value
- 619,192.50 £Increased by 28.87 %
- Average area rental value
- 1,150.00 £/moDecreased by 17.56 %
- Est letting value
- 0.00 £/mo
- Est rental Yield
- 2.33 %Decreased by 40.10 %
- Crime Rate
- 10.00 %Unchanged by 0.00 %
Agent Activity
Fine & Country created the listing.
Nearby Schools
| Name | Type | Ofsted | Distance |
|---|---|---|---|
| Brooke House College | Other Independent School | 0.10 KM | |
| Market Harborough Church Of England Academy | Academy Converter | Good | 0.46 KM |
| The Robert Smyth Academy | Academy Converter | Good | 0.48 KM |
| Market Harborough Sure Start Children'S Centre | Children's Centre | 0.57 KM | |
| St Joseph'S Catholic Voluntary Academy | Academy Converter | Good | 0.58 KM |
Images
Nearby Streets
| Name | Average Price | Average Sqft | Distance |
|---|---|---|---|
| Bowden Lane | £ 37,500 | 0 | 0.00 KM |
| Holly Close | £ 260,000 | 0 | 0.00 KM |
| Ashfield Road | £ 500,000 | 0 | 0.00 KM |
| The Oval | £ 337,500 | 0 | 0.00 KM |
| Shropshire Close | £ 0 | 0 | 0.00 KM |
Nearby Transport
| Name | NLC | TLC | Distance |
|---|---|---|---|
| Market Harborough | 1909 | MHR | 1.61 KM |
Nearby Listings
| Address | Price | Type | Score | Distance |
|---|---|---|---|---|
| Burnmill Road, Market Harborough, LE16 | £ 1,100,000 | BUY | 8 / 10 | 0.00 KM |
| Matthew Clarke House, Market Harborough | £ 150,000 | BUY | 5 / 10 | 0.13 KM |
| Fir Tree Walk, Market Harborough | £ 385,000 | BUY | 6 / 10 | 0.15 KM |
| Leicester Road, Market Harborough | £ 147,950 | BUY | 6 / 10 | 0.20 KM |
| Leicester Road, Market Harborough | £ 180,000 | BUY | 6 / 10 | 0.20 KM |
Nearby Properties
| Address | Price | Distance |
|---|---|---|
| 6 Burnmill Road | £ 380,000 | 0.09 KM |
| 33 Burnmill Road | £ 680,000 | 0.09 KM |
| 24 Burnmill Road | £ 330,000 | 0.09 KM |
| 7 Burnmill Road | £ 375,000 | 0.09 KM |
| 30 Burnmill Road | £ 265,000 | 0.09 KM |