Baslow Road, Evington, Leicester
By Knightsbridge Estate Agents & Valuers
£ 350,000
Reviews
3 out of 5 stars
Knightsbridge Estate Agents & Valuers says ..
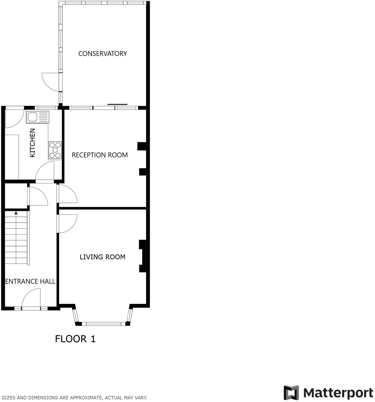
CHAIN-FREE three-bedroom semi-detached home with two reception rooms, conservatory, fitted kitchen, three double bedrooms, garage, low-maintenance garden, and outbuildings.
Property Oracle says ..
This three-bedroom semi-detached property is located on Baslow Road in Leicester’s Stoneygate area. The property benefits from a good-sized rear garden, which is a valuable asset in a built-up area like this. While the images show the property to be in generally good condition, some minor cosmetic updates might enhance its appeal. The list price of £350,000 is slightly above the average price for the area (£305,921), but considering the property’s size (750 sqft) and the inclusion of a garden, it could be considered reasonable, especially given the lack of sqft data for nearby comparable properties. The proximity to local schools and transport links adds to its desirability. However, potential buyers should conduct their own thorough inspection to assess the property’s condition and value further.
Therefore, we give this property 7 / 10. *Disclaimer: This is our option and does constitute a recommendation or financial advice. Do your own research. *
- Price
- 6
- Condition
- 7
- Location
- 8
- Land
- 7
- Bedrooms
- 3
- Bathrooms
- 1
- Sqft (est)
- 750.00
The heatmap indicates the level of crime in the area. The color of the heatmap indicates the crime severity and recency.
Metrics Year-on-Year
- Average area value
- 300,000.00 £Decreased by 8.89 %
- Est sale value
- 312,750.00 £Increased by 38.54 %
- Average area rental value
- 871.00 £/moDecreased by 7.24 %
- Est letting value
- 750.00 £/mo
- Est rental Yield
- 3.48 %Increased by 1.75 %
- Crime Rate
- 7.00 %Unchanged by 0.00 %
Agent Activity
Knightsbridge Estate Agents & Valuers created the listing.
Nearby Schools
| Name | Type | Ofsted | Distance |
|---|---|---|---|
| Imam Muhammad Adam Institute Boys School | Other Independent School | 0.14 KM | |
| The Imam Muhammad Adam Institute School | Other Independent School | Inadequate | 0.15 KM |
| Evington Valley Primary School | Community School | Good | 0.66 KM |
| Madani Girls' School | Voluntary Aided School | Good | 0.72 KM |
| Madani Boys School | Voluntary Aided School | Good | 0.72 KM |
Images
Nearby Streets
| Name | Average Price | Average Sqft | Distance |
|---|---|---|---|
| Chesterfield Road | £ 0 | 0 | 0.00 KM |
| Lonsdale Street | £ 0 | 0 | 0.00 KM |
| Oakfield Road | £ 0 | 0 | 0.00 KM |
| Darley Street | £ 0 | 0 | 0.00 KM |
| Rosebery Street | £ 230,000 | 0 | 0.00 KM |
Nearby Transport
| Name | NLC | TLC | Distance |
|---|---|---|---|
| Leicester | 1947 | LEI | 2.11 KM |
| South Wigston | 1949 | SWS | 5.96 KM |
| Syston | 1900 | SYS | 7.82 KM |
Nearby Listings
| Address | Price | Type | Score | Distance |
|---|---|---|---|---|
| Baslow Road, Evington, Leicester | £ 350,000 | BUY | 7 / 10 | 0.00 KM |
| Baslow Road, Leicester, LE5 | £ 395,000 | BUY | Unknown | 0.05 KM |
| Normanton Road, Off East Park Road, Leicester | £ 285,000 | BUY | Unknown | 0.14 KM |
| Baslow Road, Evington , Leicester, Leicestershire , LE5 5HE | £ 280,000 | BUY | 5 / 10 | 0.14 KM |
| Rowsley Street, Leicester | £ 200,000 | BUY | 5 / 10 | 0.14 KM |
Nearby Properties
| Address | Price | Distance |
|---|---|---|
| 15 Baslow Road | £ 56,500 | 0.03 KM |
| 19 Baslow Road | £ 78,000 | 0.05 KM |
| 7 Chesterfield Road | £ 84,000 | 0.06 KM |
| 9 Chesterfield Road | £ 153,000 | 0.06 KM |
| 19 Chesterfield Road | £ 196,950 | 0.06 KM |