Yopa says ..
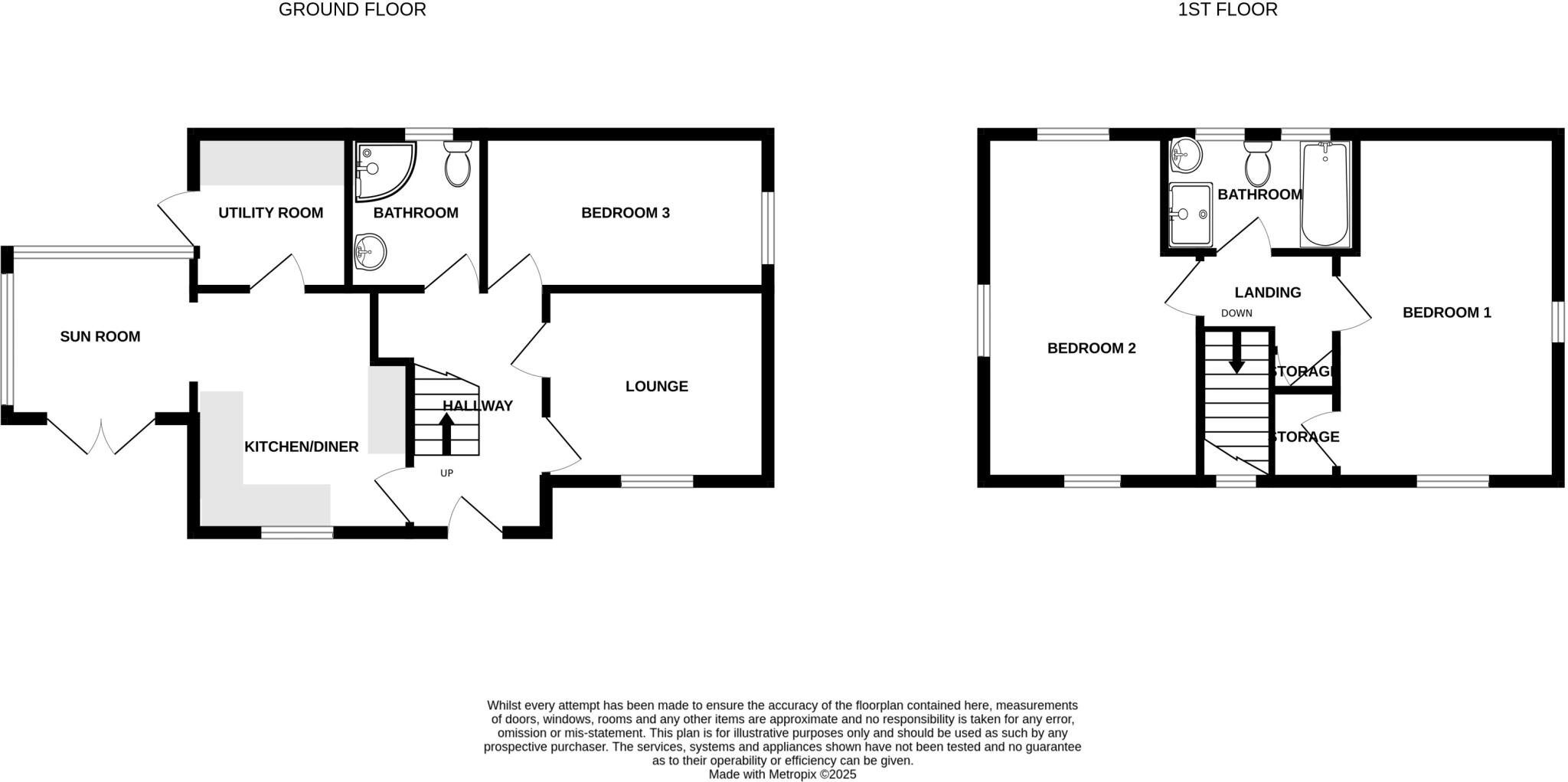
Yopa are pleased to welcome to the sales market this three bedroom detached dorma bungalow situated in the popular residential area of Dafen, Llanelli. Conveniently located for the M4 Motorway, Llanelli Town Centre, Trostre Retail Park, Prince Philip Hospital & Local Primary/Secondary Schools.
Property Oracle says ..
This property is located in the Dafen area of Llanelli, Carmarthenshire. Based on the provided information, it is a three-bedroom, two-bathroom house with a total area of 1,250 square feet. The property includes a garden. The average house price in the area is £294,545, with an average price per square foot of £266. This property is listed at £350,000. Nearby schools include St. Mary’s R.C. Primary School, St. John Lloyd R.C. School, Dafen Primary School, Bryngwyn Comprehensive School, and Penygaer Primary School. Transportation options include Llanelli, Bynea, Llangennech, and Pontarddulais train stations within a reasonable distance. The property appears to be in excellent condition, recently renovated or newly built, based on the images provided. The asking price is higher than the average for the area, but considering the apparent high-quality condition and inclusion of a garden, it may be justifiable for the right buyer.
Therefore, we give this property 7 / 10. *Disclaimer: This is our option and does constitute a recommendation or financial advice. Do your own research. *
- Price
- 7
- Condition
- 9
- Location
- 8
- Land
- 7
- Bedrooms
- 3
- Bathrooms
- 2
- Sqft (est)
- 1,250.00
The heatmap indicates the level of crime in the area. The color of the heatmap indicates the crime severity and recency.
Metrics Year-on-Year
- Average area value
- 310,998.00 £Decreased by 1.08 %
- Est sale value
- 417,500.00 £Increased by 16.78 %
- Average area rental value
- 1,363.00 £/moIncreased by 13.58 %
- Est letting value
- 1,250.00 £/moUnchanged by 0.00 %
- Est rental Yield
- 5.26 %Increased by 14.85 %
- Crime Rate
- 1.00 %Unchanged by 0.00 %
Agent Activity
Yopa created the listing.
Nearby Schools
| Name | Type | Ofsted | Distance |
|---|---|---|---|
| St Mary'S R.C. Primary School | Welsh Establishment | 0.72 KM | |
| St John Lloyd R C School | Welsh Establishment | 0.77 KM | |
| Dafen Primary School | Welsh Establishment | 0.80 KM | |
| Bryngwyn Comprehensive School | Welsh Establishment | 0.80 KM | |
| Penygaer Primary School | Welsh Establishment | 1.16 KM |
Images
Nearby Streets
| Name | Average Price | Average Sqft | Distance |
|---|---|---|---|
| B4303 | £ 0 | 0 | 0.00 KM |
| Gors Fach | £ 0 | 0 | 0.00 KM |
| Heol Llethri | £ 0 | 0 | 0.00 KM |
| Dafen Road | £ 110,000 | 0 | 0.00 KM |
| Heol Capel Isaf | £ 0 | 0 | 0.00 KM |
Nearby Transport
| Name | NLC | TLC | Distance |
|---|---|---|---|
| Llanelli | 4133 | LLE | 4.00 KM |
| Bynea | 4124 | BYE | 4.18 KM |
| Llangennech | 4138 | LLH | 5.70 KM |
| Pontarddulais | 4251 | PTD | 9.79 KM |
Nearby Listings
| Address | Price | Type | Score | Distance |
|---|---|---|---|---|
| Clos Cae Bach, Llanelli, SA14 | £ 350,000 | BUY | 7 / 10 | 0.00 KM |
| Llys Cilsaig, LLANELLI, Dyfed, SA14 | £ 240,000 | BUY | 7 / 10 | 0.22 KM |
| Cilsaig Road, Llanelli, Carmarthenshire, SA14 | £ 185,000 | BUY | Unknown | 0.27 KM |
| Maescanner Road, Llanelli | £ 110,000 | BUY | Unknown | 0.38 KM |
| Gorsfach, Llanelli | £ 67,500 | BUY | 5 / 10 | 0.73 KM |
Nearby Properties
| Address | Price | Distance |
|---|---|---|
| 6 Globe Row | £ 165,000 | 0.14 KM |
| 21 Globe Row | £ 111,000 | 0.14 KM |
| 2 Clos Cae Bach | £ 36,000 | 0.14 KM |
| 19 Globe Row | £ 104,000 | 0.16 KM |
| 12 Globe Row | £ 89,995 | 0.16 KM |