Hazel Close, Englefield Green, Egham
By Aspen Estate Agents Limited
£ 435,000
Reviews
3 out of 5 stars
Aspen Estate Agents Limited says ..
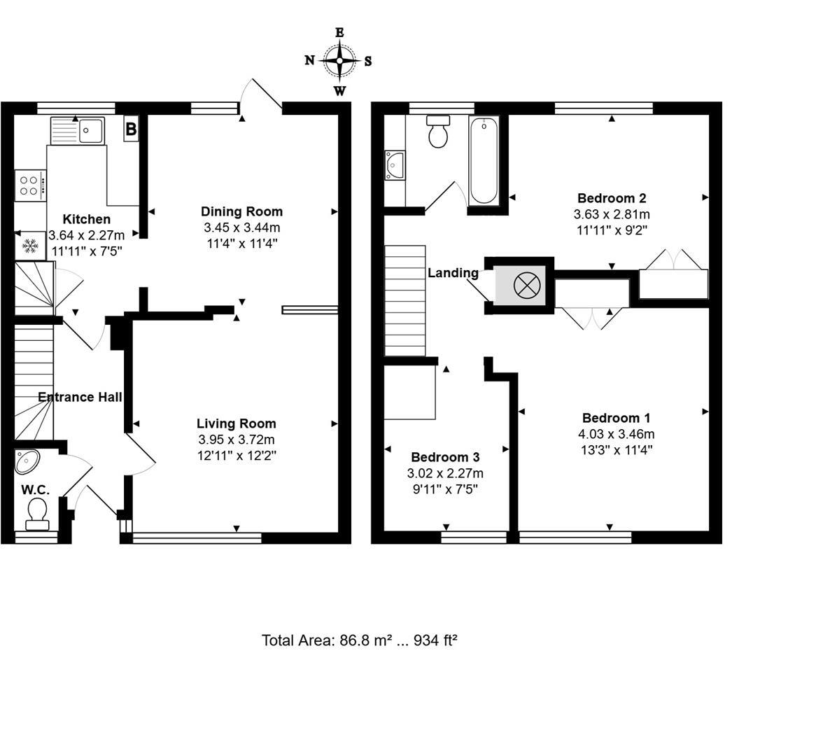
A well-maintained three-bedroom semi-detached home with off-street parking, ideally situated on the sought-after Forest Estate in a quiet and charming cul-de-sac. The ground floor features a generous double reception room and a bright kitchen–breakfast room that opens into the second reception/di...
Property Oracle says ..
This is a three-bedroom semi-detached property located in Hazel Close, Englefield Green. The property offers 934 sq ft of living space and includes a garden. While the property is in reasonable condition, some areas, such as the kitchen and bathroom, could benefit from modernization. The location is convenient, with access to local amenities, schools, and transportation links. Considering the property’s size, location, and condition, the asking price of £435,000 seems reasonable.
Therefore, we give this property 6 / 10. *Disclaimer: This is our option and does constitute a recommendation or financial advice. Do your own research. *
- Price
- 7
- Condition
- 6
- Location
- 7
- Land
- 6
- Bedrooms
- 3
- Bathrooms
- 1
- Sqft (est)
- 934.31
The heatmap indicates the level of crime in the area. The color of the heatmap indicates the crime severity and recency.
Metrics Year-on-Year
- Average area value
- 1,728,750.00 £Increased by 34.66 %
- Est sale value
- 2,651,571.78 £Increased by 274.90 %
- Average area rental value
- 1,871.00 £/moDecreased by 11.41 %
- Est letting value
- 2,802.93 £/moIncreased by 200.00 %
- Est rental Yield
- 1.30 %Decreased by 34.01 %
- Crime Rate
- 67.00 %Unchanged by 0.00 %
Agent Activity
Aspen Estate Agents Limited created the listing.
Nearby Schools
| Name | Type | Ofsted | Distance |
|---|---|---|---|
| Haven At Englefield Green Sure Start Children'S Centre | Children's Centre Linked Site | 0.12 KM | |
| St Peter'S Centre | Pupil Referral Unit | Outstanding | 0.34 KM |
| St Cuthbert'S Catholic Primary School, Englefield Green | Voluntary Aided School | Outstanding | 0.57 KM |
| St Jude'S Church Of England Junior School | Voluntary Aided School | Good | 0.58 KM |
| Acs Egham International School | Other Independent School | 1.08 KM |
Images
Nearby Streets
| Name | Average Price | Average Sqft | Distance |
|---|---|---|---|
| The Green | £ 0 | 0 | 0.00 KM |
| Clarence Street | £ 0 | 0 | 0.00 KM |
| Prospect Lane | £ 0 | 0 | 0.00 KM |
| Clarence Street | £ 0 | 0 | 0.00 KM |
| Magna Carta Park | £ 0 | 0 | 0.00 KM |
Nearby Transport
| Name | NLC | TLC | Distance |
|---|---|---|---|
| Virginia Water | 5676 | VIR | 3.25 KM |
| Egham | 5669 | EGH | 3.60 KM |
| Longcross | 5674 | LNG | 4.85 KM |
| Sunnymeads | 5675 | SNY | 5.40 KM |
| Wraysbury | 5673 | WRY | 5.41 KM |
Nearby Listings
| Address | Price | Type | Score | Distance |
|---|---|---|---|---|
| Hazel Close, Englefield Green, Egham | £ 435,000 | BUY | 6 / 10 | 0.00 KM |
| Heronfield, Englefield Green, Egham, Surrey, TW20 | £ 285,000 | BUY | 7 / 10 | 0.01 KM |
| Corby Drive, Englefield Green, Egham, Surrey, TW20 | £ 445,000 | BUY | 7 / 10 | 0.12 KM |
| Heronfield, Englefield Green, Surrey, TW20 | £ 480,000 | BUY | 8 / 10 | 0.15 KM |
| Heronfield, Englefield Green, Egham, Surrey, TW20 | £ 250,000 | BUY | 5 / 10 | 0.15 KM |
Nearby Properties
| Address | Price | Distance |
|---|---|---|
| 11 Hazel Close | £ 105,000 | 0.05 KM |
| 7 Hazel Close | £ 410,000 | 0.05 KM |
| 17 Hazel Close | £ 238,500 | 0.05 KM |
| 15 Hazel Close | £ 345,000 | 0.05 KM |
| 13 Hazel Close | £ 380,000 | 0.05 KM |