Watertoun Road (off W Savile Terrace), Edinburgh, EH9 3HZ
By Cala Homes Scotland East
£ 739,995
Reviews
3 out of 5 stars
Cala Homes Scotland East says ..
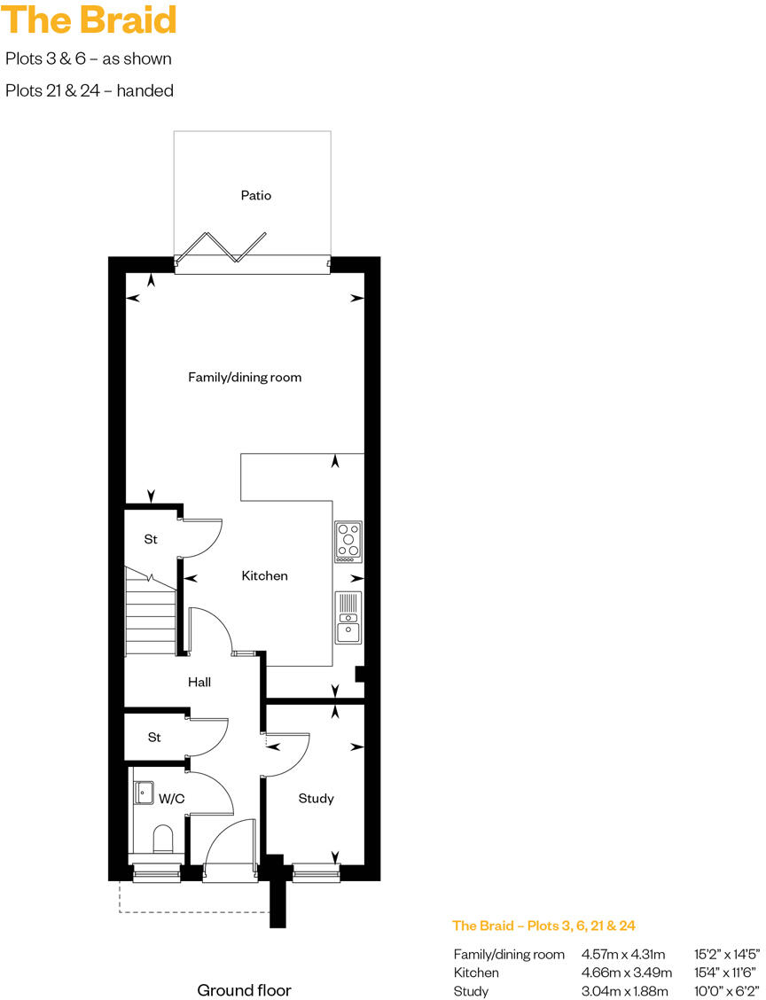
Make our showhome yours. Energy-efficient townhouse boasting flexible living with bi-fold doors to the rear garden and patio, private driveway and EV charging provision. Less than 2 miles from the city centre.
Property Oracle says ..
This is a modern, terraced property located in the Southside/Newington area of Edinburgh. The property appears to be a new build and is in excellent condition. It features a garden. The price seems high compared to the average price per square foot for Edinburgh, but is in line with similar properties in the immediate area. The location is convenient, with access to transportation and schools.
Therefore, we give this property 6 / 10. *Disclaimer: This is our option and does constitute a recommendation or financial advice. Do your own research. *
- Price
- 5
- Condition
- 9
- Location
- 7
- Land
- 6
- Bedrooms
- 3
- Bathrooms
- 0
- Sqft (est)
- 448.70
The heatmap indicates the level of crime in the area. The color of the heatmap indicates the crime severity and recency.
Metrics Year-on-Year
- Average area value
- 500,833.00 £Increased by 14.23 %
- Est sale value
- 268,322.60 £Increased by 90.45 %
- Average area rental value
- 2,059.00 £/moIncreased by 4.04 %
- Est letting value
- 897.40 £/moIncreased by 100.00 %
- Est rental Yield
- 4.93 %Decreased by 9.04 %
- Crime Rate
- 0.00 %
Agent Activity
Cala Homes Scotland East created the listing.
Nearby Schools
| Name | Type | Ofsted | Distance |
|---|---|---|---|
| Merchiston Castle School | Offshore Schools | 8.15 KM |
Images
Nearby Streets
| Name | Average Price | Average Sqft | Distance |
|---|---|---|---|
| St Crispin's Court | £ 0 | 0 | 0.00 KM |
| Relugas Lane | £ 585,000 | 0 | 0.00 KM |
| Observatory Road | £ 0 | 0 | 0.00 KM |
| Blackford Hill View | £ 0 | 0 | 0.00 KM |
| Grange Crescent | £ 0 | 0 | 0.00 KM |
Nearby Transport
| Name | NLC | TLC | Distance |
|---|---|---|---|
| Edinburgh | 9328 | EDB | 2.90 KM |
| Haymarket | 9419 | HYM | 4.58 KM |
| Slateford | 9236 | SLA | 6.85 KM |
| Brunstane | 8807 | BSU | 9.07 KM |
| Kingsknowe | 9217 | KGE | 9.27 KM |
Nearby Listings
| Address | Price | Type | Score | Distance |
|---|---|---|---|---|
| Watertoun Road (off W Savile Terrace), Edinburgh, EH9 3HZ | £ 739,995 | BUY | 6 / 10 | 0.00 KM |
| Watertoun Road (off W Savile Terrace), Edinburgh, EH9 3HZ | £ 709,995 | BUY | 7 / 10 | 0.07 KM |
| Watertoun Road (off W Savile Terrace), Edinburgh, EH9 3HZ | £ 699,995 | BUY | Unknown | 0.07 KM |
| Watertoun Road (off W Savile Terrace), Edinburgh, EH9 3HZ | £ 799,995 | BUY | 7 / 10 | 0.07 KM |
| Watertoun Road (off W Savile Terrace), Edinburgh, EH9 3HZ | £ 714,995 | BUY | 6 / 10 | 0.07 KM |