Britten Drive, Malvern, Worcestershire, WR14
By Nicol & Co
£ 325,000
Reviews
3 out of 5 stars
Nicol & Co says ..
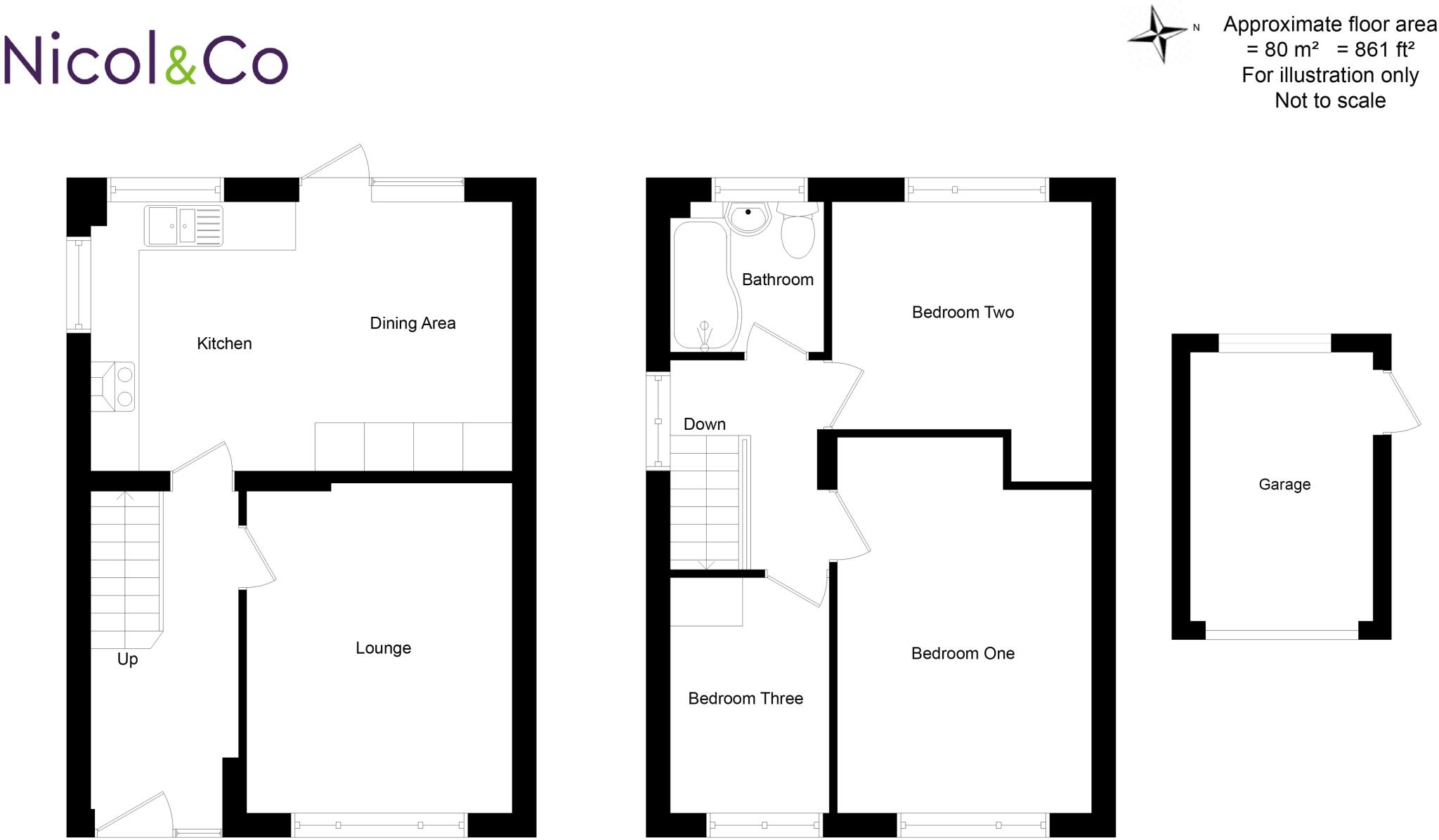
Situated on the popular Britten Drive in Malvern, this beautifully renovated three-bedroom semi-detached home offers stylish and practical living for families and first-time buyers alike. With large windows allowing plenty of natural light to flow throughout, this home has a bright and welcoming ...
Property Oracle says ..
This property is a 3-bedroom semi-detached house located in Malvern, Worcestershire. The location is desirable, with nearby schools rated as good by Ofsted and train stations within reasonable distance. The property itself appears to be in good condition, having undergone some modernisation, as evidenced by the updated kitchen and flooring. The presence of a garden adds to its appeal. While the list price is slightly below the average price for the area, it aligns with the prices of comparable properties on Britten Drive. Considering the condition, location, and available land, the list price appears reasonable.
Therefore, we give this property 7 / 10. *Disclaimer: This is our option and does constitute a recommendation or financial advice. Do your own research. *
- Price
- 7
- Condition
- 8
- Location
- 9
- Land
- 7
- Bedrooms
- 3
- Bathrooms
- 1
- Sqft (est)
- 861.00
- Lot (est)
- 861.00
The heatmap indicates the level of crime in the area. The color of the heatmap indicates the crime severity and recency.
Metrics Year-on-Year
- Average area value
- 477,500.00 £Increased by 6.21 %
- Est sale value
- 372,813.00 £Increased by 15.16 %
- Average area rental value
- 1,740.00 £/moDecreased by 3.23 %
- Est letting value
- 861.00 £/moUnchanged by 0.00 %
- Est rental Yield
- 4.37 %Decreased by 8.96 %
- Crime Rate
- 1.00 %Unchanged by 0.00 %
Agent Activity
Nicol & Co created the listing.
Nearby Schools
| Name | Type | Ofsted | Distance |
|---|---|---|---|
| The Chase | Academy Converter | Good | 0.23 KM |
| Sunshine Children'S Centre | Children's Centre | 1.14 KM | |
| Great Malvern Primary School | Academy Converter | Good | 1.15 KM |
| Malvern Parish Cofe Primary School | Academy Converter | Good | 1.16 KM |
| Malvern St James | Other Independent School | 1.35 KM |
Images
Nearby Streets
| Name | Average Price | Average Sqft | Distance |
|---|---|---|---|
| Nelson Way | £ 0 | 0 | 0.00 KM |
| Algol Way | £ 0 | 0 | 0.00 KM |
| Rebecca Close | £ 0 | 0 | 0.00 KM |
| Tudor Close | £ 340,000 | 0 | 0.00 KM |
| Primrose Close | £ 0 | 0 | 0.00 KM |
Nearby Transport
| Name | NLC | TLC | Distance |
|---|---|---|---|
| Great Malvern | 4892 | GMV | 1.28 KM |
| Malvern Link | 4884 | MVL | 2.94 KM |
| Colwall | 4876 | CWL | 5.61 KM |
Nearby Listings
| Address | Price | Type | Score | Distance |
|---|---|---|---|---|
| Britten Drive, Malvern, Worcestershire, WR14 | £ 325,000 | BUY | 7 / 10 | 0.00 KM |
| Britten Drive, Malvern | £ 250,000 | BUY | 6 / 10 | 0.10 KM |
| Dukes Way, Malvern, Worcestershire, WR14 | £ 260,000 | BUY | 7 / 10 | 0.35 KM |
| 156 Poolbrook Road, Malvern | £ 700,000 | BUY | 7 / 10 | 0.37 KM |
| 148 Poolbrook Road, Malvern | £ 435,000 | BUY | 6 / 10 | 0.37 KM |
Nearby Properties
| Address | Price | Distance |
|---|---|---|
| 59 Britten Drive | £ 210,000 | 0.06 KM |
| 45 Britten Drive | £ 237,000 | 0.06 KM |
| 14 Britten Drive | £ 166,500 | 0.06 KM |
| 44 Britten Drive | £ 222,000 | 0.06 KM |
| 25 Britten Drive | £ 167,000 | 0.06 KM |