Home & Castle says ..
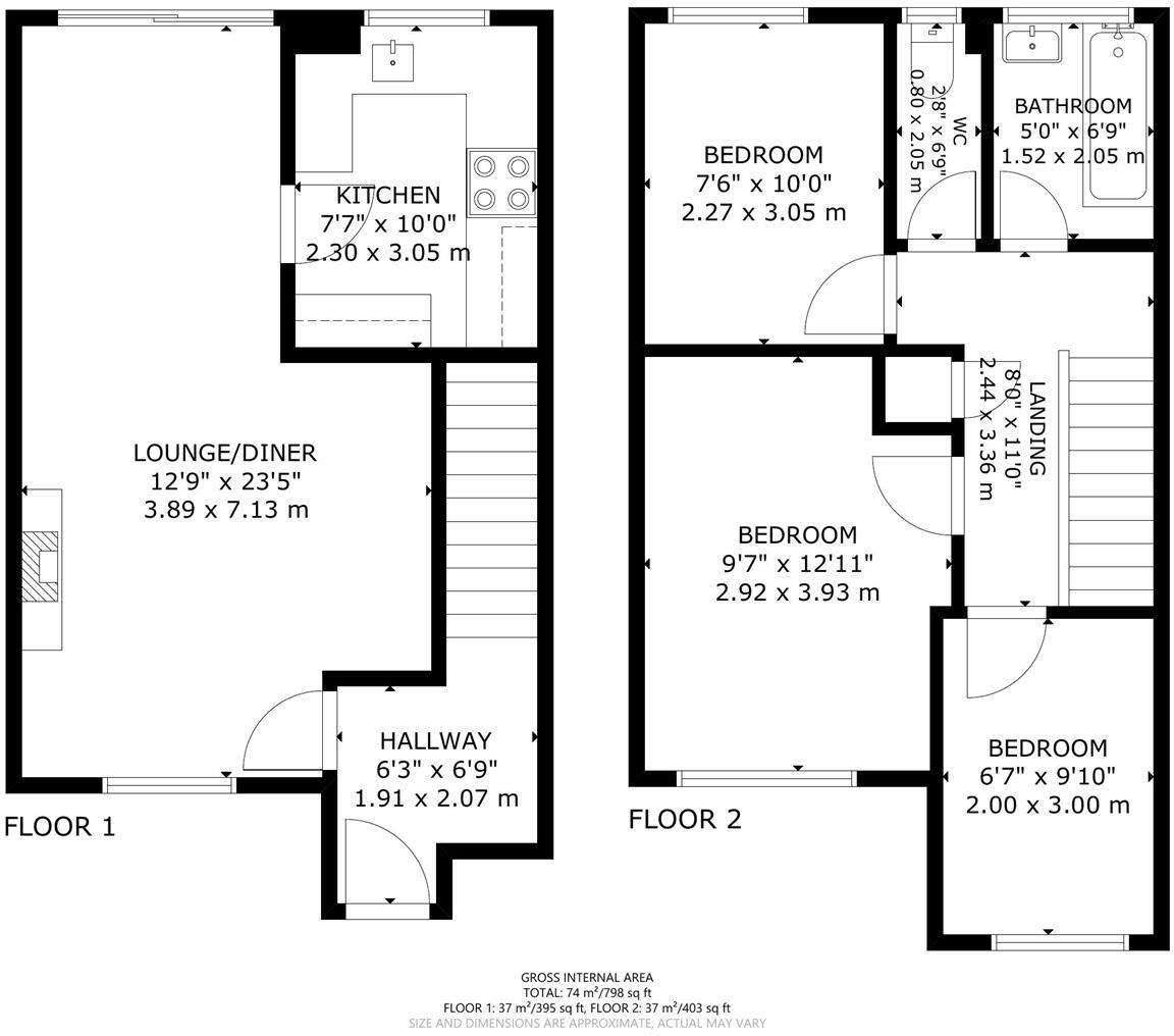
A three bedroom house that occupies a large corner plot, which may offer options to extend/develop (STPP). The property is on the market with no onward chain and would benefit from modernisation works. To the rear there is a lawn southerly facing garden, garage and off road parking space.
Property Oracle says ..
Therefore, we give this property 6 / 10. *Disclaimer: This is our option and does constitute a recommendation or financial advice. Do your own research. *
- Price
- 7
- Condition
- 5
- Location
- 6
- Land
- 7
- Bedrooms
- 3
- Bathrooms
- 1
- Sqft (est)
- 796.53
The heatmap indicates the level of crime in the area. The color of the heatmap indicates the crime severity and recency.
Metrics Year-on-Year
- Average area value
- 590,421.00 £Increased by 34.04 %
- Est sale value
- 407,823.36 £Increased by 31.96 %
- Average area rental value
- 1,427.00 £/moDecreased by 43.31 %
- Est letting value
- 796.53 £/moDecreased by 50.00 %
- Est rental Yield
- 2.90 %Decreased by 57.73 %
- Crime Rate
- 9.00 %Unchanged by 0.00 %
from 440,466.00 £
from 309,053.64 £
from 2,517.00 £/mo
from 1,593.06 £/mo
from 6.86 %
from 9.00 %
Agent Activity
Home & Castle created the listing.
Nearby Schools
| Name | Type | Ofsted | Distance |
|---|---|---|---|
| The Eastbourne Academy | Academy Sponsor Led | Good | 0.40 KM |
| College Central | Academy Alternative Provision Converter | Good | 0.49 KM |
| Oakwood Primary Academy | Academy Sponsor Led | Special Measures | 0.54 KM |
| The Lindfield School | Academy Special Converter | Outstanding | 0.55 KM |
| Parkland Junior School | Academy Converter | Good | 0.61 KM |
Images
Nearby Streets
| Name | Average Price | Average Sqft | Distance |
|---|---|---|---|
| Welbeck Close | £ 0 | 0 | 0.00 KM |
| Walsingham Close | £ 0 | 0 | 0.00 KM |
| Malvern Close | £ 0 | 0 | 0.00 KM |
| The Broadway | £ 0 | 0 | 0.00 KM |
| The Paddock | £ 225,000 | 0 | 0.00 KM |
Nearby Transport
| Name | NLC | TLC | Distance |
|---|---|---|---|
| Hampden Park (Sussex) | 5450 | HMD | 1.14 KM |
| Polegate | 5455 | PLG | 3.56 KM |
| Eastbourne | 5448 | EBN | 3.94 KM |
| Pevensey And Westham | 5461 | PEV | 6.00 KM |
| Pevensey Bay | 5462 | PEB | 8.00 KM |
Nearby Listings
| Address | Price | Type | Score | Distance |
|---|---|---|---|---|
| Thornwood Close, Eastbourne | £ 290,000 | BUY | 6 / 10 | 0.00 KM |
| Maywood Avenue, Eastbourne, East Sussex, BN22 | £ 245,000 | BUY | 5 / 10 | 0.14 KM |
| Maywood Avenue, Eastbourne | £ 259,950 | BUY | 7 / 10 | 0.20 KM |
| Maywood Avenue, Eastbourne, East Sussex, BN22 | £ 270,000 | BUY | 7 / 10 | 0.20 KM |
| Henfield Road, Eastbourne | £ 275,000 | BUY | Unknown | 0.21 KM |
Nearby Properties
| Address | Price | Distance |
|---|---|---|
| 25 Thornwood Close | £ 53,000 | 0.03 KM |
| 23 Thornwood Close | £ 235,000 | 0.03 KM |
| 33 Thornwood Close | £ 196,000 | 0.03 KM |
| 17 Thornwood Close | £ 248,000 | 0.03 KM |
| 31 Thornwood Close | £ 210,000 | 0.03 KM |